Escenario Hanabusayama
ARCHITECTS
Ryuichi Sasaki Architecture
PRINCIPAL ARCHITECT
Ryuichi Sasaki/ryuichi Sasaki Architecture
STRUCTURE ENGINEERING
Tatsumi Terado Structural Studio
PRODUCE
Hidetaka Gonai/escenario
BUILDING MANAGEMENT
Alpha Management & Partners, Kiyoshi Yonemitsu
CLIENT
Nobumitsu Ohashi/shukou Kensetsu
ARCHITECTURE TEAM
Ryuichi Sasaki, Yuriko Ogura, Anna Osawa/ryuichi Sasaki Architecture
AWARDS/PRIZES
The Plan Award 2023, Finalist Architecture Master Prize 2023, Honorable Mention
PHOTOGRAPHS
Takumi Ota Photography
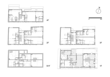
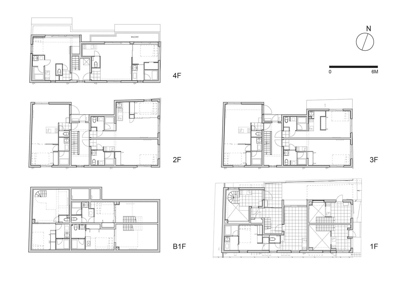
SITE AREA
172,45 M2
AREA
496 m²
YEAR
2023
LOCATION
Tokyo, Japan
CATEGORY
Houses
CARVING ARCHITECTURE FROM THE EARTH
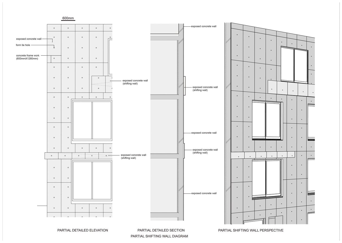
Surrounded by undulating terrain and historic residential zones dating back to the Edo period, Escenario Hanabusayama reflects the strata and slopes of its environment in both form and materiality.
The façade—accented with elongated, slanted ridges—evokes layers of rock, while the approach and boundary walls incorporate slender stone patterns and gentle inclines reminiscent of natural formations.
The exposed concrete exterior, as if cut directly from the cliff, anchors the building into the landscape, blurring the boundary between structure and terrain.
INTEGRATING LIGHT, AIR, AND BORROWED SCENERY
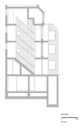
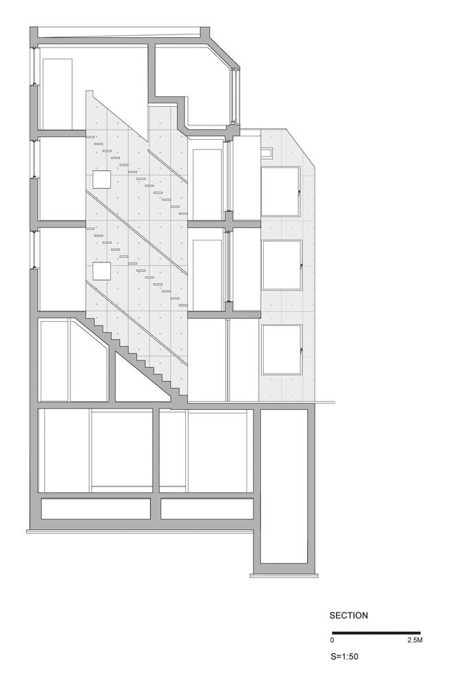
Behind the site lies a ten-meter-high cliff with no openings, ensuring structural stability, while the street-facing elevation opens generously with a rhythmic grid of square apertures connecting the interior life to the city.
Each unit features openings on two sides to optimize natural ventilation and illumination, minimizing dependence on mechanical systems.
Residents enjoy framed views of the lush greenery atop the hill—an architectural reinterpretation of shakkei, the traditional Japanese concept of borrowed landscape.
A CALM DIALOGUE BETWEEN MATERIAL AND SPACE
Inside, the concrete surfaces remain exposed, their fine texture and greige tones forming a serene backdrop for daily life.
The interplay of light reflected across the surfaces enhances a sense of openness and calm, creating a refined, meditative living environment that quietly harmonizes urban living with the natural form of the land.

























