House In Villa Paranacito
ARCHITECTS
Martina Lew
PROJECT ARCHITECT
Martina Lew
TECHNICAL TEAM
Delta Construcciones
PHOTOGRAPHS
Alex Freixá Kalwill
AREA
90 m²
YEAR
2025
LOCATION
Villa Paranacito, Argentina
CATEGORY
Houses
The project is located in Villa Paranacito, Entre Ríos, within the ecosystem of the Delta Entrerriano, more precisely on the banks of a secondary canal that branches off from the Martínez Stream.
This is an area of low and floodable islands, framed by natural levees, riverside vegetation, and a network of waterways that make up a dynamic river system.
The house is situated on a natural elevation of the land, which ensures better settlement conditions and protection against possible flooding.
The design decisions were made in close relation to the landscape. The house aims to capture the best views in both directions: towards the canal and towards the open field that extends on the opposite side.
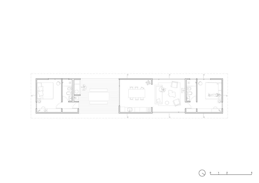
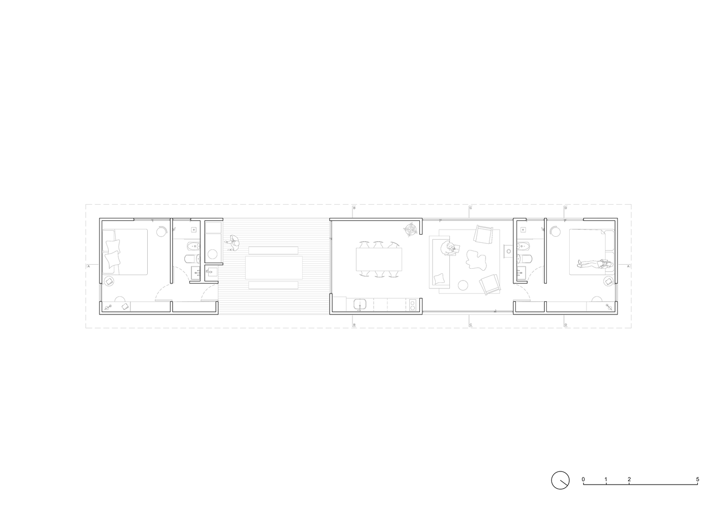
To respond to this dual orientation, a linear wooden structure was designed, measuring 4 meters wide by 22 meters long.
A longitudinal gallery serves as a transition and articulation space, organizing the home into two main areas:
on one side, the domestic core —composed of an integrated kitchen, dining room, living room, and a suite— and on the other, a guest room.
Due to its linear placement and its openness to both fronts, the house frames the landscape and constructs carefully directed scenes towards both the watercourse and the field.
This strategy not only allows for inhabiting the environment but also enhances its value, integrating the landscape as an essential part of the spatial experience.
It was a dreamed project, born from a fascination with the Paraná Delta ecosystem, and finds in its placement, orientation, and shape a way to coexist with the landscape instead of imposing on it — a simple, respectful gesture that is deeply rooted in the logic of the territory.





























