ARCHITECTS
Cote Architects
LEAD ARCHITECT
Hoang Viet Hung
EXECUTION OF WOOD INTERIOR
Cote Arch
LIGHTING DESIGNERS
Dien Quang Hue
STRUCTURE ENGINEERS
Nguyen Minh Hoang
MEP & HVAC CONSULTANTS
Cote Arch
CONTRACTORS
Cote Arch
DESIGN TEAM
Nguyen Ba Vuong, Vo Thanh Thuy, Le Van Hoang Hai, Vo Doan Hung
MANUFACTURERS
Eurotile, INAX, Kenwin
PHOTOGRAPHS
HungHoa
AREA
300 m²
YEAR
2025
LOCATION
Hue, Vietnam
CATEGORY
Houses
Located in the southern area of Vy Da Ward, Hue City, X House sits within a dense urban fabric surrounded by hotels, restaurants, event venues, and sports facilities.
In contrast to its vibrant surroundings, the project was conceived as a calm and balanced living environment for a young family of four—prioritizing spatial stillness, minimalism, cost efficiency, and long-term sustainability.
X House is envisioned as an architectural retreat, offering a moment of pause from the urban rhythm through light, space, and material restraint.
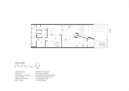
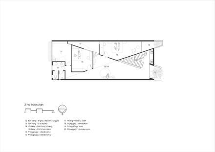
The house is organized on a rectangular plot through the superposition of two symmetrical triangular volumes, shifted along an X-shaped spatial axis.
This defining geometry establishes a dynamic relationship between solid and void across the ground and upper floors.
Enclosed functions—such as bedrooms, study rooms, bathrooms, storage, and dressing areas—form the solid zones, while open and flexible spaces—including the living room, kitchen-dining area, courtyards, gallery, library, and communal areas—constitute the void, encouraging interaction and shared experiences.
These interlocking volumes are contained within a monolithic reinforced concrete shell, forming the concept of a "house within a house."
The concrete envelope acts as a climatic buffer, protecting the interior from the harsh western sun and Hue's tropical climate, while filtering daylight, ventilation, and privacy through carefully positioned openings.
Shifting light and shadows animate the raw concrete surfaces, allowing occupants to perceive time and atmosphere throughout the day.
Light and concrete together create a quiet architectural composition, enhancing the gallery spaces and fostering a contemplative living environment.
The X-shaped axis also organizes circulation, visually and physically connecting the voids across multiple levels while framing layered views and spatial depth within the concrete volume.
Rather than maximizing built area, the design deliberately prioritizes voids—spaces for reading, music, contemplation, and semi-outdoor family gatherings.
By reducing enclosed floor area in favor of spatial openness, the house achieves improved environmental performance through controlled natural ventilation, sufficient daylighting, and a more comfortable microclimate.
The exposed monolithic concrete structure minimizes construction complexity and maintenance while celebrating the material's raw aesthetic.
Passive design strategies—natural ventilation, daylight optimization, and thermal protection—reduce reliance on mechanical systems, contributing to long-term energy savings.
The project demonstrates how modest means, when paired with thoughtful spatial organization and climate-responsive design, can create a sustainable and emotionally resonant home within a dense urban context.
























































