
White Brick House
ARCHITECTS
Plan Architects Office
DESIGN TEAM
Lim Tae Hyung, Yun Bitna, Son Sangyeon, Jo Yewon
SITE MANAGER, CONTRACTOR
Dm Construction
PHOTOGRAPHS
Yoon, joon hwan
AREA
425 m²
YEAR
2022
LOCATION
Gwangju, South Korea
CATEGORY
Mixed Use Architecture, Houses
LOCATED IN NATURE
The site is located in a small residential district developed in the early 2000s to collectively relocate residents who had been scattered in the Jeungsimsa Temple district of Mudeungsan Mountain, outside the park areas.
The refreshing sound of rushing water in the valley and its proximity to the summit of Mudeungsan Mountain create a beautiful and serene village atmosphere. Visitors who travel from afar for meals or tea, hikers, and local residents strolling through the village add a subtle liveliness to the community.
A middle-aged couple with two sons requested a commercial-residential building with a family residence and rental spaces for cafés or workshops. A new approach was needed to avoid the separation of spaces due to contrasting characteristics of residential and rental spaces.
In response, the house was designed to respect the distinct areas of each space while sharing a good environment and enabling multilateral perspectives of the spaces by securing the controllable points of connection and carefully designing the boundaries.
BOUNDARY
The porous wall, courtyard, front window, and annex are tools set to express the house's intended sense of varying boundaries.
The porous wall protects the living room and outdoor activity areas from external views and direct sunlight while lighting the dark street at night. The northeast residual space, created to ensure sunshine due north, features bamboo plants and front windows to offer an unexpected spatial experience.
The courtyard, penetrating the residential and rental spaces, connects the ground and the sky. The residential and rental spaces use this courtyard to control daylight and ventilation. The courtyard also reflects the view of rain and snow to infuse the atmosphere of nature into the adjoining spaces.
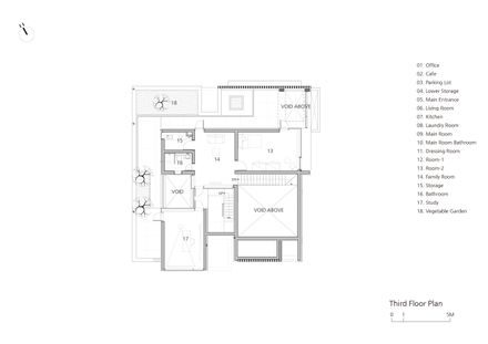
The subtle sounds and dim silhouettes delivered through the courtyard stimulate the senses of residents and remind the spatial depth without causing discomfort. The annex on the third floor is separated from the internal space, and it reflects the family's consideration for the father's uninterrupted contemplation.
LEVEL
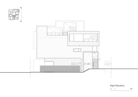
The rear side of the site is 0.5 meters lower than the front road, while the pedestrian road on the right side is 0.8 meters higher.
The first floor's rental space was designed on two levels to respond to the height difference between the front and rear of the site. Such a structure emphasizes the connection with the rear side's bamboo forest, while the residential space's entrance on the right side separates each area.
The residential space achieves a sense of openness and centrality through a 1.5-story-high living room on the second floor. The elevated rooftop deck above the living room offers leisurely views of Mudeungsan Mountain, set at a height distinct from the everyday living areas.
The empty frame is elevated once again on the third floor's rooftop to maintain the exterior design when solar panels are installed in the future.
LANDSCAPE
The brickwork stands out on the exterior, and it was the result of intending a sequential landscape connecting from the left side of the site to the right, where a childcare facility is planned.
The bricks express the recognizability of the entrance, emphasize contrasts through emptiness, and protrude in staggered patterns to show the overall formative aesthetic.
It remains uncertain whether the brick design, originating from the red window frames of the adjacent building on the left, will continue across the undeveloped site on the right.
Nevertheless, this attempt is considered meaningful, as the childcare facility is expected to be small in scale.
The first floor's front commercial space is made of hardwood that fades under natural light, allowing the passage of time to be inscribed on the surface.
The rest of the building is finished with white, stain-resistant external insulation, adding a bright and lively atmosphere to the shaded mountain village, where the sun sets early.



























