
Corridor House 2.0
ARCHITECTS
I2a Architects Studio
LEAD ARCHITECT
Ar. Manuraj C R, Ar. Sanjukta Chakraborty
HOME AUTOMATION
Sequrhom Automations
INTERIOR CONTRACTORS
Varp Interior Fitout& Shutters
MANUFACTURERS
JAQUAR, ATOMBERG, Asian Paints, GREENLAM , Hafele, Norisys
INTERIOR STYLING
Yellow Petals
LIGHTING
Luxonite Lighting
PHOTOGRAPHS
Vishnu V Nath
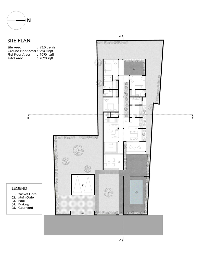
AREA
4020 ft²
YEAR
2025
LOCATION
Thrissur, India
CATEGORY
Houses
Corridor House: Framing Privacy, Breathing Light. Set along the lively highway of Thrissur, the residence stands as a quiet contrast to its restless surroundings.
The sloping site, constantly brushed by the rush of vehicles and rising dust, called for more than just a home it called for a sanctuary of privacy and calm.
The client, an education consultant who envisioned a peaceful retreat for his family, had one clear request: a house that felt completely their own. From that single thought, the story of what would later be called the Corridor House began to unfold.
The design took root in the idea of protection. As the site lay open to the busy road, a strong sense of enclosure became essential. A long, bold wall was raised along the front edge of the property, standing as both shield and sculpture.
This defining element guards the home from noise, movement, and dust, establishing a sense of stillness the moment one steps beyond it. But the wall was never meant to be harsh or uninviting.
Solitude, when absolute, can become heavy, so the solid surface was softened with a series of punctures and voids.
These subtle openings allow filtered light and air to flow through, transforming the barrier into something more human, alive, and dynamic. Through these holes, the house began to find its character.
The motif of the void soon evolved into a design language repeated throughout the project, from the external facade and door patterns to the smallest interior details, creating a rhythm and paver pattern that connects the entire home through light and shadow.
As the design developed, another strong idea emerged: the corridor. Running like a spine through the heart of the house, the corridor connects every space from the entrance to the farthest edge, shaping the spatial experience into a linear journey.
It is not just a passage but the soul of the house. Every function, living spaces, bedrooms, and recreational zones, unfolds gently along its sides. The corridor is flanked by courtyards, lawns, and pockets of green that ensure every room breathes.
Moving through it becomes an experience in itself, framed by changing light, textures, and views. This central element not only organizes the spaces but also gives the house its name, Corridor House.
The journey into the house begins modestly, through a picket gate that leads directly into a corridor, the spine that gives the home its identity.
From the very first step, one experiences the intent of the design, a spatial sequence that flows inward, layered with light, privacy, and connection. On the left, a serene courtyard serves as a pooja space, where morning light filters softly through the perforated pergola above.
Moving forward, still along the corridor, lies the family living room, a warm gathering space that opens up to pockets of green, creating a continuous visual dialogue with nature.
On the right side of the corridor unfolds a cluster of functional spaces: the dining area, kitchen, working kitchen, and utility, each arranged for comfort and efficiency. The dining area extends towards the landscape, bringing in natural light while maintaining enclosure.
The staircase, positioned along the left midway through the corridor, rises with quiet elegance to the upper floor, lit by courtyards that punctuate both sides at intervals. These internal courtyards act as breathing pockets, drawing air and sunlight deep into the layout.
As the corridor continues, it gently opens up to two bedrooms, each oriented towards green voids for privacy and ventilation.
The swimming pool, positioned adjacent to the facade, glistens under the evening light, its reflections dancing on the ochre wall. The pool becomes both a visual and climatic relief, cooling the immediate surroundings while visually softening the solid form of the structure.
The first floor houses a compact gymnasium and a bedroom, continuing the same sense of balance and openness found below.
The upper levels also capture glimpses of the landscape beyond the boundary, filtered views that maintain the fine balance between enclosure and connection. Beyond its quiet exterior lies a vibrant and active world of living.
The residence embraces contemporary comforts with thoughtfully designed amenities, a gymnasium for wellness, a serene swimming pool, and a generous lawn area where children can play freely. Despite being enclosed for privacy, the home feels open and alive.
Rooms face inward toward courtyards, maintaining a continuous dialogue between interior and exterior spaces. The open planning ensures that air and light flow naturally, creating an organic rhythm that defines the spatial experience.
Each area, though distinct in function, remains visually connected through glimpses of greenery and filtered daylight, tying the spaces together with a sense of harmony.
The material palette of the house complements its philosophy, subtle, grounded, and timeless.
Textured finishes, muted tones, and clean lines dominate the composition, allowing the play of light to animate the surfaces throughout the day. The perforated walls cast moving shadows that change with time, giving the architecture a living quality.
A warm monochromatic composition with subtle contrast between matte walls and polished wooden elements. Smooth, plastered surfaces finished in warm ochre with a matte texture, punctured with circular perforations that define the visual rhythm of the facade.
Rich, medium-toned natural wood panels for main doors and interior facing walls, adding depth and warmth. Large format grey stone tiles with a semi-polished finish are used for pathways and the semi-open veranda, offering a clean, contemporary surface that contrasts softly with the warm walls.
Clean, white painted slab soffit integrated with linear warm lighting that subtly highlights the edges and defines the geometry of the form. Minimal black detailing for door handles, railing frames, and fixtures is refined and functional.
Lush green lawns bordered with low tropical foliage and a slender tree that adds freshness and softness to the composition. Night-time illumination highlights the rhythm of the perforated wall, enhancing its sculptural presence along the highway.
The combination of ochre walls, wood, stone, and greenery establishes a mood that is earthy yet refined, balancing privacy with warmth. The textures interact beautifully with natural and artificial light, giving the home a quiet glow at dusk.
The Corridor House stands as a study in balance between openness and seclusion, solidity and lightness, protection and expression. In a world that rarely slows down, this house creates its own rhythm, its own silence.
It reflects the personality of its client, an individual whose work in education thrives on structure and clarity, yet whose private world seeks peace and introspection.
The high wall that once seemed like a barrier now feels like a gentle embrace, sheltering life within while still allowing the outside world to touch it lightly through measured light and breeze.
It stands as a reminder that architecture can be both defensive and poetic, that walls can protect without isolating, and that true privacy is not about closing off from the world but about shaping how the world is allowed to enter.



































