Monolith Lodge
ARCHITECTS
Hello Wood, Pyxis Nautica
LEAD DESIGNERS (PYXIS NAUTICA)
László Monori, János Varga
LEAD DESIGNERS (HELLO WOOD)
Péter Oravecz, András Huszár
ARCHITECTURAL ASSOCIATES
Eszter Oláh, Gábor Fülöp
PRESS CONTACT
Diána Trencsényi
GENERAL CONTRACTOR
Hello Wood
HELLO WOOD BOARD
András Huszár, Dávid Ráday, Krisztián Tóth
CONSTRUCTION PROJECT MANAGER
Csanád Karskó
INTERIOR ARCHITECT/DESIGNER
Anikó Varga, Péter Oravecz
CONSTRUCTION TECHNICAL PREPARATOR
Dávid Szabó, Szabolcs Ács
SITE MANAGER
Zoltán Szabó
PHOTOGRAPHS
György Palkó, Márton Bognár
AREA
105 m²
YEAR
2025
LOCATION
Pilisszentkereszt, Hungary
CATEGORY
Houses
Sophisticated Luxury Embraced by the Forest – A New Architectural Creation in Dobogókő. There are houses that tell a story even before they are built.
The Monolith Lodge in Dobogókő is one of these; a design created by Pyxis Nautica, which waited for a long time to come to life after receiving an unexpected message and was brought to reality by the team at Hello Wood.
The story began with a concept plan that caught the owner's attention. The characteristics of the Dobogókő site, combined with Pyxis Nautica's approach, created the perfect foundation for a home that is both modern and close to nature. The owner's vision, Pyxis Nautica's design, and Hello Wood's construction and design approach all came together to create a shared story.
Hello Wood joined the project at this stage, continuing the work as a design-driven contractor and finalizing the concept.
The team not only worked on the construction but also collaborated with the designers to ensure that every detail of the house fit the spirit of the location and the character of Hello Wood.
The collaboration resulted in structural and material solutions that made the project both more cost-effective and architecturally stronger.
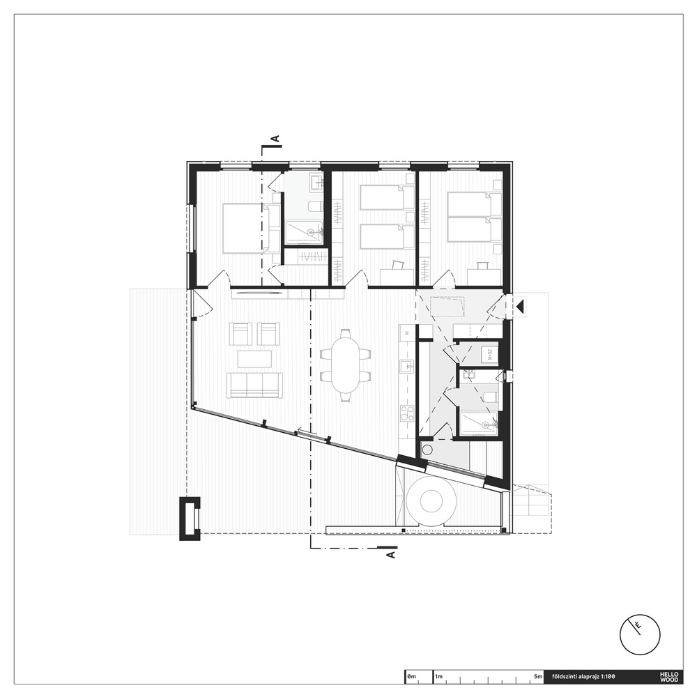
The heated net floor area of the house is 104.9 m², with an additional 16.1 m² gallery.
The 31.2 m² covered and 17.6 m² open terrace wraps around the building, connecting the interior space naturally with the surrounding forest.
The structure was built on a reinforced concrete foundation, with the walls and roof made of five-layer, exposed-quality CLT (cross-laminated timber) panels, and the roof covered with standing seam metal sheets.
The use of CLT technology allowed the house to be built in just three days and fully completed in only six months.
The name Monolith Lodge refers to the building's iconic monolithic concrete chimney, which is not only a functional element but also a sculptural focal point.
The texture of the rough-sawn board formwork is reflected on every surface, creating a subtle, organic connection between the chimney and the rest of the materials used in the house.
The clean lines, the contrast between the charred wood and concrete, and the large glass windows opening to the landscape combine to create an atmosphere that feels both powerful and peaceful, modern yet timeless, deep in the forest.
The house has three bedrooms; one master bedroom and two smaller rooms. Inside, natural, exposed CLT wood surfaces, designer furniture, and carefully chosen premium materials create a contemporary yet homely atmosphere.
The Finnish sauna and outdoor electric hot tub offer relaxing spaces within the building.
The Monolith Lodge was revived from a concept that was once put aside, now offering a retreat in the heart of the forest.
The Pyxis Nautica plans were built by Hello Wood, turning a dream into a home, a home into an experience, and the experience into a place you'll want to return to.

























