Capilano University Fulmer Family Center For Childhood Studies
CAPILANO UNIVERSITY FULMER FAMILY CENTER FOR CHILDHOOD STUDIES
Public Architecture + Design
ARCHITECTS
Public Architecture + Design
OFFICE LEAD ARCHITECTS
Brian Wakelin
LANDSCAPE ARCHITECTURE
Pfs Studio, Chris Phillips
ENGINEERING & CONSULTING > CIVIL
Wsp, Jennifer Nam
ENGINEERING & CONSULTING > STRUCTURAL
Whm Structural Engineers, Dan Wicke
ENGINEERING & CONSULTING > MECHANICAL
Ame Consulting Group, Patrick Stewart
ENGINEERING & CONSULTING > ELECTRICAL
Aes Engineering, Victor Lü
ENGINEERING & CONSULTING > OTHER
Rdh Building Science, Warren Knowles
DESIGN TEAM
Neil Aspinall, Sasha Mcwilliam, Shane O’neill, Yiyi Zhou
MANUFACTURERS
Bothwell-Accurate, Canex2, Kalesnikoff, Kawneer, Mondo
ENGINEERING & CONSULTING > ENVIRONMENTAL SUSTAINABILITY
Village Consulting, Kiefer Mackenzie
PHOTOGRAPHS
Andrew Latreille Photography
AREA
2092 m²
YEAR
2025
LOCATION
North Vancouver, Canada
CATEGORY
Research Center, Educational Architecture, Other Facilities
A living classroom where 74 children, 125 future educators, and a coastal forest learn from one another, the Fulmer Family Center for Childhood Studies demonstrates how biophilic, mass-timber design can embody the pedagogical principles of the Reggio Emilia Approach while achieving Step Code 4 performance.
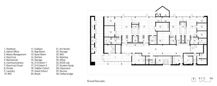
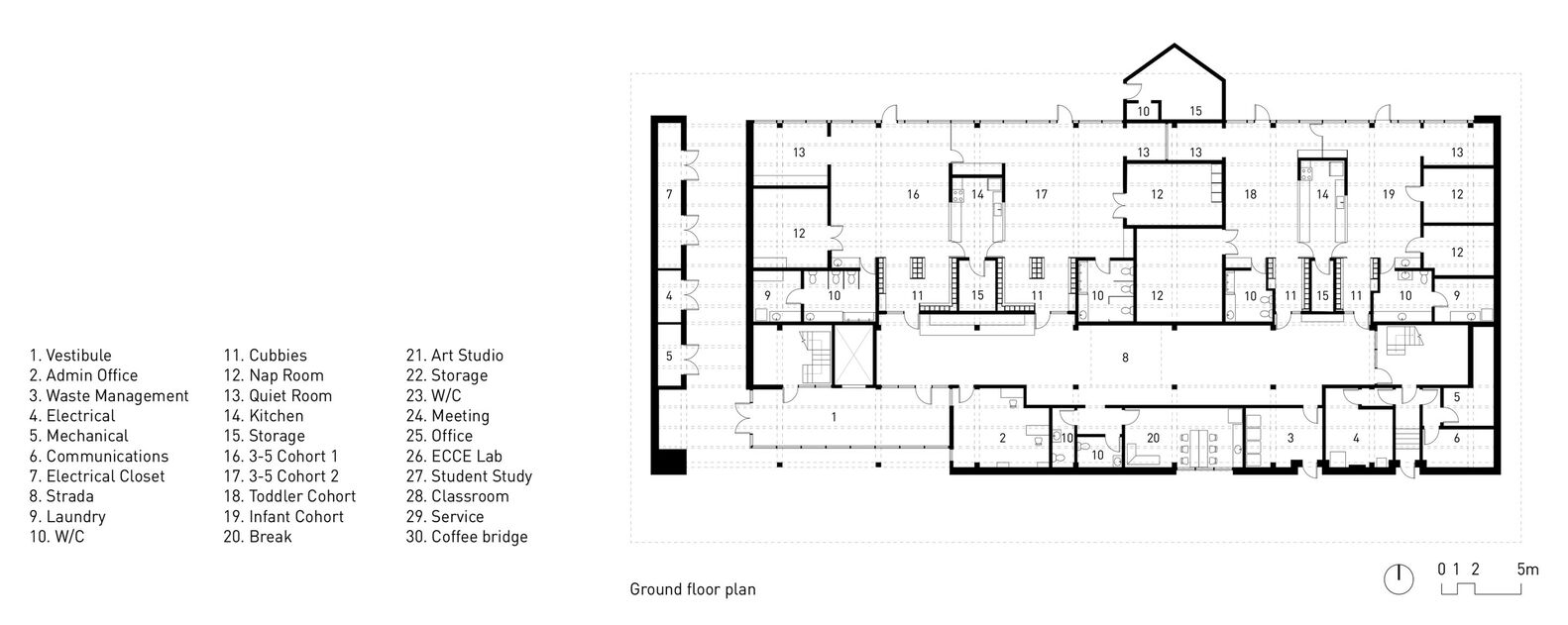
Designed as a shared home for children across four cohorts and future educators, the Center integrates licensed child care spaces with Early Childhood Care and Education (ECCE) teaching areas to support a seamless relationship between care and education, while also addressing a regional gap in child care capacity.
A key design feature is the Strada, a central, interconnected space that acts as a communal hub. It supports daily routines, hosts all-cohort activities, and provides space for the display of children's artwork, a core element of the Reggio Emilia Approach.
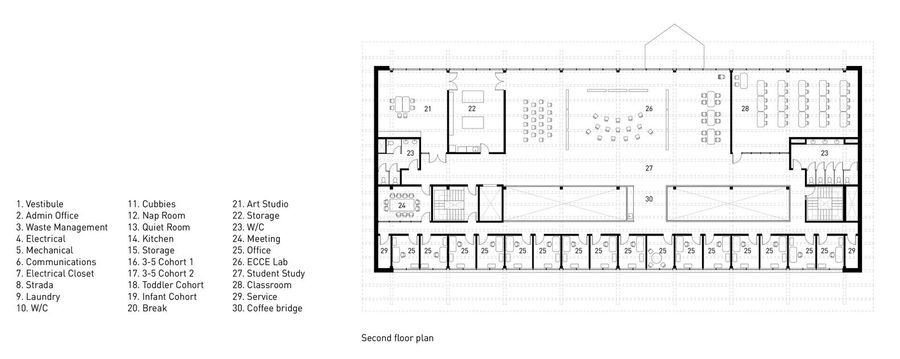
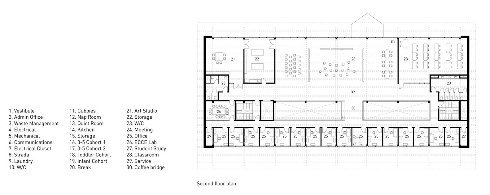
On the second floor, the Strada connects to ECCE teaching and faculty spaces. Open to the level below and naturally lit from above, it creates visual and auditory links between educators and the child care environment, enriching opportunities for experiential learning.
Set within a forested landscape, the building integrates seamlessly with its natural surroundings. The mature forest to the north is preserved as an outdoor play area, featuring small structures built from site-cleared natural materials.
All child care cohorts face the forest, with floor-to-ceiling glazing that blurs the boundary between indoor and outdoor learning.
On the second floor, the ECCE teaching spaces continue this connection through continuous glazing, allowing views of the tree canopy through the skylight monitor above the Strada.
From the outside, the building reflects its local context. Its linear form and expressive mass timber structure are regionally distinctive.
The Center is both a nurturing home for early learners and a hub for advanced educator training, rooted in respect for place and community.
Along the building's edges, the low roof and drip lines create a scale suited to its young occupants and promote solar access for the north-facing outdoor play area.
Generous timber overhangs drop steeply to the south to shade office windows and extend broadly northward to shelter outdoor areas from the North Shore rain.
The building showcases wood at every turn. At its center, Douglas Fir glulam dendritic columns branch out like trees, rising to the clerestory glazing and framing views of the treetops.
The form draws inspiration from the natural setting, while the materiality conveys a warmth and tactility that children can enjoy.
Similarly, Douglas Fir panels and millwork line the child care spaces, providing durable wall protection while visually connecting interior and exterior play areas.
Douglas Fir pickets surround the entire Strada to partially conceal sound-absorptive insulation batts. Overhead throughout wood fibre sound absorbent panels fill the coffered spaces between the mass timber floor and roof.
The Center's cladding also tells a story: the use of durable charcoal-tinted cedar was inspired by the children's exploratory art curriculum, which involves creating charcoal through burning and drawing, an everyday material transformed into an architectural expression.































