Simone Veil School Complex Tremblay-en-france
SIMONE VEIL SCHOOL COMPLEX TREMBLAY-EN-FRANCE
Gaetan Le Penhuel Architectes
ARCHITECTS
Gaetan Le Penhuel Architectes
LANDSCAPE ARCHITECT
Nebbia
STRUCTURAL ENGINEERING CONSULTANT
Batiserf
TEAM PROJECT
Warren Lepolard, Ersi Hoxha, Philippe Souaid
ACOUSTIC ENGINEERING CONSULTANT
Impédance
ENVIRONMENTAL ENGINEERING CONSULTANT
Emenda
ERGONOMIST
Ergo Zen
COST CONSULTANT
Bmf
CUISINISTE
Atec
CLIENT
City Of Tremblay-en-france
SUSTAINABILITY
Emenda
PHOTOGRAPHS
Vladimir de Mollerat du Jeu
AREA
2400 m²
YEAR
2025
LOCATION
Tremblay-en-France, France
CATEGORY
Schools, Sustainability
Gaëtan Le Penhuel Architectes & Associés has completed the Simone Veil school group in Tremblay-en-France (France).
This facility embodies the firm's approach to sustainably transforming educational spaces in response to the climate emergency.
This innovative project, which avoids standardization and reinterprets the concept of the "schoolhouse," won the Équerre d'argent 2025 Prize this November.
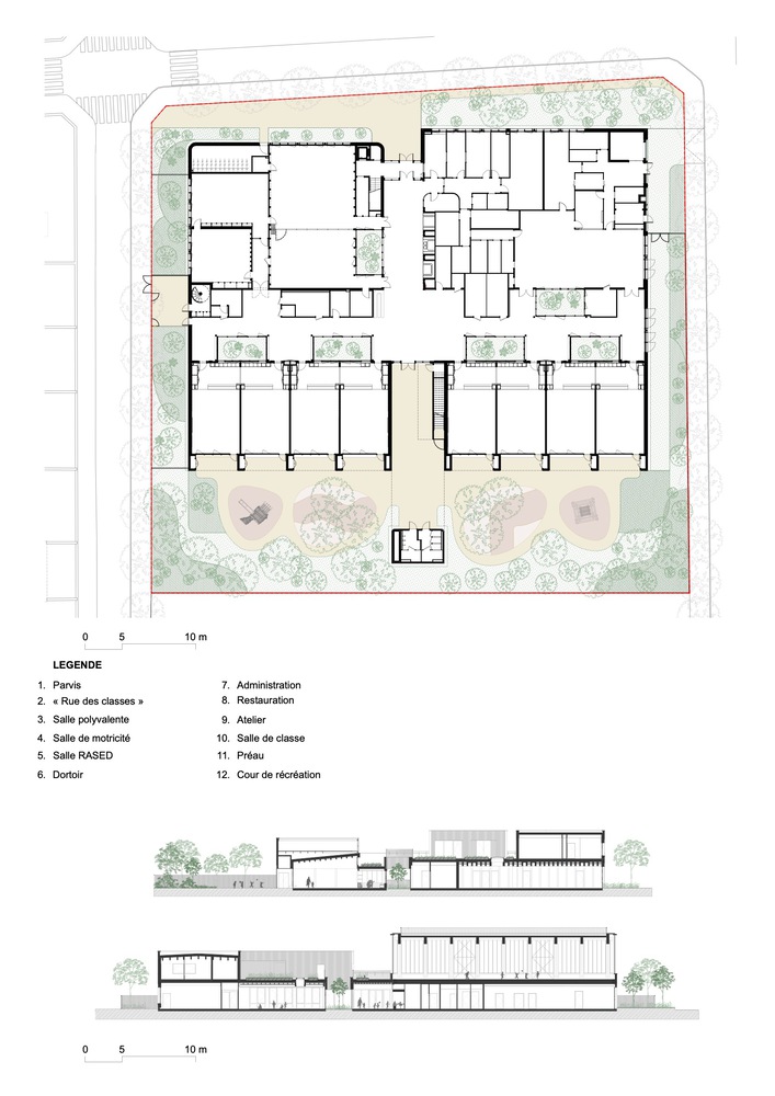
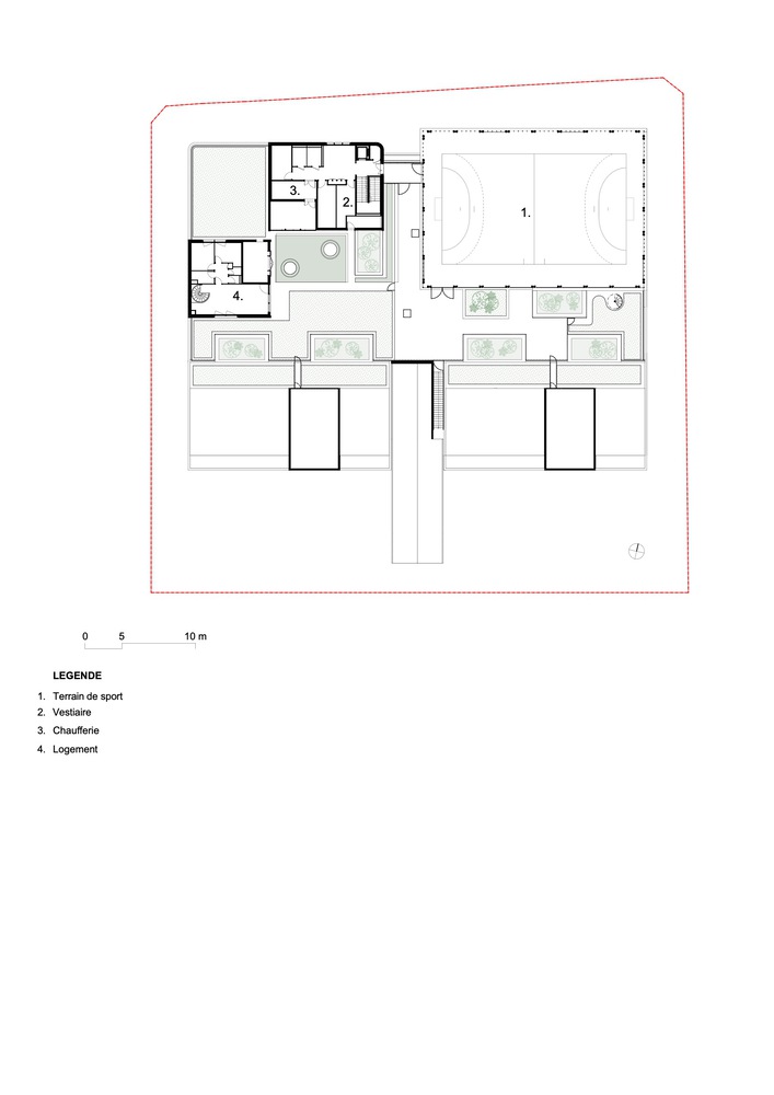
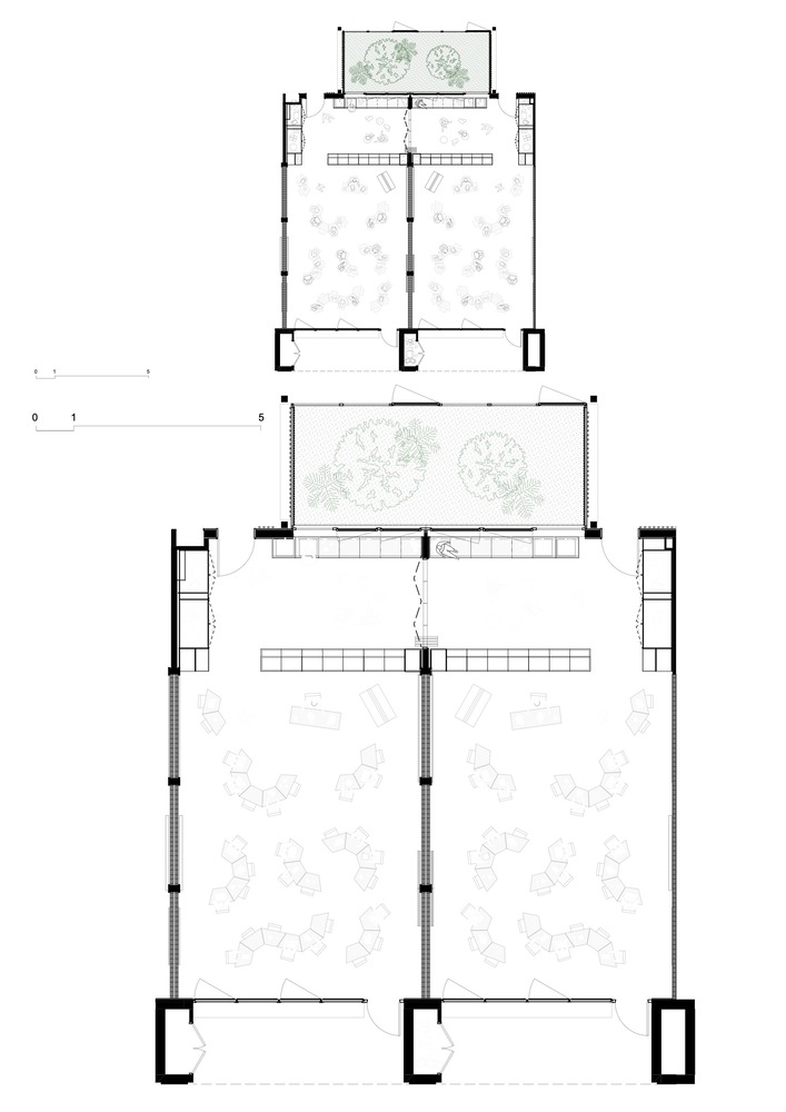
Located in a peaceful zone of detached homes on the south side of the municipality, the Simone Veil school group possesses eight classrooms, a multipurpose room, a school restaurant, an administration area, and a flat for the guardian. On its roof, a playing field is shared with neighborhood associations.
The city's proposal aimed to replace the traditional 'leisure centre' concept, which welcomed children outside school hours, with expanded classes and common areas.
Consequently, all school areas are now shared between pupils and preschoolers. The goal was to maintain the same floor area while creating amore spacious, comfortable, and modular facility.
INHABITING COMMON AREAS
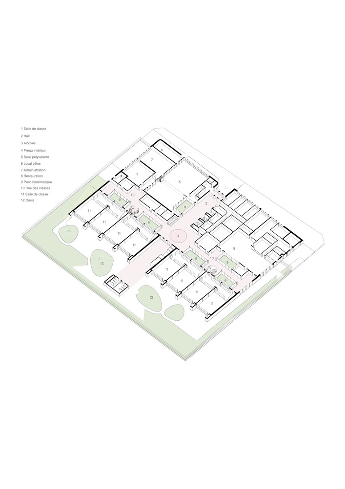
The school's lobby occupies the heart of the institution. Oriented north-south, it serves the entire establishment up to the playground.
More than a simple public area, it was designed as a genuine living space conducive to all forms of learning and exchange.
Three alcoves, with varied organization, increase possibilities of appropriation and encourage and enable diversified methods of learning.
The classrooms' street crosses through the entire facility from east to west, forming another axis structuring the school.
Split in two by the interior play area, each part of the axis is embellished with four classrooms and patios.
There is a vestibule/cloakroom at each classroom entrance and stands for games, which can be used for pedagogical or playful purposes.
At the intersection of the two axes that structure the school, a large interior play area serves as the genuine central area of the establishment, increasing the number of possible uses.
This multi-purpose space can be used in the morning and evening to welcome preschoolers, in addition to the multi-purpose rooms and motricity rooms.
In case of heavy rain, it complements the exterior playground but also hosts exhibitions and shows.
MULTI-PURPOSE CLASSROOMS
The dual-aspect classrooms benefit from multiple sources of natural light and very good ventilation.
Their positioning between patios to the north and the school playground to the south ensures different ambiances in the same classroom.
To the north, with light pouring in from the patio, a shared space built of wood between two classes creates a peaceful and calm area.
To the south, the largest volume of the classes directly overlooking the playground is more collective. Each classroom also benefits from a 'private' play area overlooking the 'common' playground.
This shaded area improves flows between the interior and exterior, becoming a real extension of the classrooms. The playground, situated to the south and shaded by a line of trees, is shared between kindergarten and elementary classes.
A genuine green setting, it is an ideal framework for the discovery of nature and outdoor games. A space dedicated to biodiversity, laid out on the roof, completes the exterior spaces made available.
It includes tubs for growing vegetables and large picnic tables, favoring teaching activities related to the natural world. Finally, the playing field will also be accessible during recreation times, thus encouraging the practice of physical activities.
RESPECTING THE ENVIRONMENT
By definition, a school building must make its commitment to the environment visible.
This principle has been applied to the project in both the choice of materials and the functioning of the building.
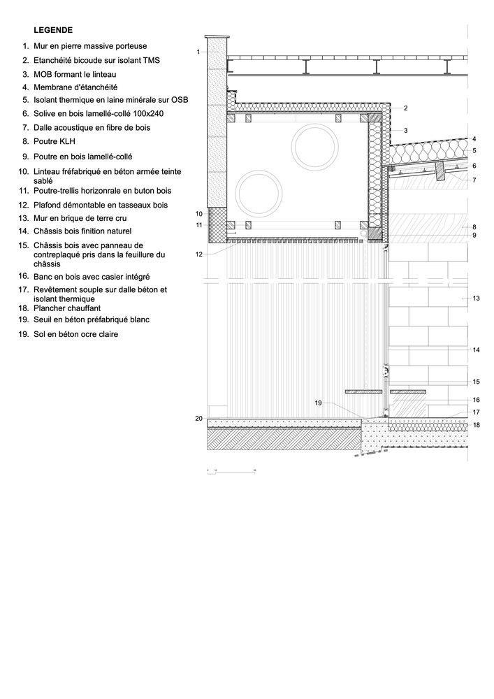
The school's load-bearing stone façades come from the Bonneuil-en-Valois quarry, located less than 60km from the construction site.
Its thickness ensures the building's thermal inertia while enhancing the value of the facility's sculpted volumes.
Between the classrooms, mudbricks are added to the wooden structure, increasing the visibility of natural and bio-sourced materials in the building's construction.
The patios embellish and punctuate the common areas to the extent that all the spaces of the project benefit from very good natural lighting ,fresh air, and comfortable humidity.
Their placement naturally ventilates all the areas designed for children, as well as the common areas, which can then become genuine inhabited places and learning areas.
The roof of the sporting area is equipped with photovoltaic panels producing more energy than the building consumes.
The rest of the roof is planted, which improves thermal performance and total rainwater retention, while also providing in habitants of the neighborhood with attractive views.




















































