
New 33 Coffee
ARCHITECTS
Hill Architecture
LEAD ARCHITECT
Kai Zhu
DESIGN TEAM
Kai Zhu, Yao Zhou
STRUCTURAL ENGINEERING
Xtruc Institute
PHOTOGRAPHS
DONG Image
AREA
550 m²
YEAR
2025
LOCATION
Hangzhou, China
CATEGORY
Retail, Coffee Shop Interiors
English description provided by the architects.
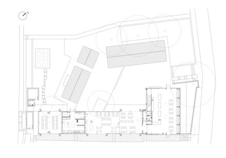
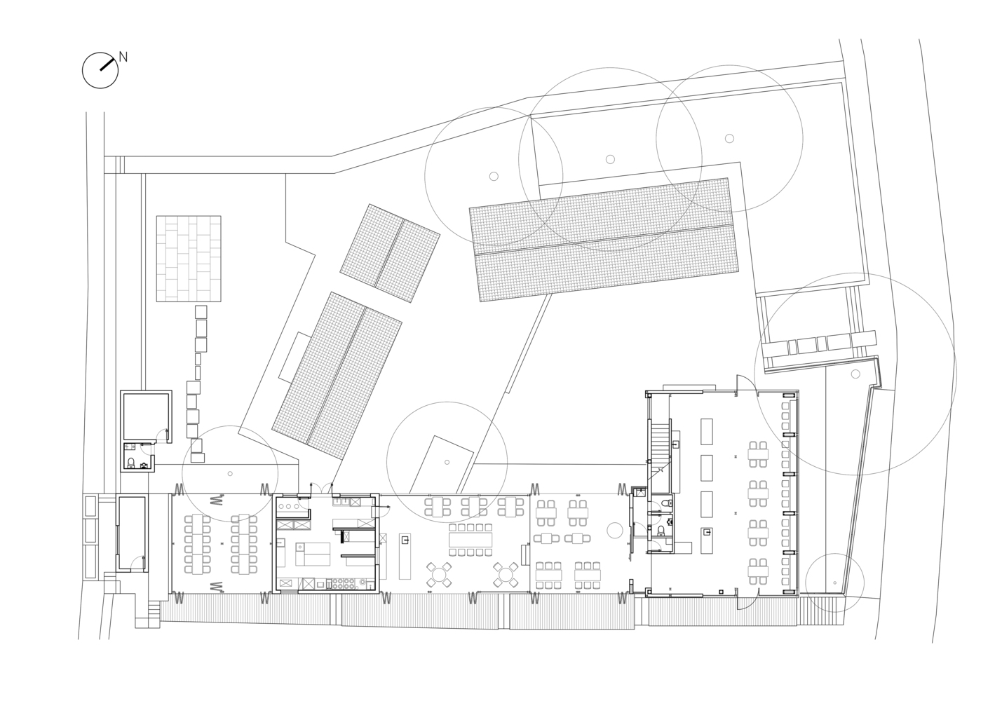
The building is a combination of blocks with high and low juxtaposition in a straight north-south shape.
The first-floor building near the low tea hill in the south is designed as a kitchen and dining room, and the second-floor building with a wide view in the north is designed as a coffee shop.
Several huge trees in the west of the site can reduce indoor energy consumption in hot summer, which creates favorable conditions for the design of large-area glass floor-to-ceiling windows.
The lower terrain in the northeast of the building can be seen by tea gardens and villages in the distance.
The beautiful tea garden landscape around the building makes the design consider ensuring the transparent indoor and outdoor vision as much as possible, so as to introduce the tea garden landscape into the interior without reservation.
In addition to the necessary structural frame and local functional space partition walls, the remaining walls of the architectural design are all designed as highly transparent white glass partitions and folding doors and windows.
We designed metal cantilevered eaves on the east and north sides of the building to form a corridor space.
As an indoor and outdoor transitional gray space, the corridor also increases the number of dining seats outside the restaurant and improves the utilization rate of the space.
In the early stage of design, there are many problems in the original building: structural cracks in the wall, uneven ground on the first floor topped by tree roots, roof leakage, structural cracks on the second floor, etc.
After many disorderly reconstruction, the structure of the building has become very unstable. After the first demolition project, we carried out secondary surveying and mapping.
After the decoration and demolition, what was exposed to us was a comprehensive space body composed of wooden floor, brick partition wall, simple C-shaped steel composite floor, angle steel lattice frame, cast-in-place concrete floor, etc.
Although the spontaneous construction and renovation of the original building lacks design dogma constraints lacks standardization and sense of security, the structural form presented is very lively and interesting.
In the design stage, we repeatedly communicated with Party A and decided to keep most of the structural frames of the main building.
However, due to many uncertain safety risks in the original structural frame, we added a complete steel structure system on the basis of the old frame structure.
The new structure and the original building structure participated in the load together, forming a large number of staggered nodes in the space.



































