ARCHITECTS
Hidekazu Kishi Architects
LEAD ARCHITECT
Hidekazu Kishi
ENGINEERING & CONSULTING > STRUCTURAL
Komatsu Structural Design
PHOTOGRAPHS
ToLoLo studio
AREA
99 m²
YEAR
2024
LOCATION
Ichinomiya, Japan
CATEGORY
Houses
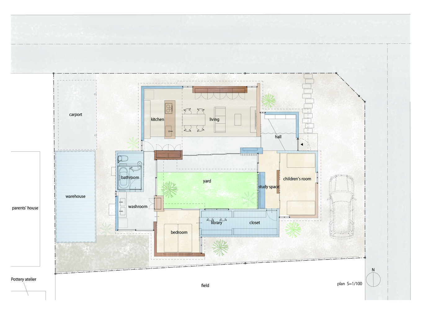
The site is located in the eastern part of the Nobi Plain, an area where rice paddies and residential areas intersect.
The surrounding area was a townscape where the spacious landscape of rice paddies coexisted with the scale of life found in residential areas.
The neighboring family home had a pottery studio in addition to the main house, and the storage space for the studio was also located within the planned site.
Also, just across the road to the north was the site of a technical high school, which had a massy texture and dry spaciousness that was different from rice paddies.
When planning their home here, the residents did not want it to simply be a new, beautiful building, but rather a place where they could feel the accumulation of time, such as their childhood roots, memories from their student days, their current lives, and their future lives.
Therefore, we thought of composing the entire house as a bricolage of the textures that exist here now and the textures that are in our memories of the past.
Textures were sampled from his parents' studio, the texture of the adjacent school building, the apartment he lived in as a student, and the streets of his home country, where he spent his childhood, and were used as materials to make up the house.
These materials appear as independent walls, not as individual rooms, but as a group that appears randomly, surrounding the entire house.
Seemingly unrelated textures each create their own unique territoriality, and the area we perceive changes depending on the materials we are aware of, such as materials that we are emotionally attached to or that overlap with past memories.
Architecture is a solid, immovable entity, but the shape and size of the space are constantly expanding and contracting in our perception, shifting back and forth between multiplicity and wholeness, whether it be the unity of the entire house, the unity of each room, or the unity created by texture.
The independence of the walls contributes to breaking down units such as "building" and "room" in a home and breaking them down into elements.
Furthermore, it mediates between the furniture scale and the architectural scale, enhancing the affinity between furniture, objects, and architecture, and between architecture and the streetscape.
As the residents' present and future lives are layered within this multiplicity, the house becomes more complex, and together with the unique furniture and objects that the residents own, it becomes a home that is like the residents themselves, encompassing their lives, memories, family relationships, and more.



























