
House of Boundary
ARCHITECTS
PLAN Architects office
LEAD ARCHITECT
Lim Tae hyung, Jo Hanee
SITE MANAGER, CONSTRUCTOR
DM Construction
PHOTOGRAPHS
Yoon, joon hwan
AREA
197 m²
YEAR
2023
LOCATION
Naju-si, South Korea
CATEGORY
Hospitality Architecture
English description provided by the architects.
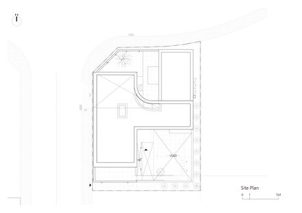
The site is located in a detached housing area in Bitgaram-dong, Gwangju-Jeonnam Joint Innovation City.
The city center forms a gravitational hub centered around the expansive lake park, observatory, commercial buildings, public institutions, and high-rise apartments.
Meanwhile, the detached housing area opens out toward farmlands and mountain ridges, extending beyond the urban edges and blending into the surrounding pastoral landscape.
The House of Boundary is designed for a middle-aged couple and their two children. The house's structure reflects careful consideration of the boundaries between urban and private spaces or between architectural elements.
The design also aims to create a less hierarchical, unconventional space that reflects the family's way of life.
The house exterior has a simple design with bright-colored bricks stacked along the boundary walls, and this resembles the form of the land.
Although the house is subject to the same building regulations as the surrounding houses, it adopted different strategies for the relationship between the building and walls, ornamentation, eaves, walls, and openings to achieve a unique exterior with a serene and comfortable atmosphere.
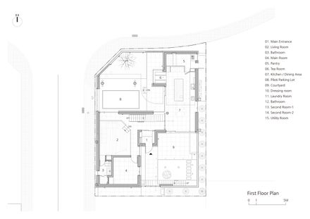
The first impression of the house shifts dramatically the moment you open the 2.6-meter-wide wooden door.
The courtyard entrance welcomes visitors with plants and flowers, a brightly lit boundary wall, and a roof leading to the front door.
The courtyard entrance serves as an architectural buffer to soften the contrasting sensations between the city and architecture and deliver an intimate sense of the residential space.
This sensibility continues throughout the interior with a consistent design, and such a quality especially stands out in the living room.
The living room ceiling has a double structure using translucent polycarbonate and traditional Korean paper, hanji, to let in the diffused natural light.
The ever-changing light and shade caused by the sun and clouds infuse the living room with a unique atmosphere. At night, interior lighting glows outward, giving the house a different character.
Furthermore, several strategies for boundaries subtly adjust spacing and segmentation between elements to create an organic relationship between interior and exterior and evoke a rich sensory experience for its residents.
They are found between interior and exterior, between floors, between vertical and horizontal elements, and at the edges of space to maximize their effects.
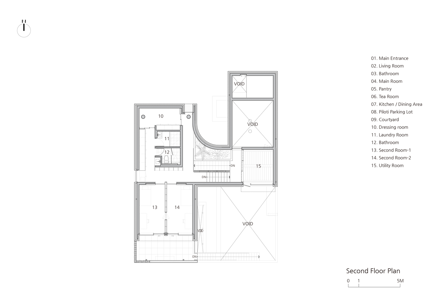
The horizontal windows placed along the stairs between the first and second floors instantly expand the view to the backyard and beyond the boundary of the house and make the monotonous vertical movement more enjoyable.
The first and second-floor walls segmented from the exterior allow both natural and artificial light to pass through to create various impressions of the house and form a distinct sense of interior space.
The skylight window of the curved wall on the second floor lets in gentle natural light to illuminate the indoor landscape, and shadows cast by the sun trace across the wall, capturing the passage of time.
The house presents a critical view of typical residential patterns, such as entrance control centered on the front door, fixed uses of spaces, and upper structures relying on the substructures found in numerous houses.
This resulted in creating a residential environment that suits family members who try to break away from hierarchy and convention and respect a free-spirited and horizontal way of living.


































