ARCHITECTS
Db Studios
LEAD ARCHITECT
Mohammad Saifullah Siddiqui
ASSISTANT ARCHITECT
Mohtasim Rehman, Waseem Jamal, Hamza Munir Awan
LEAD DRAFTSMAN
Awais Arshad
CONTRACTOR
Adnan Builder, Abdul Waheed
SITE SUPERVISOR
Adnan Builder, Naqeeb Khan
MEP CONSULTANT
Saleem Niazi
STRUCTURE ENGINEER
Engineering & Services Design, Design Men, Mujeeb Ahmad
LANDSCAPE ARCHITECT
Israr & Associates/ Landscape Architecture Practice, Mian Israr Ahmed
PHOTOGRAPHS
Usman Saqib Zuberi with Courtesy of Aga Khan Trust for Culture
AREA
848 m²
YEAR
2023
LOCATION
Islamabad, Pakistan
CATEGORY
Institute, Community
English description provided by the architects.
Vision Pakistan Welfare Trust (registered 2007) provides a second chance to marginalized youth (16+), especially non-literate low-income males of Ghauri Town, Islamabad.
Funded through Zakat, it offers a 1-year program including meals, tailoring skills, literacy (Urdu, math, bookkeeping), life skills (critical thinking, time management, gender sensitivity, self-awareness), daily chores, and basic Islamic education. The goal is social independence and economic self-sufficiency.
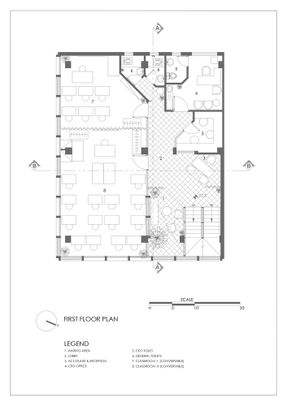
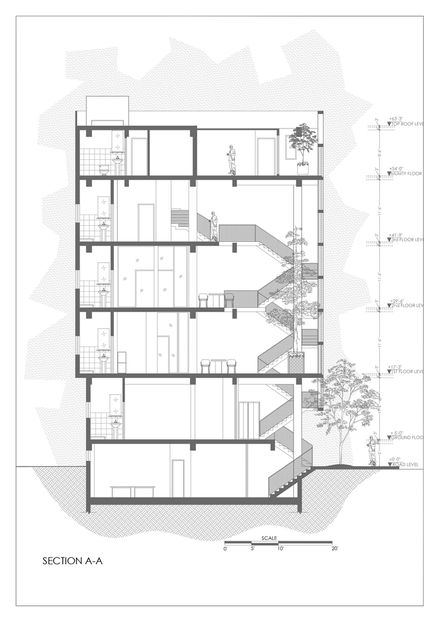
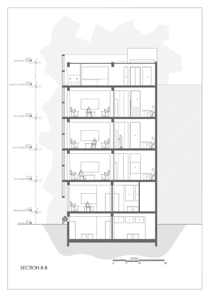
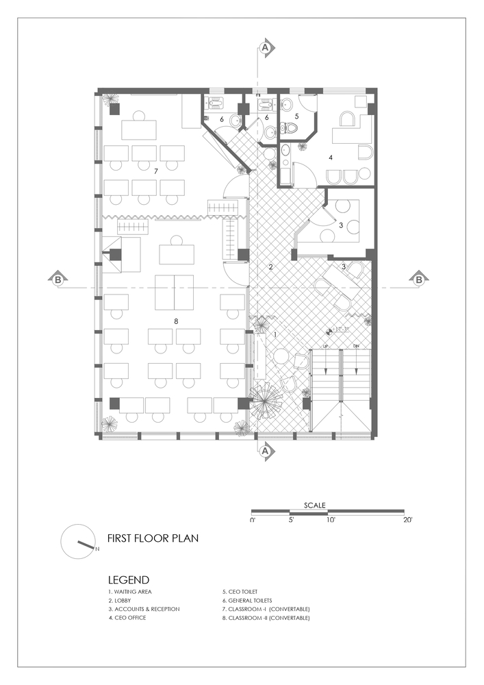
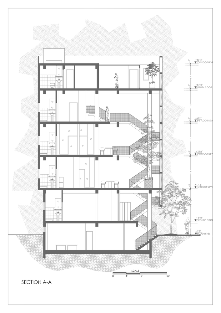
The new 6-storey, 848 sqm custom-built institute replaces inadequate rented premises. It supports 40–50 students, 5–6 tutors, 2 administrative staff, 2–3 support staff.
Commissioned in 2019, designed 2020–2022, built 2021–2023, occupied 2023. Architects: Mohammad Saifullah Siddiqui with associates; consultants include landscape, structure, MEP, and contractors.
Located on a 130 sqm corner lot on Ghauri Road, the site sits in a dense, informal peri-urban context of mixed-use plazas, small houses, vendors, and eclectic architecture.
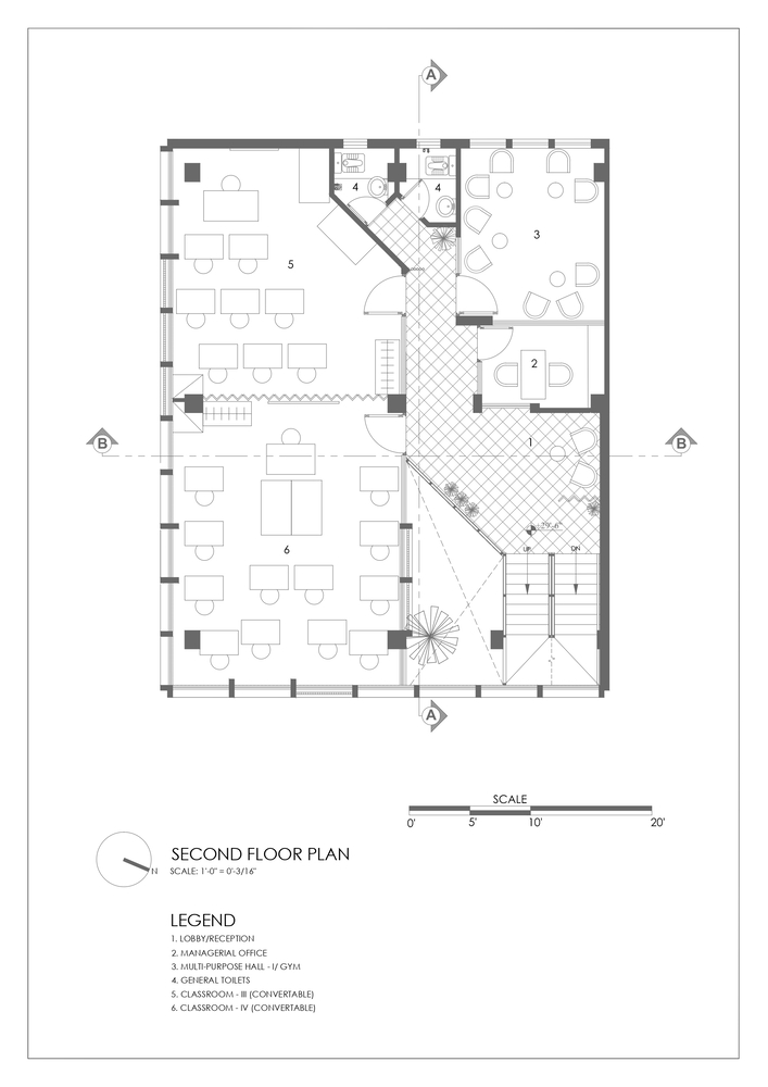
The building maximizes the full volume allowed, using a central vertical core enabling independent floor operation for revenue generation. Lower/upper ground levels include rentable retail/exhibition spaces and parking.
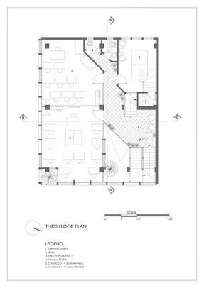
Upper floors contain classrooms (on the east for daylight/ventilation), offices, washrooms, multipurpose halls, and a triple-height atrium with a tall anchor tree enhancing ventilation and unity.
The top floor includes staff quarters, a dining hall, terraces, a prayer area, and a kitchen garden.
Materials emphasize low cost, durability, and user engagement: RCC frame, fair-face concrete, exposed brick, distemper, exposed MEP, terrazzo flooring, aluminum windows designed for easy inside cleaning, and colorful geometric metal jaali screens referencing local culture, Pakistani crafts, Islamic patterns, and 1960s Islamabad modernism.
The vibrant façade, passive strategies, cultural grounding, and flexible spaces foster ownership, pride, and environmental responsibility.
The project enhances community identity, supports economic self-sustainability, and offers a rare, positive, human-centered space for an overlooked demographic.





























