Library Of The High School Affiliated To Nanjing Normal University, Xiaozhuang Campus
LIBRARY OF THE HIGH SCHOOL AFFILIATED TO NANJING NORMAL UNIVERSITY, XIAOZHUANG CAMPUS
Yung Ho Chang, Lijia Lu
PRINCIPAL ARCHITECTS
Yung Ho Chang, Lijia Lu
PLANNING TEAM
Liang Xiaoning, Huang Shuyi, Wang Yue
ARCHITECTURE TEAM
Huang Shuyi, Wang Wenzhi, Wang Yushan, Liu Chao, Zhang He, He Zelin, Jiao Huimin, Tang Yanni Etc.
INTERIOR TEAM
Wang Wenzhi, Huang Shuyi
LANDSCAPE TEAM
Shi Qi
CONSTRUCTION FIRM
Jiangsu Nantong No.2 Construction Engineering Group, Tongzhou Construction Group
CONSTRUCTION DOCUMENTS DESIGN
Jiangsu Province Architectural D&r Institute Co., Ltd.
SITE AREA
67189.57 M2
BUILDING AREA NEWLY BUILT
80581 M2
BUILDING HEIGHT
23.9 M (Multi-story); 49.6 M (High-rise)
BUILDING AREA RENOVATED
14142 M2
LOCATION
China
CATEGORY
Library, High School
CREATING A VERTICAL HIGH-DENSITY CAMPUS
The Xiaozhuang Campus of the High School Affiliated to Nanjing Normal University (NSFZ) occupies a 66,700 sq.m site, with a total building area of approximately 95,000 sq.m.
A further 17,000 sq.m of semi-outdoor space is not counted toward the floor area ratio. The campus is designed to accommodate 42 classes, forming a high-density, compact campus due to the limited land availability.
At the center of the site, a heritage structure—the former Second Communication Station of the Republic of China Air Force is preserved, along with a high-rise dormitory built in recent years that awaits renovation.
Based on the existing conditions, the master plan is organized around the heritage building and adjacent reserved mature trees as the core landscape.
The area south of this core is designated for teaching and administration, while the north side accommodates living and sports functions.
A 400m running-track sports field on the western side is structurally elevated, making efficient use of the space below: the section near the road serves as a parent drop-off/pick-up parking zone to ease traffic pressure at the main entrance;
the central section features a semi-sunken natatorium, training hall, indoor basketball court, and an all-weather running track. An auditorium and cafeteria are located to the east.
Above the elevated sports field, the new and existing high-rise dormitories stand side by side, forming an urban fabric that transitions from higher buildings in the east to lower ones in the west.
During breaks between classes, students and teachers can ascend to the elevated field to enjoy expansive views within the dense urban setting and find a place for physical and mental refreshment.
To the south, the academic buildings adopt a zigzag layout centered on the heritage structure, forming five semi-enclosed courtyards.
The ground floor of the campus is extensively elevated, allowing free movement between courtyards and creating interactive sightlines among the entrances of different buildings.
Green landscapes extend into the elevated spaces, interacting with multiple sunken semi-outdoor activity areas to provide venues for outdoor learning.
Meanwhile, open platforms and large-span bridges connect the buildings at various levels, extending the public realm into the upper-floor academic spaces.
Features such as atriums at building corners, open staircases with resting areas, terrace classrooms within bridges, and 3.6m wide corridors collectively offer diverse spaces where students can engage in self-learning and nearby activities between classes.
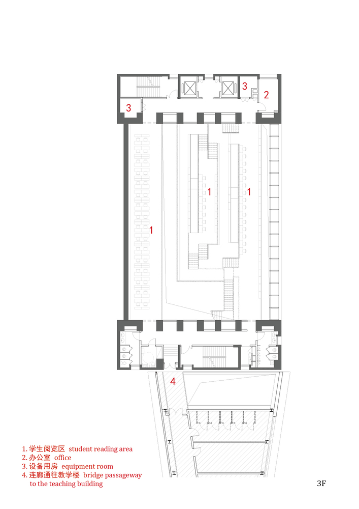
REIMAGINING AN OPEN READING SPACE
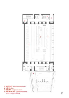
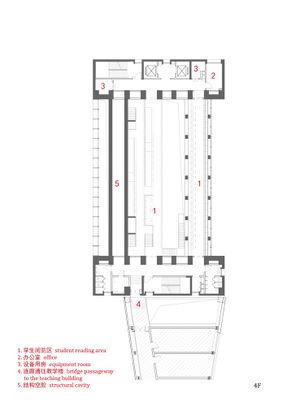
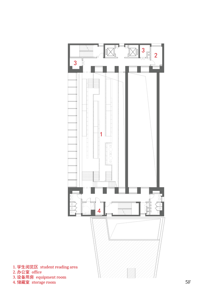
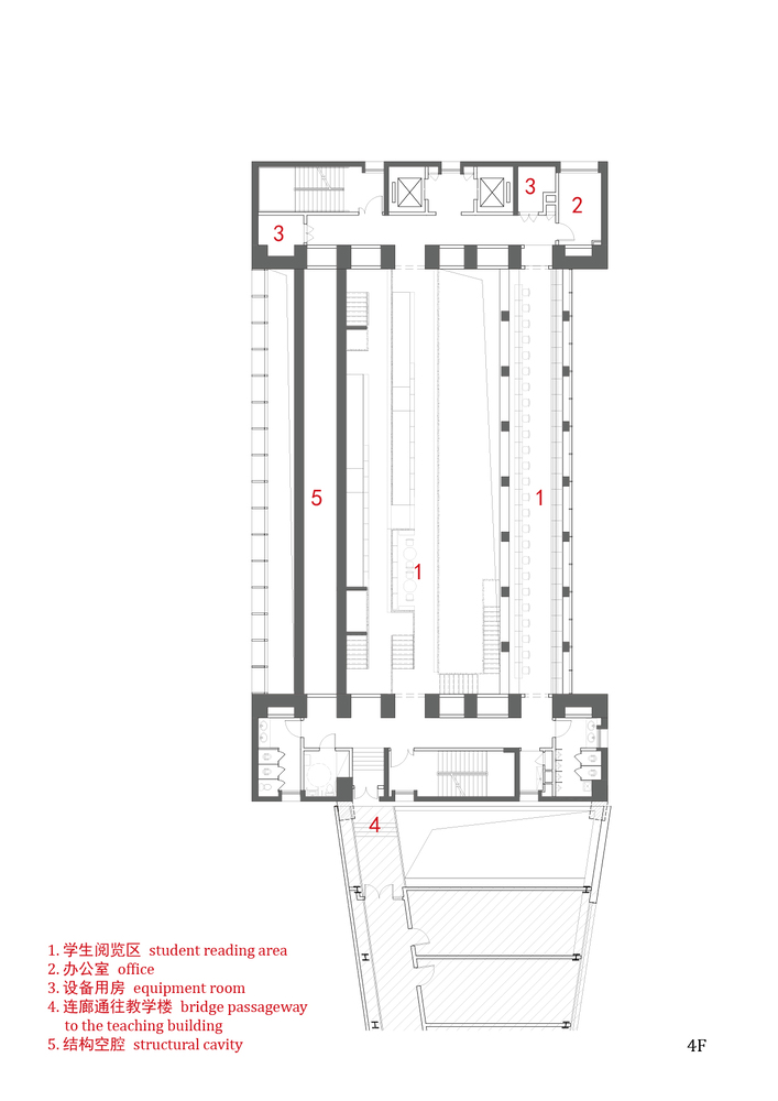
Located on the east of the heritage building plaza at the campus heart, the 3,800 sq.m library embodies the "open school" design concept.
The design departs from conventional floor plates, interweaving five large-span, tubular or terraced reading volumes within a shared atrium. These built forms generate two distinct reading environments: semi-enclosed spaces and open terraces.
A central skylight introduces natural light into the atrium, which is then diffused through multiple reflections to create a layered, luminous atmosphere. A continuous "wandering path" connects the terraced reading areas.
Beginning at the ground-floor lobby, it links the new book area, service desk, reading bleachers, and multi-level student reading platforms, ultimately extending to the top-floor digital reading room.
Gently sloped ramps ensure accessible circulation between all platforms. The semi-enclosed tubular reading spaces primarily house faculty reading rooms and book stacks. The semi-enclosed tubular spaces align with the main floor levels in elevation.
The large-span terraces and tubes, employing inclined box-section and rectangular beams, are supported by the core walls at both ends end of the atrium.
Such structural system enables tall, slanted windows that frame views of the surrounding trees, drawing the greenery inward. Continuous strip windows maintain visual connection between the tubular reading rooms and the atrium.
INTEGRATING STRUCTURE AND BUILDING SERVICES
As the main features that are extensively used both in the interior and exterior of the library, fair-faced concrete poured in ply-bamboo-formwork is not only considered as the building structure but also the finishing material that defines the spatial character.
The smooth concrete is balanced with solid wood flooring, handrails, and bookshelves, giving the interior's sculptural quality with a sense of warmth and intimacy.
Building service runs from the core walls on both side of the atrium, with pipes and ducts routed through the voids within the long-span structure.
An elevated floor system accommodates sprinkler lines and air ducts while preserving the integrity of the exposed concrete surfaces.
Air supply outlets are integrated into built-in bookshelves, desks, and railing, achieving a unified design of architecture, structure, services, and finishes.
The project's development relied heavily on sectional design to resolve spatial composition, structural needs, and service coordination and was validated through Revit modeling and full-scale BIM coordination during construction, ensuring high-quality execution of the complex spaces and fair-faced concrete structure.







































