
Itami Jun Museum
ARCHITECTS
Itm Yooehwa Architects
LEAD ARCHITECT
Ehwa Yoo
LANDSCAPE ARCHITECTS
The Garden
CONSTRUCTION
Daon Construction
STRUCTURE ENGINEERS
Yoon Structure Engineering
ELECTRICAL ENGINEERS
Woongjin Eng
MECHANICAL ENGINEERS
Seowon Energy & Environment Co., Ltd.
PROJECT MANAGER
Hansung Kim
INTERIOR DESIGNER
Sunmi Lee
LEAD DESIGNER (INTERIOR)
Heeyoung Choi
LEAD DESIGNER
Toshiharu Tanaka
PHOTOGRAPHS
Yongkwan Kim
AREA
674 m²
YEAR
2022
LOCATION
Jeju, South Korea
CATEGORY
Museum
This is an art museum dedicated to the late Japanese-Korean architect, The Itami Jun Museum was designed with his architectural philosophy that "architecture should be rooted in and bear fruit from the local context and traditions" in mind, as well as the main architectural languages.
By adapting to the Jeju locales, he sought not to disturb the horizontal and serene nature of the surrounding Jeju forest, Gokjawal.
The exterior wall finish is exposed concrete with an ogee pattern that mimics the grain of the wood, offsetting the coldness of the concrete with the pattern of the wood.
We wanted to harmonize the traditional stone walling of Jeju with the most modern material, stainless steel, while contrasting it with the wild surroundings.
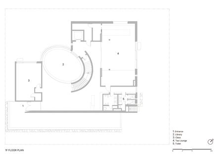
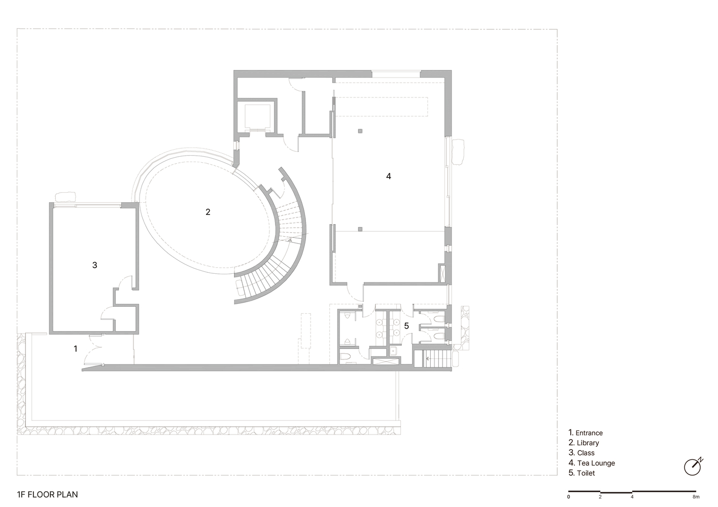
The entrance to the museum is along this wall, which also serves as a transition space. Upon entering the museum, the center of the lobby is penetrated by the elliptical massing seen from the outside.
Artificial lighting is minimized, and natural light flows along the elliptical mass through gap windows in the gap between the mass and the roof.
The library on the first floor is indian ink-colored, a signature color of Jun Itami's own creative space, and the different materials of the floor, walls, and ceiling create a harmony of indian ink colors that produce different sounds.
The indian ink space symbolizes the space of immersion and creation that has been central to all of Jun Itami's work.
I wanted to create a space of light in the darkness, silence in the solitude, and warmth in the warmth, similar to the life of Jun Itami, an architect who always lived as a vigilante.
By creating active openings to the natural environment surrounding the museum, all spaces on the first floor communicate with nature.
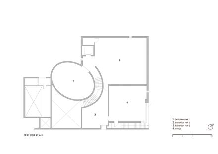
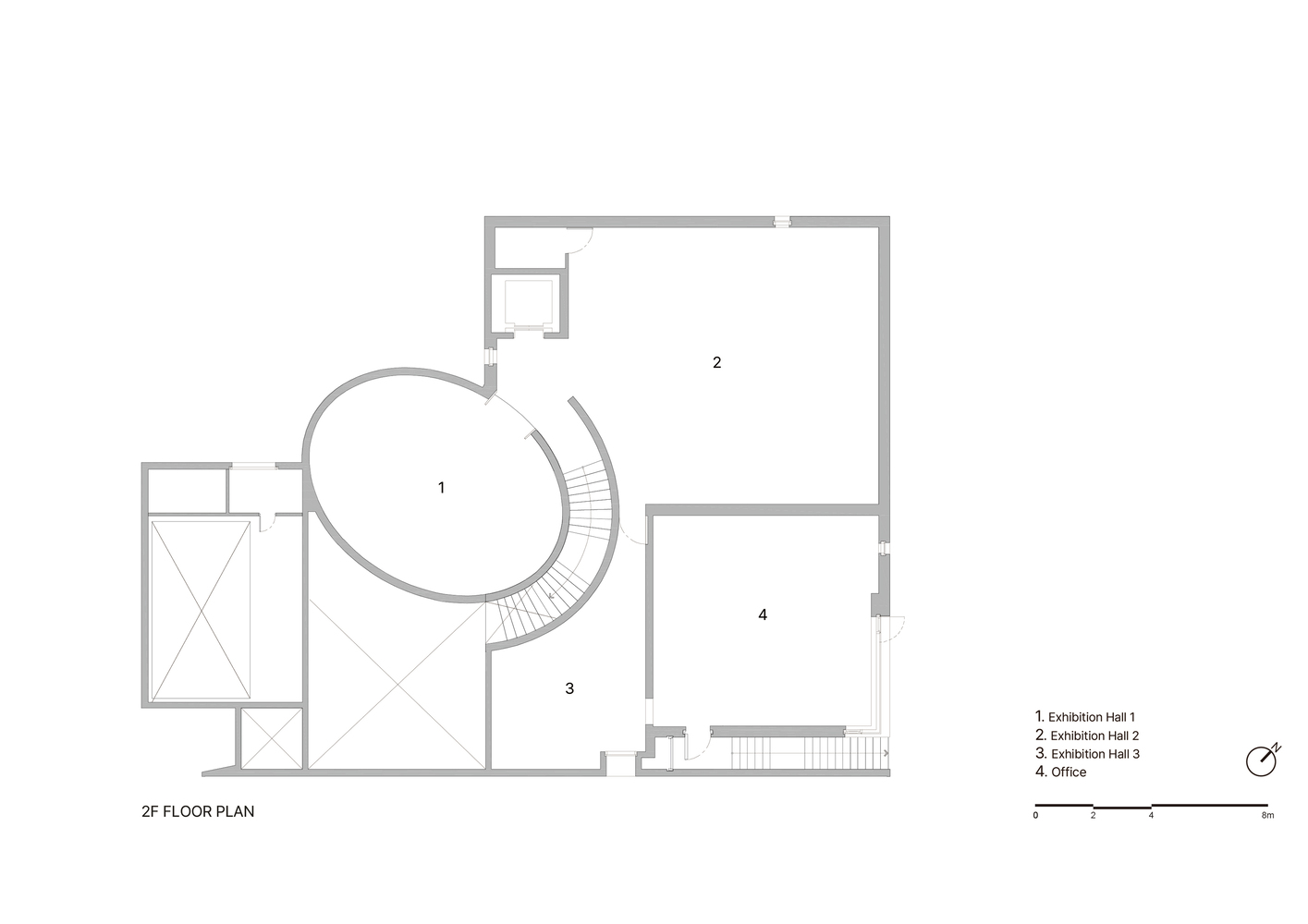
Ascending the stairs along the center natural light flowing mass, visitors will encounter the second-floor exhibition rooms. The Itami Jun Museum is an architectural idea of coexistence between nature and architecture.
The oval-shaped space is the centerpiece of the museum and contains a collection of representative works by Jun Itami. This permanent exhibition hall will showcase Jun Itami's representative works.



























