Itaara Da Serra Houses
ARCHITECTS
Pablo Patriota Arquitetos Associados
LEAD ARCHITECT
Pablo Patriota
PROJECT TEAM
Renildy Gama, Renata Brito, Andressa Collin, Mariana Lopes, Arthur Holanda, Sérgio Amaral
ENGINEERING & CONSULTING > SERVICES
Equipe Patrick Felix, Equipe Luiz Marceneiro
ENGINEERING & CONSULTING > FACILITIES
Andrade Elétrica
COORDINATION
Cléber Cabral
PHOTOGRAPHS
Walter Dias
AREA
140 m²
YEAR
2024
LOCATION
Bezerros, Brazil
CATEGORY
Residential Architecture, Houses
The starting point for Itaara da Serra was a request from a friend to visit a piece of land in Serra Negra, a rural area of Bezerros - PE.
The lot had been abandoned for years, with vegetation so high that it made inspection impossible.
After a few weeks of cleaning - without deforestation - the architect and his visiting partner, Cléber, returned and found a large rock with an exceptional view facing south, from where one can see Bezerros, Sairé, and Gravatá.
Without a defined program, the initial intention was to propose a low-investment occupation that would restore use and meaning to the land. Walks around the site revealed natural clearings where four small houses could be placed.
Taking advantage of the strong tourist appeal of Serra Negra, it was decided to create rental units. Since the regional offering is mostly composed of one-bedroom cabins, it was decided to design houses with two suites, more suitable for families or groups of friends.
The first challenge of the project was to create access to the houses without removing any trees. Thus, a winding little road emerged that traverses the land from the gate, always avoiding the existing vegetation. Of the four units planned, two were built.
The architectural design is deliberately simple: two suites, a living room integrated with a gourmet kitchen, a porch with a lavatory, and all rooms oriented towards the landscape. The central idea was always to allow the view to be the protagonist.
To place the houses, the same principle as the road was applied: to fit the buildings into the openings that nature provided, without cutting down any trees.
The proximity to the cliff was a bold decision, but it was rewarded with the sensation of floating among the clouds in the colder months when the fog covers the valley.
During the land clearing, large quantities of stones were discovered.
There was enough material to build the masonry of one of the houses, which led to the creation of two distinct typologies: the Blue House, built from stone, and the Yellow House, made of whitewashed bricks.
The predominant colors are repeated in the gutters, window frames, doors, and hydraulic tiles.
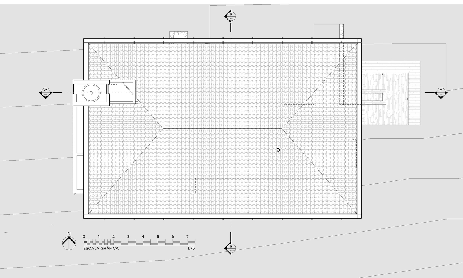
Both houses have ceramic tile roofs with excellent thermal performance and metal gutters that collect rainwater, channeled through downspouts to the cisterns installed beneath the floors.
The finishes are simple: burnt cement flooring and hydraulic tiles as the only covering. Each unit also has its own outdoor fire pit, welcoming guests in the characteristic cold of the mountains.
The name Itaara da Serra, which means "high stone," reflects the spirit of the project: an architecture that deeply respects the site and prefers to remain silent.
Everything was already so beautiful there; it was only necessary to design good houses, interfering as little as possible.

































