
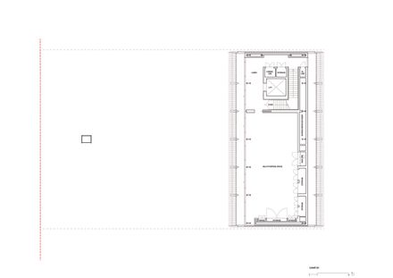
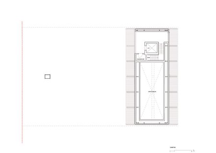
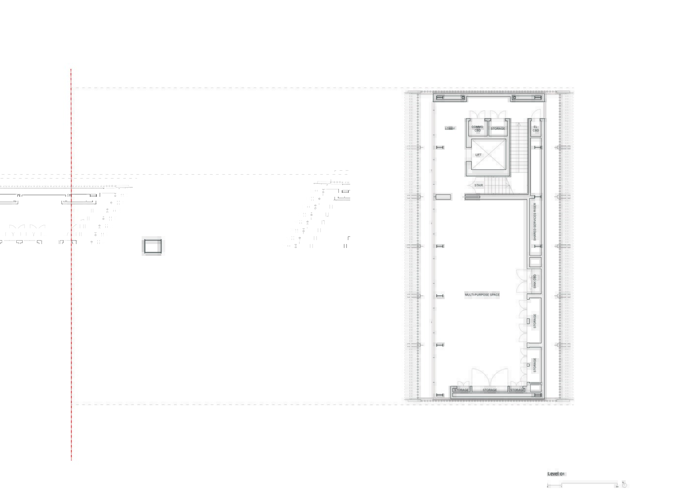
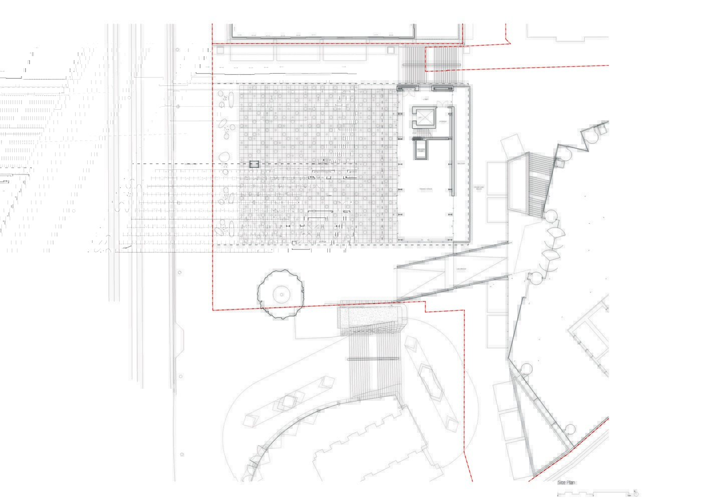
George Street Plaza & Community Building
ARCHITECTS
Adjaye Associates
STRUCTURAL ENGINEER
Arup
ARTIST
Daniel Boyd
MECHANICAL/PLUMBING ENGINEER
Lendlease
CLIENT
City Of Sydney / Lendlease
PHOTOGRAPHS
Trevor Mein
AREA
1200 m²
YEAR
2023
LOCATION
Sydney, Australia
CATEGORY
Square, Community
English description provided by the architects.
"My hope is that this new community building and George Street public plaza will become a cherished destination in Sydney's city center, a generative place for people to connect, recharge, reflect, and take a pause from the rhythm of a fast-transforming city." David Adjaye
Rooted in lost history, the new Sydney Plaza & Community Building is about the meaning of place, heritage, and identity. An attempt to uncover, layer, and celebrate the Eora origins of this part of coastal Sydney, the project is about the reconciliation of cultures and defining identity in an ever-changing world.
This acknowledgement of difference lies at the heart of the proposal and aims to create hybrid mutations from the layers of human inhabitation on the land that elucidate the history of encounters between settlers and indigenous communities.
Inspired by simple unitary forms and placemaking in Aboriginal culture, Sydney Plaza's new cultural anchor point is a seed of history based around the notion of shelter—a symbolic room to pause from the rhythm of a fast-transforming city that is discovered and dissolves through light.
To connect this profound center with the site's heritage and origins, Adjaye collaborated with Daniel Boyd, a renowned contemporary artist of Kudjla / Gangalu Aboriginal descent, on the project's key feature—a 27x34m perforated canopy that shelters and unites the community building and the plaza under a poetic layer of light and dark, solid and void.
An indirect meditation on Gestalt psychology, Boyd's artwork is experienced as a cosmic journey of light that filters and refracts through multiple, randomly scattered, circular, mirror-lined openings that culminate as a holistic visual field.
Suspended from a series of trusses supported by a singular steel column, the canopy defines the rectangular perimeter of the public plaza and helps to dissolve the surrounding architecture to activate a new place of collective encounter.
























