
Expansion And Renovation Of Primary School & Urban Infrastructure Multi-system Complex
EXPANSION AND RENOVATION OF PRIMARY SCHOOL & URBAN INFRASTRUCTURE MULTI-SYSTEM COMPLEX
Atelier Archmixing
ARCHITECTS
Atelier Archmixing
LEAD ARCHITECT
Zhuang Shen, Zhu Jie
INTERIOR
Atelier Archmixing
ENGINEER
Shanghai Tianhua Architecture Pianning & Engineering Ltd.
FACADE ENGINEERING
Suzhou Suming Deoration Co, Ltd
INTELLIGENT DESIGN
Jiangsu Netin Technologies Co, Ltd
MANUFACTURERS
Baosteel, FONGLY, Hebei Yinbiao Wire Mesh Products Co., Ltd.
LANDSCAPE
Suzhou Institute Of Landscape Architecture Design Co., Ltd.
CONSTRUCTOR
Jindu Construction Engineering Group Co., Ltd
STRUCTURAL DESIGN
Yuan Gui Structural Des. Firm Inc.
CLIENTS
Kunshan Yangcheng Lake Science Park Co., Ltd.
DESIGN TEAM
Guo Wei, Qiu Mei, He Chunyao, Liu Qian, Wu Qijing, Tang Runen, Chen Jiannan, Gong Chenxi, Deng Jian, Zhou Duchuang(Intern), Wei Zhichao(Intern), Ji Jiahui(Intern), Wu Tianrong(Intern)
VI DESIGN
Nextmixing
PHOTOGRAPHS
Runzi Zhu
AREA
34263 m²
YEAR
2022
LOCATION
Suzhou, China
CATEGORY
Schools
This increasingly complex project emerged from an interactive process and key breakthroughs by both the government and architects — through ongoing coordination and integration, architects drive the joint renewal of urban and educational spaces.
It represents a process of architects' proactive intervention and comprehensive resolution of urban architectural renewal needs.
The project site features a narrow and elongated shape, with Kunshan Experimental Primary School to the east, adjacent to Kunshan Industrial Technology Research Institute to the west.
And it connects two major urban green spaces, Dayu Lake Park and Kunshan Forest Park, at its north and south ends.
Started from a trivial commission of a few commercial boxes on a narrow linear urban greenery, we found there is a public parking underneath, so suggested to integrate these functions.
This idea gained project stakeholders' support, the first "expansion" of this project — evolving into a three-dimensional green urban complex integrating landscape, parking, and commercial programs.
Meanwhile, the Kunshan Experimental Primary School proposed new classrooms and sports facilities extend into our design site since its limited educational land use.
To overcome spatial and regulatory challenges, the architects consolidated the school extension, green space, and underground garage into a unified, multi-system design.
Through strategies of "vertical organization", "time-sharing use", and "open boundaries", limited urban resources are reorganized to enhance comprehensive benefits, effectively resolving issues for all parties.
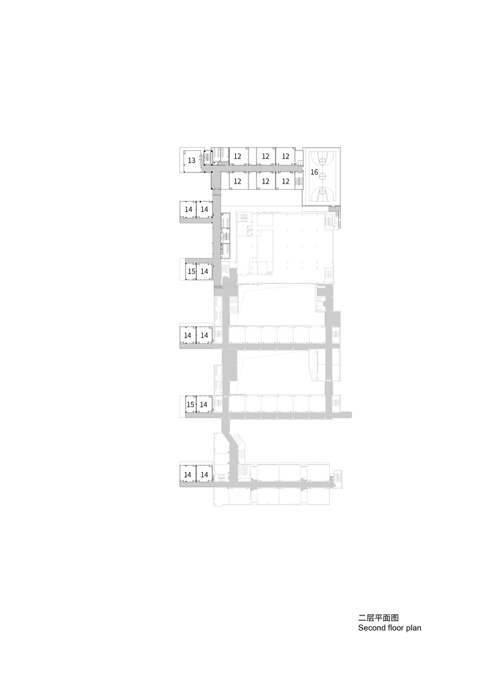
VERTICAL ORGANIZATION: A SCHOOL CANTILEVERED ABOVE THE URBAN GREEN CORRIDOR
Applying vertical spatial organization to break through the limits of land use and administrative boundaries is one of significant design strategies in this project.
It adopted a steel structural system and added to the west side of the existing teaching building, which accommodated 24 new classrooms, a part of new building cantilevering over the greenbelt.
Construction was restricted to the western and northern sides to ensure uninterrupted teaching. The new structure will connect seamlessly to the existing campus upon its completion.
The west extends buildings cross the existing fire lane, preserving its access function while efficiently utilizing the space above.
On the north side, a new multi-functional building combines teaching and activity spaces, forming a new campus center.
Through this vertical organization, the campus expansion achieves spatial layering within a constrained site, the building spans ground, greenery, and fire lane, establishing a new vertical relationship between educational and urban space.
Students study in cantilevered classrooms overlooking the green corridor, their views extending to the urban park — a visual and functional extension between campus and city.
TIME-SHARING USE: A COMPOUND URBAN PUBLIC SYSTEM
Time-sharing use is the second key design strategy, ensuring efficient use of multi-layered public spaces.
The architects redefined the urban greenbelt as "three-dimensional green corridor" — its upper level for pedestrian and landscape functions, the middle level as a sunken plaza and transport hub, and the ground level as parking and sports facilities.
The sunken plaza serves multiple roles. It functions as a drop-off area for parents during peak hours; at other times, it becomes a public open space for local citizens.
Courtyards within the underground car park bring in natural light and greenery, while some areas double as sports venues shared by students and nearby residents.
Ramps and vertical circulation connect all levels, allowing flows of people and traffic to unfold across the vertical space.
OPEN BOUNDARIES: RECONNECTING SCHOOL AND CITY
The integrated design transforms the originally enclosed campus into an open interface.
A new west gate was added along the greenbelt, to relieve traffic pressure at the main entrance and organize circulation through layered access between the sunken plaza and the underground garage.
The landscape forms a series of folded concrete planes rising from south to north, "floating" above the urban road while linking the Kunshan Forest Park and Dayu Lake Park.
Instead of enclosing walls, the campus now defines achieve interaction through layered spatial interfaces.
The upper level accommodates teaching spaces, the middle level serves as distribution and interaction areas, while the ground level is dedicated to sports and parking facilities.
Architecture and topography comprehensively extend the urban green corridor, where students, parents, teachers, and citizens share the spatial system at different times, which forms a new model of public urban interaction.
This complex project, involving multiple stakeholders and cross-disciplinary systems, was completed successfully and on schedule from 2019 to 2022, despite the unique challenges of that period.
Its success relied on close collaboration and persistence among all participants under multiple constraints.
Designers, urban constructors and policymakers shared a key goal — to maximize the efficiency of core spatial resources to meet diverse needs, while overcome rigid administrative limits.
Constraints were transformed into opportunities through innovation in both design and management, allowing strategies to directly target practical outcomes.
The integration of spatial design and construction management makes this project a model for complex urban regeneration.








































