ARCHITECTS
Akaike Kazuhito Architect & Associates
LEAD ARCHITECT
Kazuhito Akaike
PHOTOGRAPHS
Akira Nakamura
AREA
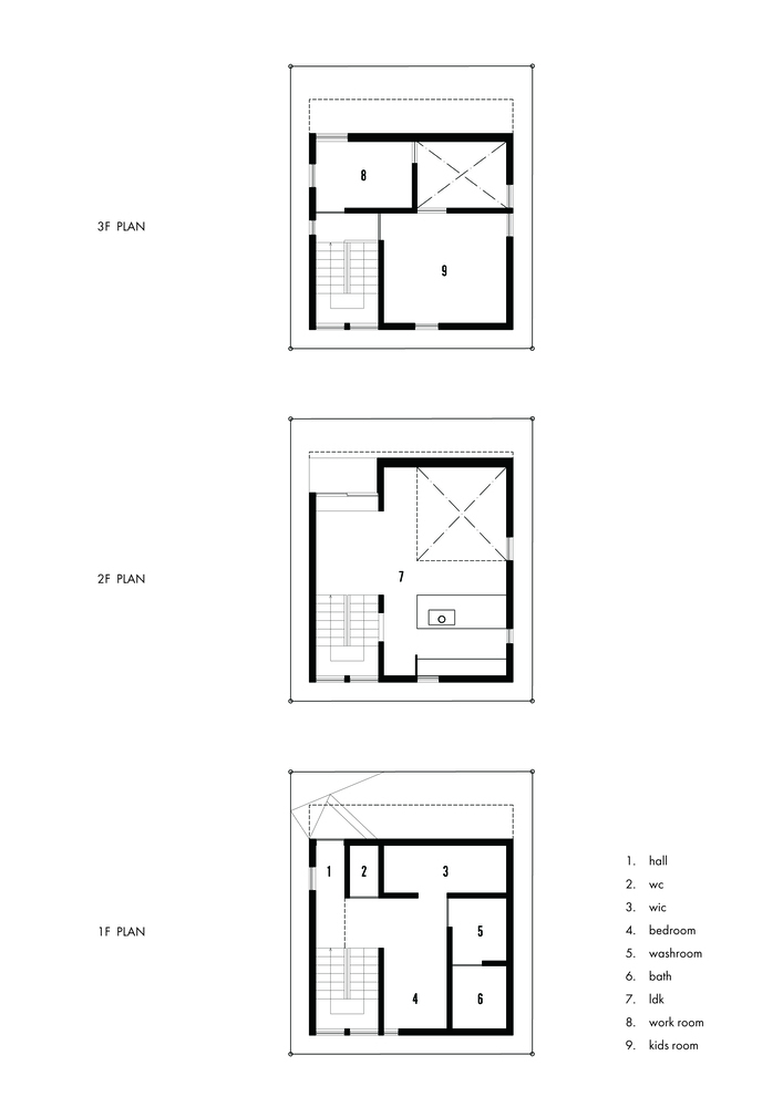
49 m²
YEAR
2025
LOCATION
Tokyo, Japan
CATEGORY
Houses
English description provided by the architects.
Johnnie Walker established its brand identity by tilting the gentleman on its label 24 degrees, diverging from the strictly horizontal and vertical norms of its time.
This notion of "tilt" inspired the exploration of new architectural possibilities within Tokyo's tightly regulated micro-lots.
For a 49 m² site in a densely populated wooden housing area, the project begins by inclining the building surface 14 degrees—a value derived from the sky exposure plane.
This angled form softens light into the alley and interior, creating a new spatial context within the traditional house-shaped skyline.













