Kiang Malingue, Art Gallery
ARCHITECTS
Beau Architects
ENGINEERING
Buro Happold
COLLABORATORS
United Soundfair (Major Works Contractor), Pott (Fitting-out Contractor)
CONSULTANTS
Rnb (E&m Contractor), Mrw (Window Contractor)
CLIENTS
Edouard Malingue And Lorraine Kiang
DESIGN TEAM
Angela Pang, Charlotte Lafont-hugo, Gilles Vanderstocken, Henry D’ath, Janice Chan
MANUFACTURERS
Erco, Schüco, Vitsœ
PHOTOGRAPHS
Xu Liang Leon
AREA
400 m²
YEAR
2023
LOCATION
Hong Kong
CATEGORY
Gallery, Renovation
English description provided by the architects.
The Kiang Malingue headquarters is the fifth collaboration between the Hong Kong based gallery and BEAU.
As so, it embodies their common ambitions to critically deconstruct the identity and experience of art spaces while addressing challenges related to cultural and environmental sustainability.
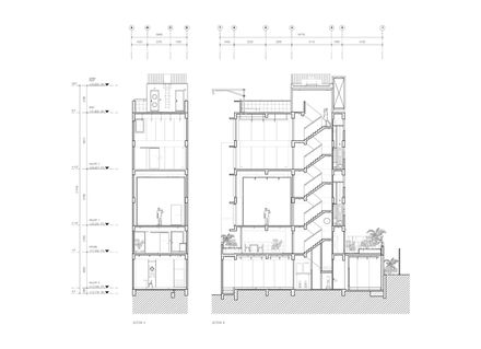
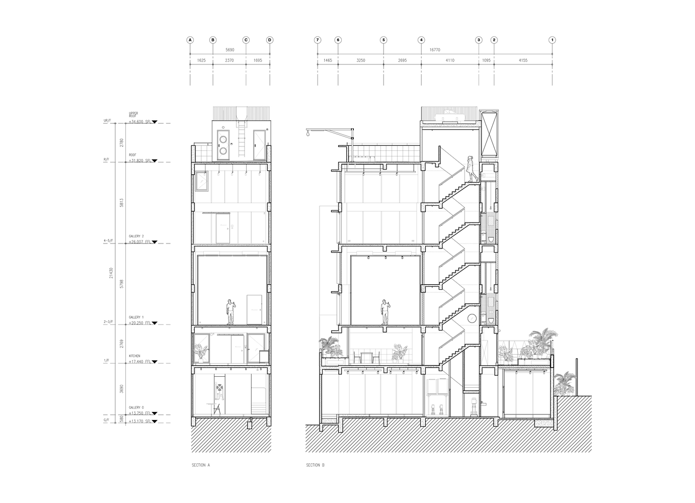
Located on a steeped street in the Wan Chai District, the project adapted a typical Hong Kong 1960s housing tong lau into a vertical art gallery.
The building typology and its archetypal elements were retained and somehow celebrated.
So was the building's original domestic nature, bringing a human scale to the exhibition spaces and helping to strike a balance between homey characteristics and the expressions or needs of an art gallery.
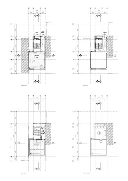
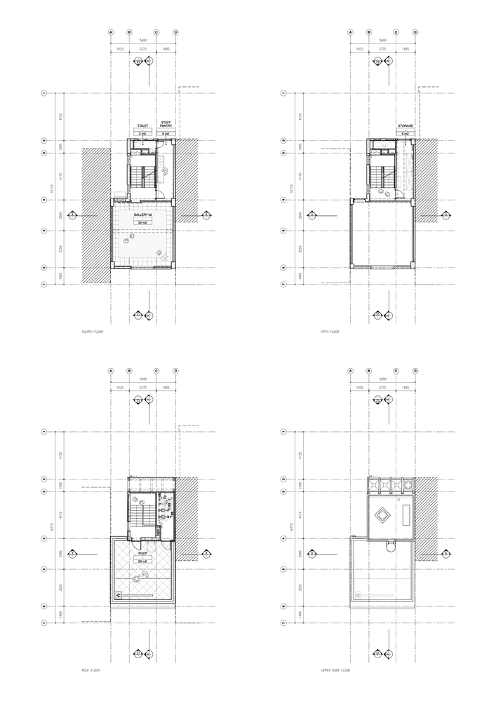
The pre-existing organisation framed the new program: the former ground floor shop is now a front main gallery open to the public, the first floor features outdoor and indoor areas including a kitchen and a garden, and the upper floors provide two exhibition cubes, a spatial configuration made possible thanks to the most complex gesture deployed in the project that is the removal of entire slabs.
If the cube on the second floor exaggeratedly plays with the codes of the white cube, the one on the fourth floor is in keeping with the global raw nature of the project.
For all interventions, traces of transformation were assumed, rendered visible, and while expressive, also consciously and carefully diluted within the pre-existing context to form a consistent and balanced whole.
The project is seen as an important case study in the architectural ecosystem of Hong Kong, introducing key notions of adaptative reuse, economy of means, and cultural preservation.














