
Lumen Residence
ARCHITECTS
Block722
LEAD ARCHITECT
Sotiris Tsergas & Katja Margaritoglou, Vasiliki Moustafatzi, Patricia Fakiolaki, Francesca Balfoussia
PROJECT MANAGER
Sotiris Tsergas, Michael Gryllakis
OWNER
Sotiris Tsergas & Katja Margaritoglou
CONSTRUCTION MANAGER
Michael Gryllakis, Panagiotis Konstantopoulos, Eleni Boni
PAINTING
Stella Kapezanou
PROCUREMENT
Eleni Boni, Sofia Stefanopoulou, Panagiotis Konstantopoulos
DESIGN TEAM
Michael Gryllakis, Eleni Boni, Panagiotis Konstantopoulos, Tzemil Moustafoglou, Marilena Michalopoulou, Sofia Stephanopoulou, Nansy Nikolopoulou, Aggeliki Kantarzi
LIGHTING DESIGN
Placed - Block722
PHOTOGRAPHS
Ana Santl
AREA
230 m²
YEAR
2025
LOCATION
Papagou, Greece
CATEGORY
Apartments
English description provided by the architects.
If the ideal home evokes an effortless sense of belonging and familiarity, then this apartment in Athens is a job well done by its creator, architecture and design studio Block722.
Precisely designed to respond to the daily needs and lifestyle of its users, the space offers fresh ideas for contemporary urban living - blending supreme functionality, the site's local conditions, and the Athenian studio's established approach of organic luxury, which emphasizes craft-rich interiors, openness, and an intrinsic relationship with nature.
Yet this project is more than a masterful showcase of residential design. The duplex unit, set on the fourth and fifth floors of a newly built apartment block on a quiet, leafy street in the Greek capital's Papagou district, is also the personal base of the studio's founders, interior designer Katja Margaritoglou and architect Sotiris Tsergas, and their family of four.
When the duo embarked on the project to create their 'forever' home, they had a set of key objectives in mind.
They knew they needed a space brimming with personality; something that is intimate and site-specific, yet truly bespoke, which would act as an embodiment of their studio values. They also wished to remain in Papagou, where they already lived.
Their search for the perfect site led them to a south-facing corner plot on a small street that backs into woods.
Working with local contractors, Thekla Construction, who acted as the overall project's developers, they designed a boutique housing scheme comprising five apartments.
Block722 earmarked the top two levels for their own use, and, together with their team, set out to define both the larger structure's design and the specific home's interior.
The residential building is confident and geometric, nodding to the spirit of the Golden Age of Papagou, a part of Athens largely developed during the 20th century and influenced by the International Style.
At the same time, the design is softly sculpted using curves, timber details, and lush Mediterranean planting, gently nodding to modernist tones but allowing 21st-centuries considerations and aesthetics to shine.
Inside, everything, from the layout and the placement of art to specific, loose, or built-in furniture (much of it designed by the studio), was exactly crafted and tailor-made for the residents' lifestyle and everyday family requirements.
Margaritoglou and Tsergas ran countless scenarios with their team, describing and intensely analyzing their way of life, wishes, and practical uses of the home, to create a truly customized dwelling which would fit their family like a glove.
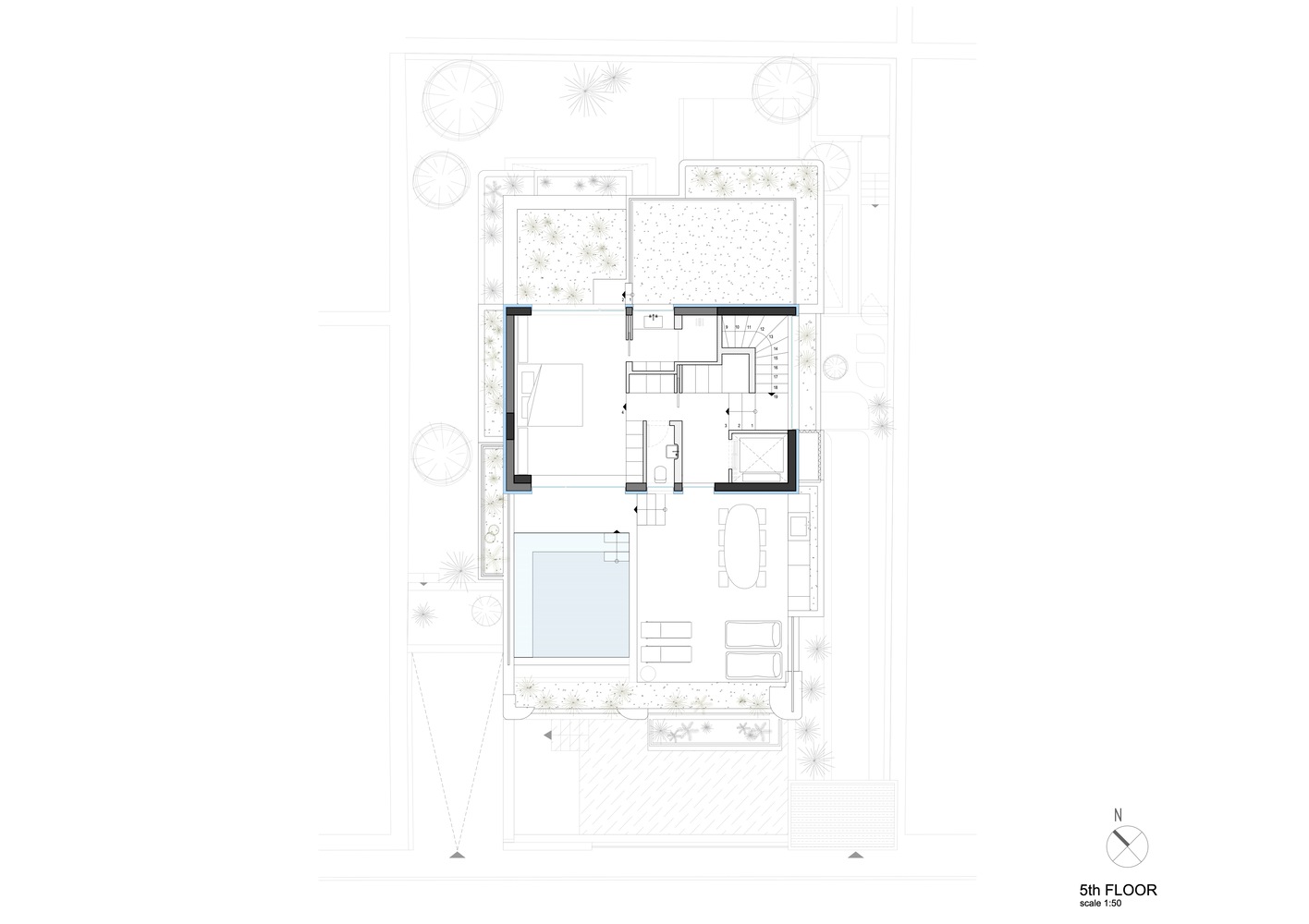
The property's first level contains two bedrooms and a flowing, open-plan living space, featuring discrete areas defined through the clever use of furniture and light partitions, and including a large kitchen, ideal for entertaining.
The primary bedroom suite, opening up to a planted roof terrace with a swimming pool, deck, and half-size basketball court, is found upstairs.
Self-contained, highly personalized, and taking in the long, carefully framed views of greenery and the cityscape beyond, the project feels more like a detached single-family house in the sky than part of a larger development.
The idea of wellness and a biophilic approach were central to the design development, showcased through natural, tactile materials, such as marble, wood, textured render, travertino rosso, ceramic tiles, and oiled timber flooring.
Following the studio's overarching style, which favors a strong relationship between indoors and outdoors, the home was conceived to connect its users with their surroundings.
This is supported by large openings which allow glimpses of greenery from every room; dedicated, flexible spaces for resting and socializing, as needed; and plenty of sunlight that ensures life within is in sync with the sun's journey throughout the day and the body's circadian rhythm.
The composition ensures the family's everyday is wrapped in surfaces that age gracefully - celebrating patina and imperfection rather than polish.
This resonates deeply with Block722's wider architectural language in more ways than one. Details, furniture, and labour by local artisans add a rich layer of craft to the whole;
while the project also showcases the studio's commitment to human- and nature-centerd design, underlining the need for an organic relationship between the environment – in all its meanings - and its users. The process itself became a learning opportunity for the entire practice.
The result is a layered case study for city living, as well as a warm home exuding a powerful sense of place.
It feels instantly lived-in and comfortable – meant to be thoroughly enjoyed since day one, slotting seamlessly into the family's life.
Block722's approach, prioritizing experience and emotion, produced a domestic environment that fosters deep connections – between residents, with its context, and the rhythm of life itself.


















































