
Ripoll - Changing Rooms And A Multi-purpose Hall
ARCHITECTS
Mh.ap Studio, Sergi Serrat
LEAD ARCHITECT
MH.AP, Sergi Serrat
GENERAL CONTRACTOR
Construccions 360
PHOTOGRAPHS
Pol Masip
AREA
710 m²
YEAR
2024
LOCATION
Ripoll, Spain
CATEGORY
Recreation & Training
Winning proposal in collaboration with Sergi Serrat to build the new changing rooms and a multi-purpose hall for a sports centre in Ripoll, a small town in Catalunya surrounded by mountains.
The complex already had a distinctive character shaped by the buildings around the football pitch, such as the bleachers, the bar and two other structures.
Our intention was not to create an element that departed from this existing configuration but to incorporate a new neighbour that felt part of the whole.
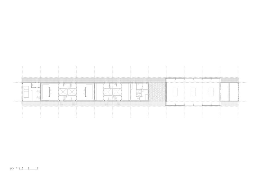
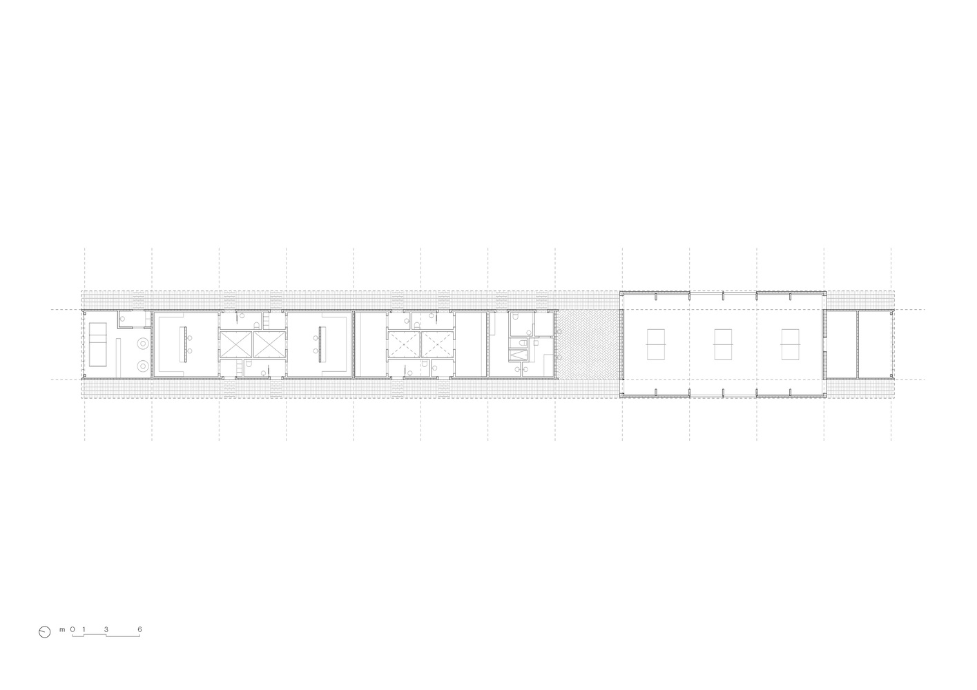
Following the horizontal proportion of the low brick building on the other side of the court, we designed a long floor plan divided into two volumes.
This roof then grows in height, transitioning to a single slope to achieve a larger space containing the multi-purpose room. The double exterior corridors allow perimeter circulation under an eave.
The gable roof accommodates the lockers and trainer's rooms, with entrances on both sides.
The roof of the changing rooms rests on a modular system of timber trusses supported by brick walls.
In the multipurpose hall, we mitigated wind loads by incorporating steel tensors on a portal frame system, reducing the columns' sections to lower construction costs.
The semi-covered area between the changing rooms and the multi-purpose hall serves as a shaded access point to the football field.


























