
Kito Yamanashi Head Office
KITO YAMANASHI HEAD OFFICE
Takenaka Corporation

ARCHITECTS
Takenaka Corporation
LEAD ARCHITECT
Satoshi Nakadate, Yutaka Umehara, Yasuo Saito
LEAD TEAM
Satoshi Nakadate, Yutaka Umehara
DESIGN TEAM
Yasuo Saito
PHOTOGRAPHS
Blue Hours_Hiroyuki Oki
AREA
2435 m²
YEAR
2023
LOCATION
Yamanashi, Japan
CATEGORY
Offices
English description provided by the architects.
ENVIRONMENTAL ARCHITECTURE WITH REFERENCE TO GRAPEVINE TRELLISES
Yamanashi is surrounded by various mountains such as Mt. Fuji, one of Japan's representative mountains, and is one of the few inland basins in the island nation of Japan.
With long hours of sunshine, low annual precipitation, large daily temperature differences, and abundant water resources, grape cultivation has flourished in the region since ancient times, and today, grape trellises weave across the landscape.
The new headquarters building of the manufacturer, which has the top market share in the manufacture and sale of material handling equipment such as hoists and chain hoists, was planned in this basin surrounded by a magnificent landscape of mountains.
Fuji, radiation air-conditioning using groundwater and cascading use of water for miscellaneous purposes, and solar radiation control by eaves made of expanded metal, the building makes the most of Yamanashi's rich environmental resources and wisdom.
ARCHITECTURE THAT GENERATES ENERGY
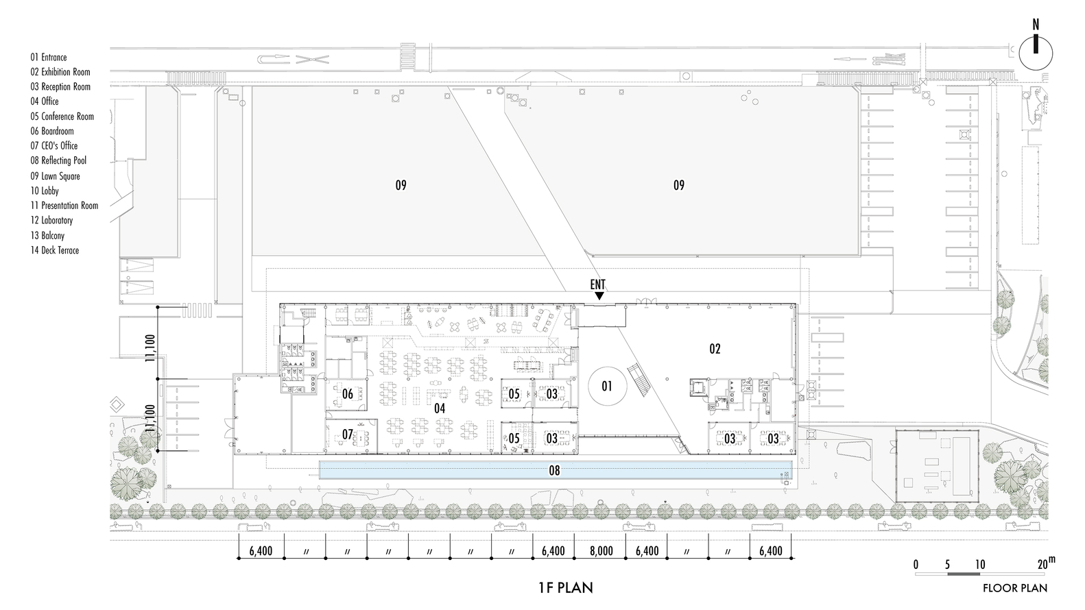
This new building will serve as the core function of the entire factory site, where administration and office work will be handled, as well as a showroom, attracting a variety of people from inside and outside the company.
The space was created to embody "grape trellises," the original landscape of Yamanashi, so that visitors can feel the surrounding environment and climate, and to promote communication. The ceiling is made of expanded metal, creating a visual continuity between the interior and exterior.
The expanded metal ceiling provides natural ventilation and natural lighting through the environmental sensors, referring to the system of "grape trellises" designed for ventilation and humidity control for the purpose of grape cultivation.
In addition, the use of renewable energy sources such as groundwater and solar power is intended to reduce the environmental impact and raise environmental awareness among the workers in the new building by visualizing the energy consumption. The long hours of daylight are used to generate more energy than the building consumes, achieving a zero-energy building.
BUILDING SYSTEMS INCLUDED IN THE LOCAL WATER CYCLE
In this area, subterranean water flows from the surrounding mountains, and groundwater is used as the foundation of daily life and local industry.
Aiming for local production for local consumption of a familiar resource, geothermal heat is recovered as an air conditioning system using 100% well water and then used in a cascade to provide a good light and air environment indoors as a water basin with evaporative cooling and light shelf effects, before being discharged into a nearby river.
By incorporating the water cycle of the new building into the water resource cycle that circulates through the atmosphere and underground, an environmental architecture that is rooted in the natural environment of this site was realized.

















