
Fezh
ARCHITECTS
Itm Yooehwa Architects
LEAD ARCHITECT
Ehwa Yoo
INTERIOR DESIGNER
Sunmi Lee
LEAD DESIGNER
Toshiharu Tanaka
LEAD DESIGNER (INTERIOR)
Heeyoung Choi
PROJECT MANAGER
Hansung Kim
LANDSCAPE ARCHITECTS
The Garden
LIGHTING DESIGNERS
Bitzro&partners
CIVIL ENGINEERS
Yujin Eng
MECHANICAL ENGINEERS
Seowon Energy & Environment Co., Ltd.
ELECTRICAL ENGINEERS
Hankook Tec
CONSTRUCTION
The Frame Construction, Inox
STRUCTURE ENGINEERS
Jin Structure Engineers
MANUFACTURERS
Burnt wood, C-BLACK, Claymax, Epoxy Terrazzo, LX Hausys, VM zinc
ACOUSTICS CONSULTANTS
Archisound
PHOTOGRAPHS
Jeon Hyowon, Yongkwan Kim
AREA
1196 m²
YEAR
2024
LOCATION
Seoul, South Korea
CATEGORY
Public Space, Mixed Use Architecture, Cultural Architecture
English description provided by the architects.
FEZH reinterprets the spatial logic of Fes El Bali, where clustered dwellings form the foundation of an organic urban fabric.
Drawing from this precedent, the project aspires to create a "minimal urban unit" that consolidates essential communal functions for healing, culture, and everyday life.
Within the gentle alleyways of Hannam-dong, FEZH positions itself as a compact city—an intersection of architecture, nature, and human experience—embodying its name, which merges Fez, Healing, and Hannam-dong.
The design originated from a desire to translate the relationships between city, nature, and people into space. Responding to the client's longstanding observation of the neighborhood's evolving culture, FEZH aims to create an open, community-centered environment that invites participation.
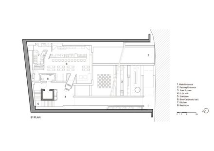
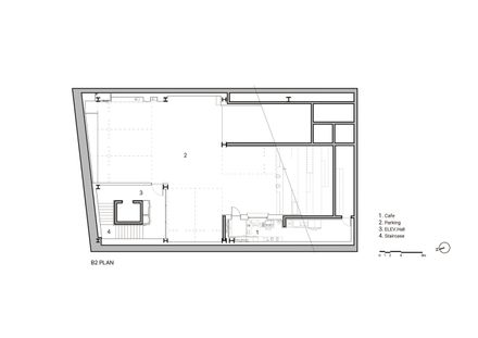
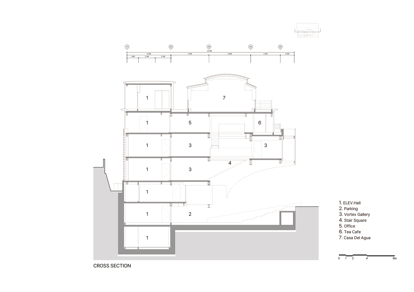
This ambition is crystallized in its central Voided Space, a vertical void connecting the basement and ground level. Functioning as an urban sanctuary, it brings sunlight and breezes into the heart of the building, providing a place for pause and interaction.
Like a historic square, it becomes a cultural core where encounters, dialogue, and organic growth begin.
Movement through FEZH embraces the joy of exploration. Interwoven vertical and horizontal pathways generate a sense of wandering through an old city, offering new spatial discoveries at each turn.
The narrative of circulation supports independent yet interconnected experiences, allowing visitors to shape their own journeys.
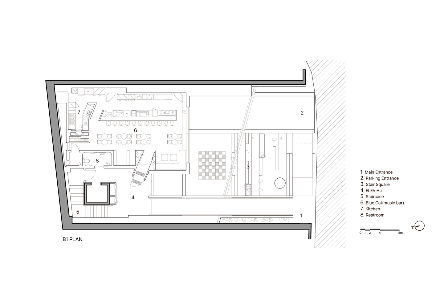
D-SQUARE, aligned with the street and the void above, serves as a communal plaza for residents and visitors alike. Hosting concerts, gatherings, and daily activities it reinforces FEZH's role as an accessible civic space.
Nearby, BLUE CAT—evoking Haruki Murakami's literary and musical sensibility—offers an intimate atmosphere shaped by curated audio, literature, and weekly performances.
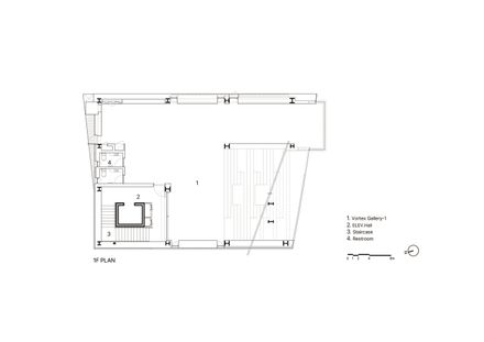
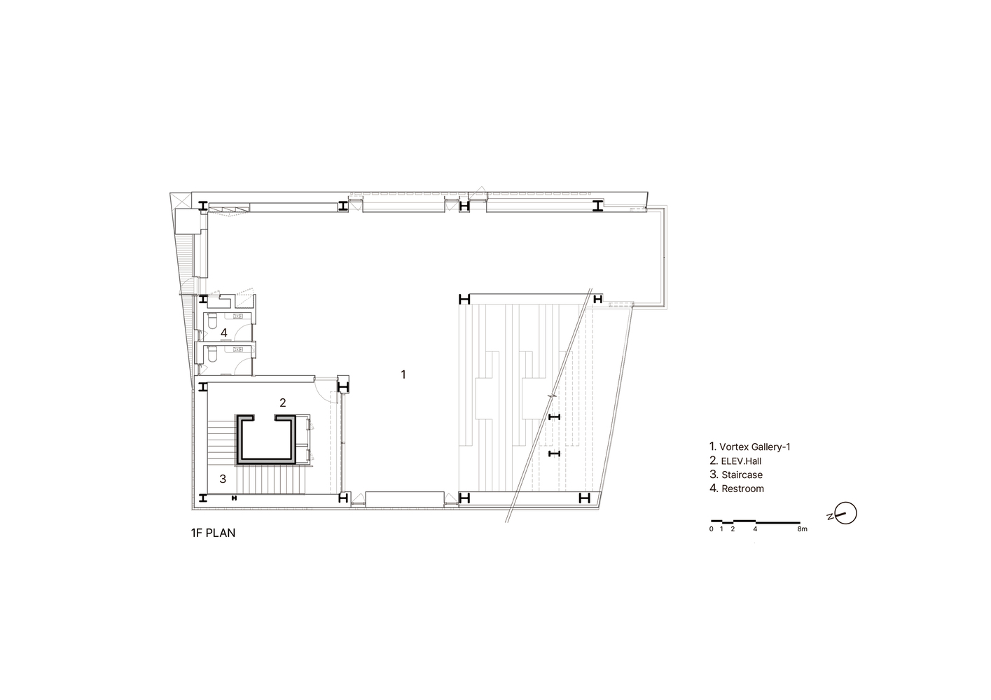
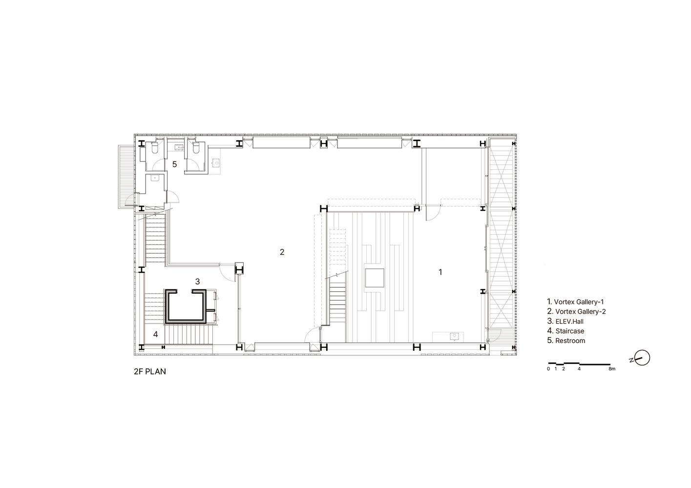
The Vortex Gallery uses layered circulation and filtered light to create evolving exhibition environments suited for pop-ups, performances, and cultural events, further reinforcing FEZH's identity as an urban cultural platform.
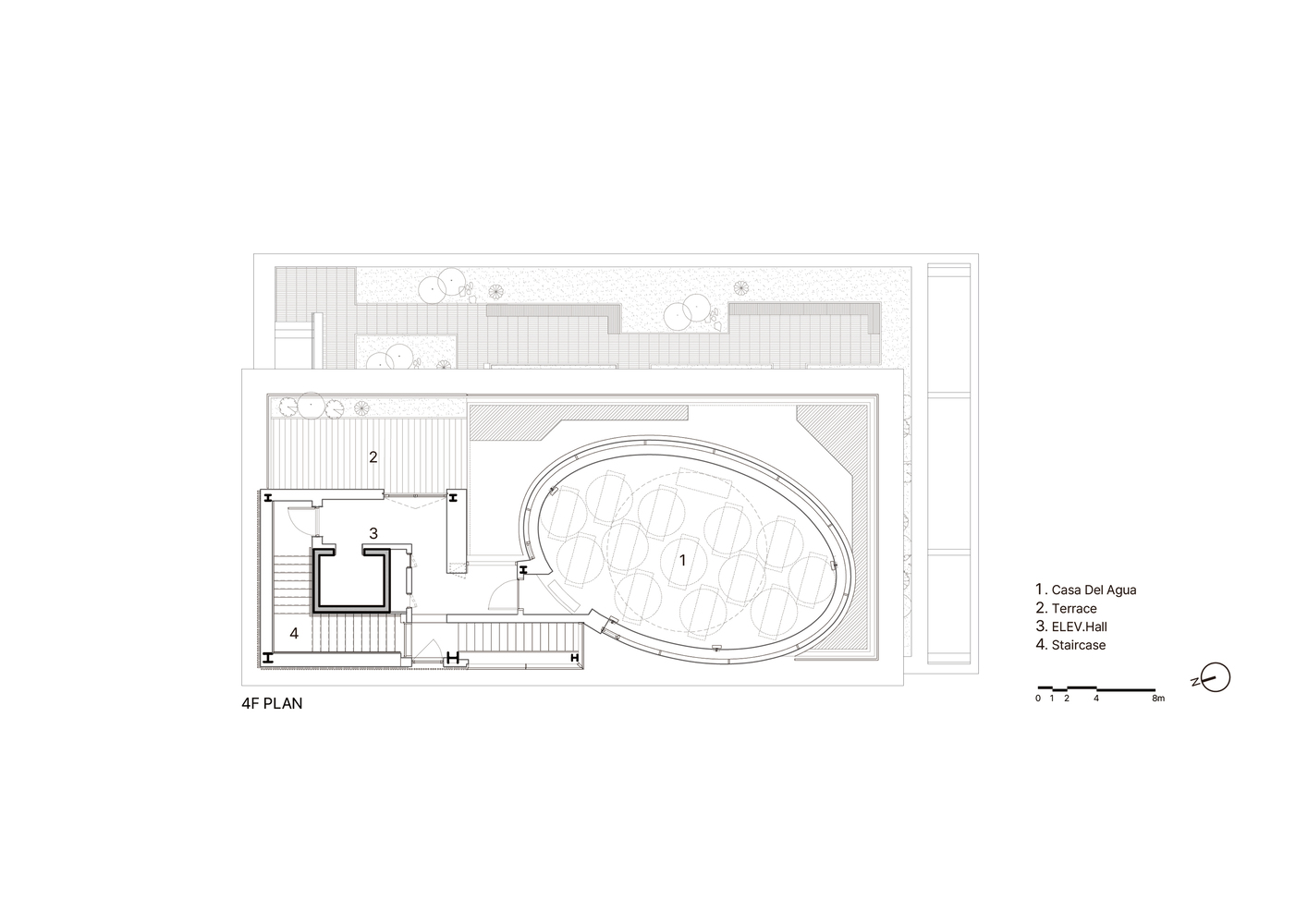
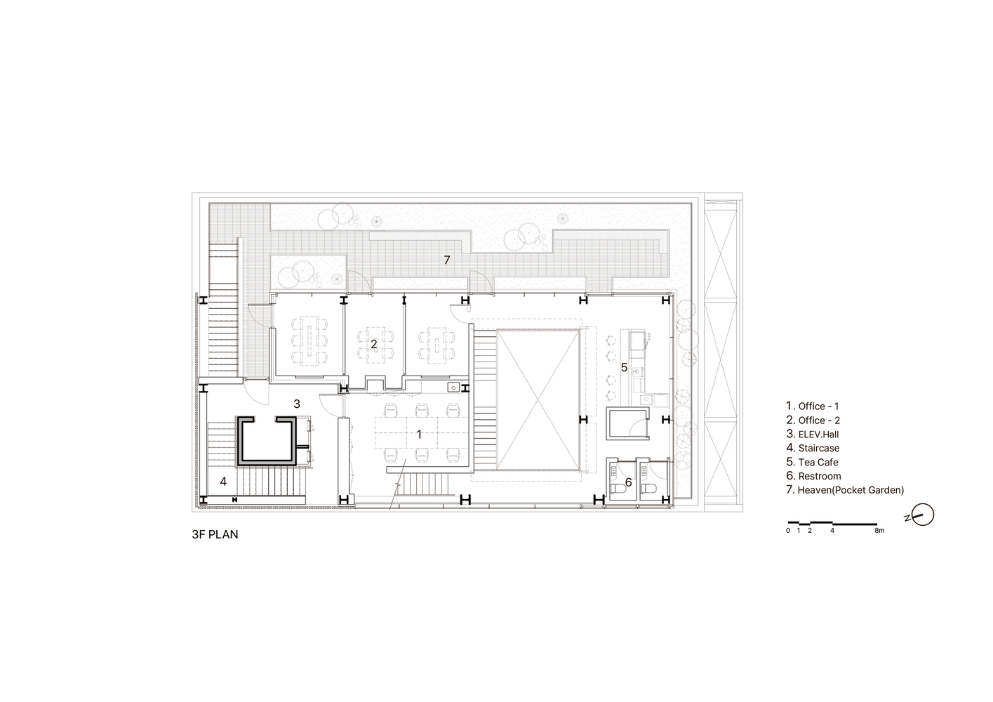
Ascending upward, Pocket Garden Heaven and its teahouse form a compact ecological park within the dense city, offering places for yoga, tea, and quiet retreat. Casa del Agua continues this meditative journey, integrating water, hinoki cypress, and immersive audiovisual systems to create a restorative interior landscape.
Material selection was guided by the desire to capture the comfort of Hannam-dong's alleys. Brick and charred wood form a warm, tactile palette that anchors FEZH within its historic context while bridging nature and urbanity. Their textures and tones aim to evoke familiarity and continuity with the neighborhood's past.
Conceived as an organism, FEZH envisions the city as a living entity shaped by people and culture. It seeks to nurture relationships, stimulate creativity, and disseminate new forms of inspiration throughout Hannam-dong.
Ultimately, FEZH proposes a vision of urbanism rooted in intimacy, discovery, and connection—offering a condensed model of the values cities must cultivate for the future.






























