ARCHITECTS
Okra Studio
DESIGN TEAM
Ben Stuart-smith
LANDSCAPE ARCHITECTURE
Tom Stuart-smith Studio
ENGINEERING & CONSULTING > STRUCTURAL
Structure Workshop
GENERAL CONTRACTOR
Slabside Construction
MANUFACTURERS
DASK Timber, HG Matthews, Hemp Block, Jones Neville, Merchant & Found, Tilly
PHOTOGRAPHS
Building Narratives
AREA
150 m²
YEAR
2024
LOCATION
United Kingdom
CATEGORY
Healthcare Architecture, Wellbeing, Educational Architecture
English description provided by the architects.
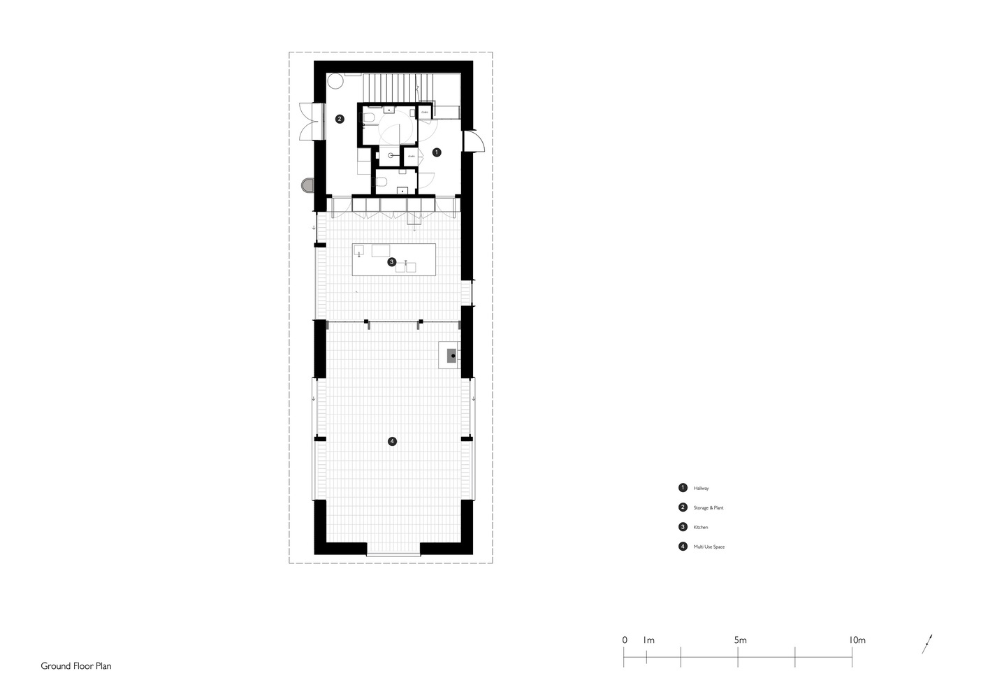
Designed by Okra, the Apple House in Hertfordshire is an education and wellbeing hub embedded within a plant library by landscape design practice Tom Stuart Smith Studio.
The building combines an innovative glulam portal frame, designed by Structure Workshop, with local materials and craftsmanship.
Large openings connect multifunctional spaces to the surrounding landscape on multiple axes, framing a woodland to the south, a vegetable garden to the east, and an extensive plant library to the west.
A year-round education and community program provides professional and public participation in horticulture and environmental stewardship, including local schools, youth groups, mental health charities, residents, and designers.
The site's location within the Metropolitan Green Belt meant it was tightly constrained from a planning perspective.
Collaboration with the local community was critical to providing evidence of its need and helped demonstrate the 'Very Special Circumstances' required to overturn policy to gain planning permission.
An existing relationship with local charity Sunnyside Rural Trust also assisted this process, who now have a permanent presence on the site and provides horticultural training and employment for adults with autism.
Okra employed a radical approach to material sustainability; a pre-fabricated spruce glu-lam structure creates a large open volume with generous openings, while handcrafted floors of local unfired clay, hempcrete, lime plastered walls, and cleft oak cladding create a warm and calming atmosphere.
Collaborating with natural materials expert Will Stanwix, Okra explored the use of unfired clay 'strock' building blocks, typically used for walling and made by local brickmaker HG Mathews.
Okra established a low-cost, earthen floor by cutting the bricks in two and sealing them with a bespoke pigmented linseed oil, which retained the warm, natural tones of the clay.
The building's cleft oak cladding was deemed a resourceful, low-carbon, and aesthetically pleasing material choice.
Overcrowded oaks within 500m of the site were felled and cut by chainsaw to lengths that enabled them to be processed entirely by hand.
The wavy, irregular quality of the cladding creates visual interest and has gone on to create an appealing habitat for wildlife, including the barbastelle bat, one of the UK's rarest and most threatened species of bat.


























