Mom's House
ARCHITECTS
Studio Zé
LEAD ARCHITECT
Zé Vagner
BRICKLAYER
Eduardo Oliveira
PROJECT TEAM
Rubens Trajano, Nic Caldeira, Adja Santos
BRICKLAYER'S ASSISTANT
Marluce Oliveira
MANUFACTURERS
Cerâmica Reis, Esquina dos Presentes, Ladrilhos Olinda, Lenys Tiburcio, Ludmilla Castro, Vucan Impermeabilizantes
CERAMIST
Sr. Cassimiro
PHOTOGRAPHS
Hélder Santana
AREA
165 m²
YEAR
2025
LOCATION
Feira Nova, Brazil
CATEGORY
Residential Architecture, Houses
Located in Feira Nova, a town of 20,000 inhabitants known for its production of cassava flour in the Pernambuco hinterlands, the residence of the architect's mother was built by local residents in the 1980s using adobe techniques.
Over the years, reflecting a common practice among low-income populations, the building has undergone various renovations to adapt to new family dynamics.
These consecutive "additions," which addressed some immediate problems, resulted in a dense and poorly functional built mass, marked by a lack of adequate ventilation and lighting.
In addition, with advancing age, the resident began to experience respiratory illnesses that reinforced the need for a new renovation.
The project seeks to meet the needs of the resident considering the history and implementation of the building.
Based on the concepts presented by Armando de Holanda in the Roteiro para construir no Nordeste (2010), the project adopts the predominant use of natural and local materials, cross-ventilation, and natural lighting, while prioritizing low construction and maintenance costs.
The construction solutions engage with the locally available, minimally skilled labor, valuing popular knowledge and ensuring the viability of execution.
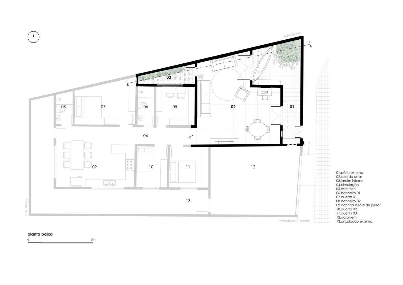
Due to financial limitations, only the facade and social areas were renovated, and the original adobe walls were preserved, also improving the thermal performance of the building.
The main intervention consisted of raising the ceiling height in one section, making the two slopes of the roof uneven, thus allowing for ventilation for the west-facing facade through a line of cobogós.
Five underutilized spaces were demolished to allow for a spacious living room, an internal garden, and an open terrace, enhancing the sociability that the house already possessed.
The entrance doors, now restored, are protected by precast concrete panels, used here as low-cost horizontal brises; the same element also forms the benches of the open terrace.
The facade wall, maintained at the resident's request, is now perforated through a pattern of ceramic bricks inspired by how brick factories stack pieces for drying.
The base of the wall is clad with ceramic tiles originally intended for the oven slabs of the region's flour houses.
The proposed architecture seeks to reconcile with popular practices, respecting and reinterpreting local construction methods in light of contemporary climatic and social challenges, especially in the pursuit of dignified permanence in the territories.




































