An Educational Farm On The Roof
ARCHITECTS
Rerum Architectes
LEAD TEAM
Claire Roy, Adélie Collard
ENGINEERING & CONSULTING > ELECTRICAL
Acfi
ENGINEERING & CONSULTING > STRUCTURAL
I+A
DESIGN TEAM
Rerum Architectes
PHOTOGRAPHS
Mary Gaudin
AREA
350 m²
YEAR
2025
LOCATION
Paris, France
CATEGORY
Educational Architecture
English description provided by the architects.
A new greenhouse and an educational pavilion transform the rooftop of Collège Flora Tristan into a productive and pedagogical urban farm.
Located atop a secondary school in Paris, the project supports the work of Veni Verdi, an urban agriculture association that cultivates fruits, vegetables, and flowers as part of the school's educational program.
The rooftop, originally intended as a school playground, already offered spatial qualities compatible with productive use.
Through a participatory budget from the City of Paris, the project enhances this unique agricultural setting while embracing a frugal approach aligned with environmental and financial constraints.
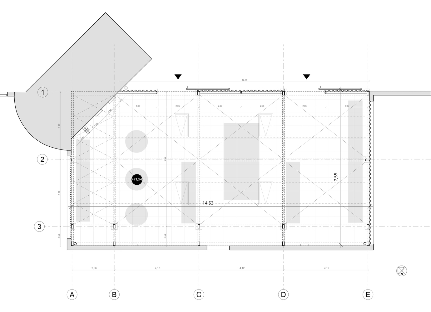
The design introduces two complementary enclosed volumes: a greenhouse dedicated to crop production, and an educational space subdivided into three learning areas.
These structures are accompanied by open planting zones, both in raised beds and in open ground, creating a comprehensive teaching and growing environment.
The project is conceived as a functional and pedagogical system articulated around four core principles: support, shelter, recycle, and ventilate.
-1 SUPPORT
The construction is organized as a clear system that highlights the specific role of each component. The first principle, support, addresses structural logic.
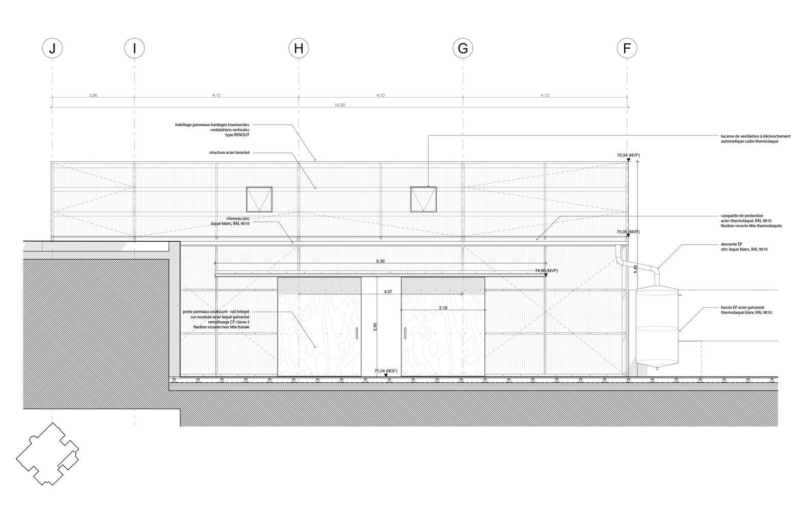
To preserve the existing waterproofing as much as possible, the new galvanized steel structure spans from wall to wall, minimizing interventions on the roof membrane while providing a robust framework for the new volumes.
-2 SHELTER
The second principle, shelter, responds simultaneously to the needs of users and crops.
Although the two volumes share a similar structural logic, their climatic envelopes differ according to programmatic use: – A transparent polycarbonate skin maximizes solar gain and supports plant growth in the greenhouse.
– A translucent envelope ensures balanced daylight and thermal comfort in the educational space.
This adaptive use of polycarbonate, chosen for its durability and UV management, and widely used in agricultural construction, supports the dual agricultural and pedagogical missions of the project.
-3 RECYCLE
Water management becomes both an operational and educational tool. A rainwater harvesting basin collects nearly half of the rooftop runoff, redirecting it into a dedicated tank for agricultural use.
The visible routing of potable and non-potable water makes the entire water cycle legible.
By exposing the paths of collection, storage, and redistribution, the project turns water circulation into a tangible architectural and pedagogical narrative.
-4 VENTILATE
To ensure adaptable climatic conditions, the project integrates several atmospheric regulation strategies.
Roof openings reinterpret the traditional language of agricultural greenhouses and are equipped with an autonomous, thermosensitive opening system.
On the façades, alternating solid and perforated polycarbonate panels enhance natural ventilation, improving both crop health and user comfort.
By organizing the rooftop around these four principles, the project strengthens the integration of urban agriculture into the daily life of the school and offers students an immersive, hands-on learning environment.



























