
Basketball Development Center
ARCHITECTS
Teget
LEAD ARCHITECT
Mehmet Kütükçüoğlu, Ertuğ Uçar
ARCHITECTS
Ece Ünübol, Ethem Aybar, Hande Ciğerli, Tuberk Altuntaş, Onur Akin, Seda Kumru, Banu Aktaş, Deniz Dilan Kara, Nazli Ünsal, Beyza Paksoy, Mehmet Kaymaz, Yildirim Erbaz, Mehmet Erdönmez, Beyza Günaydin
STRUCTURAL ENGINEER
Ural Engineering
MECHANICAL ENGINEER
Okutan Engineering
ELECTRICAL ENGINEER
Yurdakul Engineering
PHOTOGRAPHS
Egemen Karakaya
AREA
150000 m²
YEAR
2024
LOCATION
İstanbul, Türkiye
CATEGORY
Sports Architecture
The Basketball Development Center (BDC) is located at the point where the historic Istanbul Land Walls meet the Sea of Marmara in front of the Yedikule gardens, positioned between the Balıklı Greek Hospital campus and the fortification line.
Anchored to the east–west grid established by the Balıklı Greek Hospital, which is organized around courtyards, plazas, and an organic circulation network, the BDC is a basketball campus shaped by the strong context it inhabits.
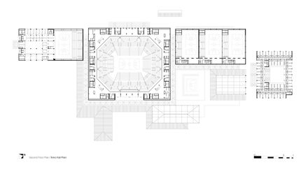
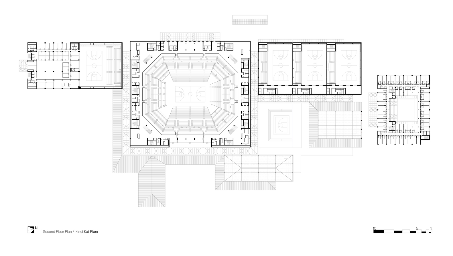
At the heart of the BDC lies the main arena. The spaces surrounding this core line are an internal street that gently curves as it accommodates a variety of functions.
This compact planning pattern gives rise to a settlement that unfolds gradually, revealing itself over time. Seven separate volumes, with eave heights ranging from 4 to 21 meters, extend across from the historic walls as a monolithic plastered shell.
The masses shift back and forth, incorporating streets, plazas, and green pockets between them, while the varied roofscape—alternating between lower and higher pitches—softens the weight of the long street-facing façade.
Meanwhile, the sequence of modestly scaled roofs rising opposite the fortifications provides the necessary volume for technical equipment.
As the inner and outer façades establish a balanced expression, the sheltered internal street and the portico level—acting as a secondary ground layer—create a spatial transition between the staggered volumes, both formally and functionally.
This treatment of façade and plan reflects an anonymous architectural approach shaped by context and program—standing in contrast to the mega-iconic, introverted sports buildings commonly found on city peripheries, which impose their own rules on their surroundings.
In addition to the multifunctional main arena—with a capacity of 10,000 spectators and the ability to host a wide range of events, from international tournaments to world-renowned organizations—the BDC includes three youth training halls, each having a capacity of 500 spectators.
In another building, the Turkish National Teams operate under the same roof as the Turkish Basketball Federation. Here, athletic, technical, and administrative staff carry out preparation and planning activities.
This building also contains another court with 1,000 seats, designed to accommodate both tournament games and training sessions, and arranged around the needs of athletes before and after competition.
The campus includes a camp center where professionals from Turkey and abroad can stay, and where year-round seminars, conferences, meetings, and workshops are held.
The BDC is not merely a sports facility—it is a basketball village. It is a campus where countless scenarios and age-appropriate alternatives weave sport into everyday life.
Its program balances sportive functions with commercial and cultural ones, strengthening the project's connection to the city.
The sports facilities are supported by a series of social and cultural elements: a basketball museum, a library, an event courtyard, and food & beverage areas. This hybrid structure diversifies users and increases the frequency of their engagement with the space.
Through a programmatic and spatial setup in which basketball extends from the court into the street and the plazas, the BDC provides a new ground for expanding awareness of and participation in sports among people of all ages and backgrounds.












































