
Clouhaus Hotel
ARCHITECTS
RooMoo Design Studio
LEAD ARCHITECT
Ray Zhang, Marine Bois, Tao Zhang
CUSTOMIZED FURNITURE
Yizhu Decoration Engineering Co., Ltd.
DESIGN TEAM MEMBERS
Jeff Chen
BUILDING CONSTRUCTION
Guixiang Construction Engineering Co., Ltd.
ENGINEERING CONSULTING
Mingyang Engineering Design Group Co., Ltd.
WOOD PRODUCTS SPECIALIST
Chongqing Nanchuan District Dingteng Wood Processing Factory
CLIENTS
Chongqing Xunya Cultural Tourism Development Co., Ltd.
LIGHTING CONSULTANT
Woy Lighting Co., Ltd.
LANDSCAPE
Roomoo Design Studio
PHOTOGRAPHS
Wen Studio
AREA
1915 m²
YEAR
2025
LOCATION
Chongqing, China
CATEGORY
Hotels
English description provided by the architects.
Cloudhaus Hotel is located 1,200 meters above sea level on the northern slope of Jinfo Mountain in Nanchuan District, Chongqing, China.
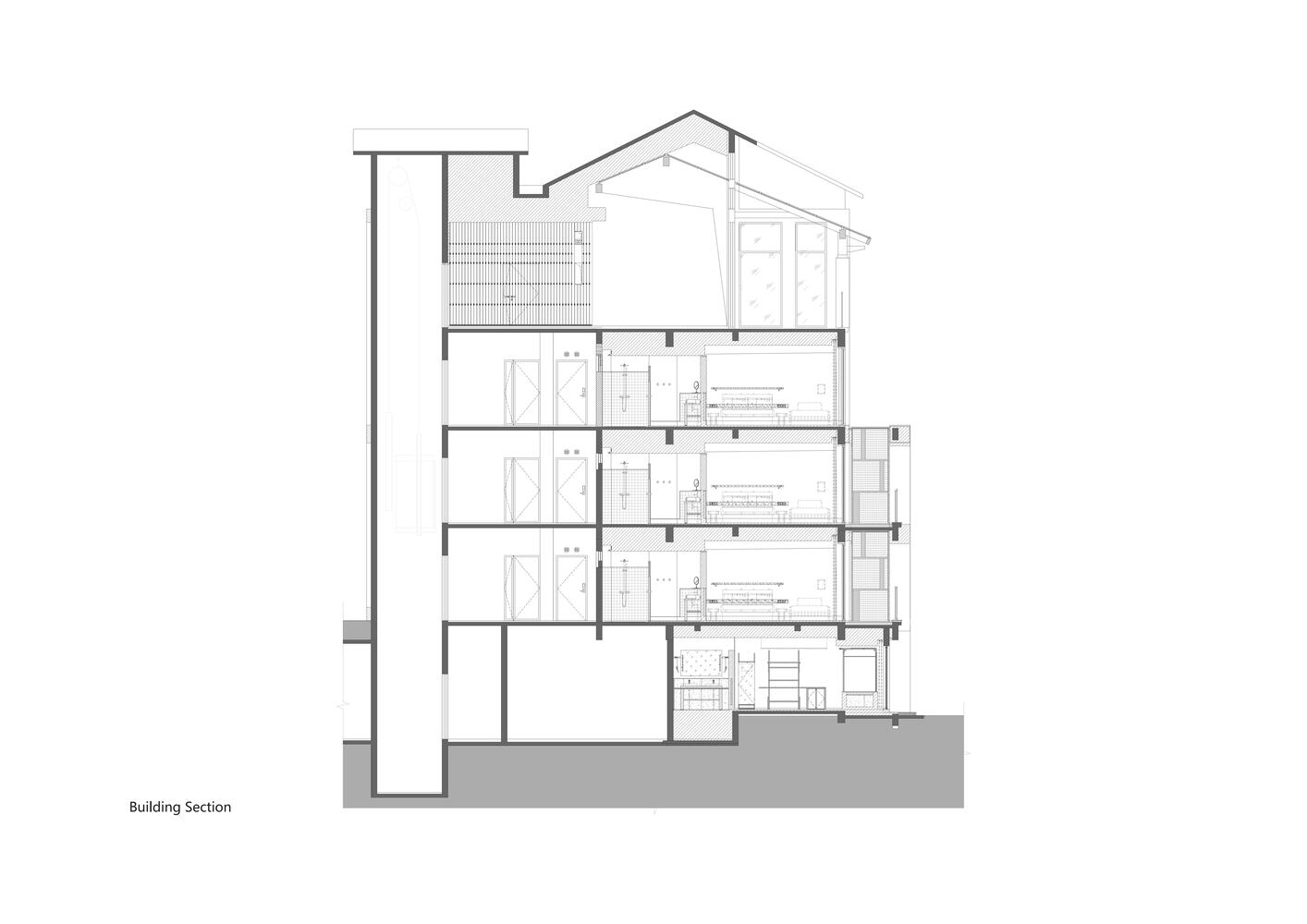
Originally built as a sales office for a resort development, the five-level concrete structure has been sustainably transformed into a 24-room boutique hotel that reflects the mountain's natural character and local craftsmanship.
Surrounded by dense forests and steep terrain, the site offers open mountain views but limited accessibility.
The design team began with in-depth field research, exploring local villages, materials, and crafts to understand the mountain's cultural and ecological context.
This investigation informed a design that transforms natural textures and human traces into a coherent spatial narrative—connecting architecture, landscape, and community.
Retaining the existing structural frame, the renovation reinterprets the local "frame-and-infill" logic to reorganize the façade and internal flow.
Eight vertical white structural columns accentuate the rhythm of the slope, while locally sourced bamboo panels and dragon-scale stones establish a horizontal dialogue with the terrain.
The top balcony extends the building's timber framework outward to form a semi-open bamboo canopy that blurs boundaries between interior and exterior.
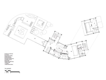
The entrance square, adjacent to a winding mountain road, reuses original site bricks, local gravel, and stones to form a central landscape feature.
Recycled timber with rough textures was carbonized and combined with concrete core waste from renovation to create partitions and visual barriers.
Drawing from traditional bamboo railing techniques, the bridge and courtyard fences are constructed with bamboo strips and green woven bands, adding rhythm and transparency to the arrival experience.
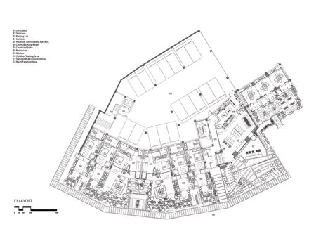
Entering from the top level, visitors arrive at the reception floor where functions unfold along the building's linear plan—lobby, lounge bar, multifunctional stage, and mezzanine offices—all facing panoramic mountain views.
Interior finishes use locally collected bamboo shoot shells, reclaimed timber, carbonized wood, woven bamboo artworks, and black stones to create a tactile, immersive environment crafted in collaboration with local artisans.
Located in the expanded ground-floor podium, the restaurant transitions gradually from interior dining to outdoor terraces overlooking the forest.
Its construction maximizes the reuse of on-site and leftover materials—demolished red bricks, bamboo treads, semi-finished woven pieces, and reclaimed stones—integrating them into walls, ceilings, and terrazzo flooring.
This approach achieves a balance between cost, quality, and sustainability while maintaining a strong local identity.
Twenty-five rooms are arranged in a fan-shaped plan oriented toward the mountain, including courtyard suites, high-floor rooms, and standard units.
Earth-toned palettes connect natural materials, structural frames, and crafted details, extending the hotel's design language into private spaces that feel calm, grounded, and connected to nature.














































