Nakano Seiyaku Kusatsu Factory
ARCHITECTS
Taisei Design Planners Architects & Engineers
STRUCTURAL ENGINEER
Eichi Yamazaki, Takashi Itaya
INDUSTRIAL FACILITIES ENGINEERING
Hirokazu Okawa, Akihiko Nishihara
MANUFACTURERS
Eternit, NISC PANEL, Sanko Metal
CLIENT
Nakano Seiyaku Manufacturing Co., Ltd.
DESIGN TEAM
Isao Miyazaki, Hiroshi Katsumata、yuka Katsura、 Nguyen Quang Tuan, Guo Haoyang
MEP ENGINEER
Kenji Okutsu, Wataru Mimura、mariko Yamada, Tsuyoshi Sueyoshi、tsuneaki Tabata, Yusaku Indou
PHOTOGRAPHS
Norihito Yamauchi
AREA
8525 m²
YEAR
2024
LOCATION
Kusatsu, Japan
CATEGORY
Industrial Architecture, Sustainability
This project involves the construction of a new factory for hair cosmetics and quasi-pharmaceutical products in the city of Kusatsu, Shiga Prefecture.
The design is centered around the themes of "beauty," a value NAKANO has pursued since its founding, and "water," the source of life that sustains beauty.
To meet the client's request for "creating an environmentally friendly factory that does not feel like a conventional factory," we aimed to embody its philosophy of "Shaping Beauty Together" by creating a facility that blends harmoniously with the water-rich landscape and resonates with the local community.
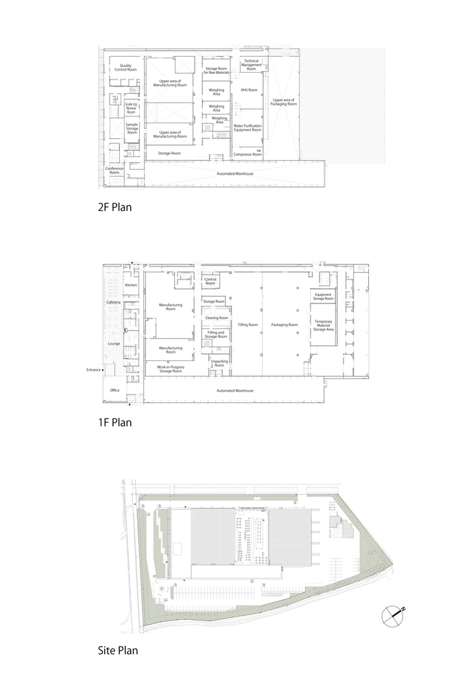
The design concept is to create a highly efficient production space by consolidating and integrating functions that were previously dispersed across multiple factories, while introducing automation systems to reduce employee workload.
A simple and streamlined planning was achieved by clearly separating the flow of people and goods, enabling the entire production process—from manufacturing and filling to packaging and shipping—to be completed on a single floor.
ISO 22716 (Good Manufacturing Practices for Cosmetics) certification has been achieved by conducting mixing and filling operations in clean rooms, ensuring high standards of product quality and safety.
The production process is further optimized through the introduction of a Manufacturing Execution System (MES), which uses information technology to manage the know-how required for high-mix, variable-volume production.
YOSHIZU SKIN, which serves as an icon of this environmentally friendly facility designed to coexist harmoniously with nature, is an environmental feature that symbolizes beauty.
It is inspired by the motif of reeds, a natural material that has been widely used in the Lake Biwa region of Shiga Prefecture since ancient times.
The YOSHIZU (reed screen) is permeable to air, allowing gentle breezes to flow through while protecting against harsh sunlight.
Positioned at an angle as if leaning against the wall, the flexible screen with a porous surface, inspired by the gentle waves and shimmering reflections of Lake Biwa, creates a sun-dappled intermediate space between indoor and outdoor areas, helping to mitigate the thermal load due to sunlight.
An ecosystem designed specifically for this project reduces water consumption by using treated wastewater for dehydrator washing.
The wastewater treatment technology is effectively utilized to support high-mix, variable-volume production, thereby preventing water contamination, reducing wastewater volume, and improving the energy efficiency of the treatment process.
These initiatives include the introduction of energy-efficient equipment to reduce environmental impact, the use of locally sourced raw materials such as Shigaraki tiles, and the conservation of existing trees.
Through these efforts, the project achieved CASBEE Rank S certification for the first time in the hair cosmetics industry.
The aim was to create a people-friendly environment that employees can take pride in by integrating the Reception Lounge, which features a display area to greet visitors, with a refreshment dining area (cafeteria) that provides a space for employees to rest and relax.
The varied seating arrangements include sun-dappled counter seats overlooking the rural landscape and benches that users can move to suit their moods.
By introducing the concept of Open Communication Working (OCW), which is designed to enhance production efficiency through interpersonal interaction, an open office conducive to intergenerational communication has been created.
The smiles of those who work here are regarded as an essential element of the beauty of this space.






































