ARCHITECTS
Studio Arthur Casas
AUTHOR
Arthur Casas
ARCHITECT IN CHARGE
Gabriel Ranieri
INTERIOR MANAGER
Mariana Santoro
ARCHITECTURE MANAGER
Cadu Vilela
DECORATION MANAGER
Fabiola Andrade
BUILDER
Cáucaso
DECORATION COORDINATOR
Paulina Tabet
LANDSCAPE DESIGN
Arterra
FRAMES
Crescêncio
ACOUSTICS
Harmoni
3D
Elephant Skin
SEALS
Paula Vianna
VISUAL COMMUNICATION
F Teo Design
LIGHTING TECHNOLOGY
Ilumination
WATERPROOFING
Proasp
CONCRETE CONSULTANT
Gabriel Regino
STRUCTURE
Roberto Leme
FOUNDATIONS
Mg&a
COLLABORATORS
Adriano Bergemann; Marcelo Beretta; Luciano Sessa; Rodrigo Carvalho; Beto Cabariti; Reginaldo; Machado; Yuri Chamon; Beatriz Costa; Renan Prandini; Vinicius Bazan; Alessandra Mattar; Giuliana Maia; Luisa Mader; Raul Valadão; Marcelo Melo; Marcela Du Plessis; Rafael Palombo; Camilla Dall'oca; Paulina Tabet; Marcella França; Virginia Fornari; Leonardo Navarro; Amanda Tamburus; Conrado Almeida; Natalia Lorenzoni
MANUFACTURERS
+55design, Boobam, By Kamy, Elight, Etel, Herança Cultural, Jorge Zalszupin, L'oeil, LD Arti, Lattoog, Lumini, Luxalum, Luxalum, Luxsim, Marcenaria Inovart, Micasa, Pair Store, Srta Galante, Studio Objeto, Vallvé, +1
PHOTOGRAPHS
Fran Parente
AREA
21082 m²
YEAR
2025
LOCATION
São Paulo, Brazil
CATEGORY
Residential Architecture, Apartments
The Ibaté Building, designed by Studio Arthur Casas for the developer Cáucaso, is situated on a corner lot in the Vila Nova Conceição neighborhood of São Paulo – a transitional zone between the city's denser axis and a calm residential urban fabric.
This urban condition was fundamental for the implantation decisions and for the relationship of the building with its surroundings, allowing the project to engage with both the vertical scale of the metropolis and the gentler flows of the neighborhood.
The design approach, therefore, prioritizes spatial quality and integration with the urban environment, focusing on constructive clarity, conscious use of materiality, and the enhancement of common spaces.
The building's structure is fully revealed. The facades are constructed with the structural concrete itself, eliminating the need for cladding.
With a ribbed appearance and warm pigmentation, the material establishes a solid and continuous visual identity, serving as a base for vertical landscaping, which is organically incorporated into the architecture and acts as a thermal and visual moderator.
The tower is positioned on a longitudinally proportioned lot, and its units are organized into floor plans of approximately 450 m².
Each floor features a single residential unit, distributed to clearly separate the social, intimate, and service cores.
Circulation is facilitated by two elevator cores, and all units were designed with cross ventilation, ample openings to the outside, and careful solar orientation.
The front facade is entirely open to a continuous terrace, with perimeter walkways in each unit, composed of alternating planter boxes that vary in position on each floor.
This modulation avoids repetition between floors, introducing volumetric variation and natural shading.
Aluminum guardrails with brass finishes and large glass frames make up the remaining elements of the envelope.
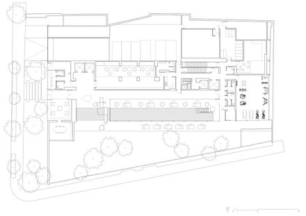
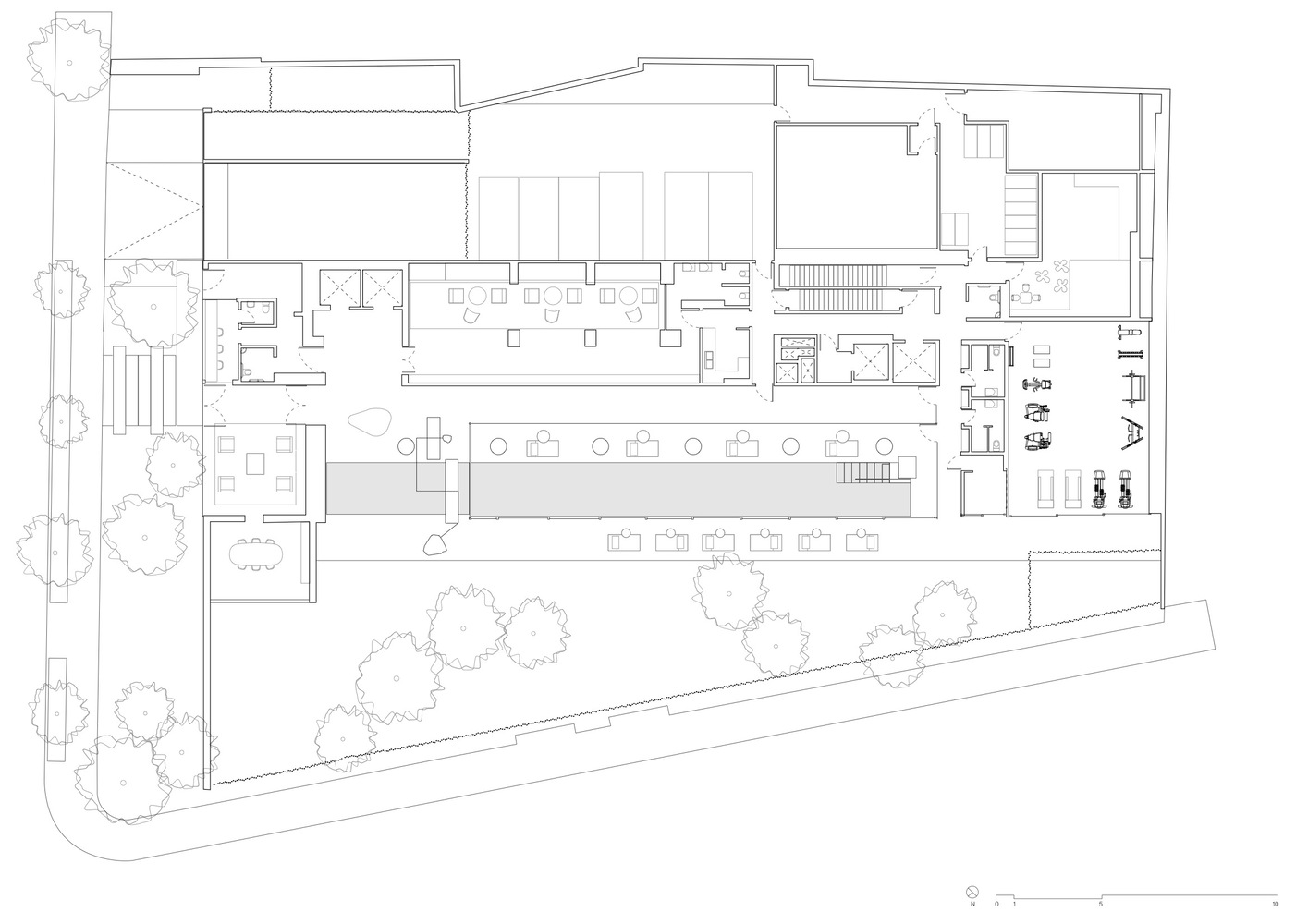
At the ground level, the transition between the city and the building is mediated by a generous, barrier-free area that features landscaping and furniture.
Instead of a traditional closure, the project proposes a glassed-in "clausura," functioning as an open anteroom to the city, reinforcing the transparency and collective nature of the common spaces.
The pool, elevator hall, and a contemporary sculpture in corten steel by Túlio Pinto share the same environment, suggesting a functional and symbolic overlap between art, leisure, and circulation.
Inside, material continuity is preserved with the extensive use of concrete, wood, glass, and warm-finished metals. Elements such as wooden panels camouflage technical doors and organize the flows.
The furniture curation includes pieces by renowned names in modern and contemporary Brazilian design, such as Jorge Zalszupin, Carlos Milan, Marcelo Magalhães, Guilherme Wentz, Lattoog, and Arthur Casas himself, with highlights including the Soft armchair (+55design) and the Square table (Herança Cultural).
Among the sustainable solutions incorporated are the installation of solar panels for pool heating, water reuse, and infrastructure for electric vehicle charging.
Cross ventilation and the integration of landscaping with the thermal and visual system reinforce the approach aimed at environmental efficiency.
In this project, attention to design permeates all scales, aiming to bring the building closer to an element of permanence and integration with the city.
The Ibaté synthesizes a design strategy in which structure, material, and function are articulated with coherence.
Its contribution to the urban landscape lies in the combination of constructive rationality, spatial generosity, and a careful reading of the context, with an emphasis on the use of concrete as an integral architectural element and support for a symbiotic relationship between architecture and landscape.































