
Grande Armée L1ve Office Building
ARCHITECTS
Baumschlager Eberle Architekten
DESIGN TEAM
Baumschlager Eberle Architekten
ENGINEERING & CONSULTING > ACOUSTIC
Cabinet Lamoureux
LANDSCAPE ARCHITECTURE
Usus Landscape
ENGINEERING & CONSULTING > STRUCTURAL
Khephren Ingénierie
MANUFACTURERS
Pilkington, Bernard Bois, Isover, Schuco
GENERAL CONSTRUCTING
Eiffage
ENGINEERING & CONSULTING > MEP
Tess
PHOTOGRAPHS
Cyrille Weiner
AREA
35000 m²
YEAR
2022
LOCATION
Paris, France
CATEGORY
Office Buildings, Refurbishment, Adaptive Reuse
"This restructuring project makes it possible to intensify a strong architectural gesture" - this briefly describes the basic idea of our Paris office for the renovation of the former, modernist Peugeot headquarters (architects Sainsaulieu) near the Arc de Triomphe.
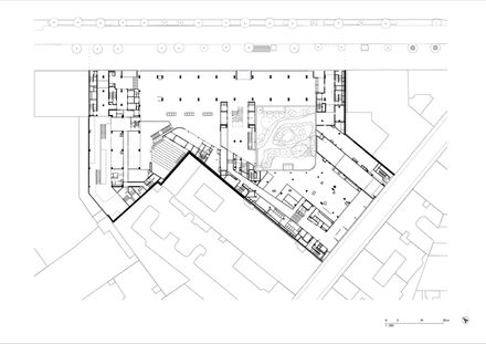
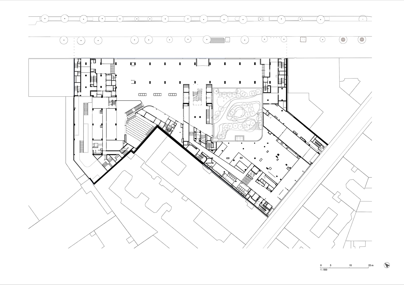
The project offers the central Parisian urban space an exciting 110-metre long façade.
In this area, the existing concrete structure forms the backdrop for an innovative window system.
Its rules are as simple as they are intelligent: simple openings alternate with box-type windows set at different depths in the concrete structure.
rhythm, plasticity and self-chosen order come together to form a façade that gives the address and the "Grande Armée - l1ve" project a strong physiognomy.
The office building with its agora and a conference centre extends over two courtyards from Avenue de la Grande Armée to Rue Pergolèse with a perimeter block development that has been broken up with generous green areas.
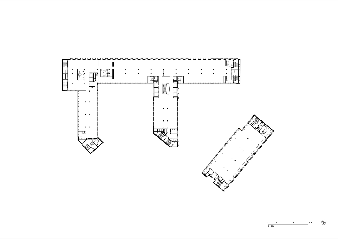
The existing primary structure was utilised and the office space was designed to be use-neutral.
Recycling for the future: The building project showed the possibilities and problems of recycling and what can be learnt from it.
5,165 tonnes of demolished building fabric - 92 % of the old materials - were recycled.
80 tonnes of the material was reused elsewhere in the building, e.g. for the floor in the gallery.
Composite materials were deliberately avoided for the remodelling measures and simple materials were used that can be reused at a later date without a costly conversion process.
Wood, various types of concrete and metal therefore now characterise the feel and appearance of the project.
Energy sources for this include geothermal wells, photovoltaic panels on the roof and if required, local heating from the city of Paris, which obtains 50 per cent of its energy from local renewable sources.
The project, with its 35,000 square metres of gross floor area, transforms the working world into a living world: open office structures, the former showrooms on the ground floor and spacious open areas combine to create a cosmos that is only partially dedicated to traditional desk work.
"Restructuring can therefore create a new place with a differentiated, attractive use that meets the requirements of today and tomorrow," explains Anne Speicher, Manager of the Paris office of Baumschlager Eberle Architekten.
The prerequisites for these interventions were laid out by the modernist architects Sainsaulieu, and Baumschlager Eberle Architekten developed them further.
In 2024, the project was honoured with the Austrian Green Planet Building Award by the Republic of Austria.
























