ARCHITECTS
Core Cluster
LEAD ARCHITECT
Methaporn Chittrayanont
ENGINEERING & CONSULTING > MEP
Turnkey All
PHOTOGRAPHS
Sofography | Chalermwat Wongchompoo
AREA
500 m²
YEAR
2025
LOCATION
Pak Nam, Thailand
CATEGORY
Houses
The exterior and interior of the house are designed to juxtapose two distinct characteristics: simplicity and plainness, on the one hand, and complexity and vibrancy, on the other.
The former invites future adaptability and decorations, while the latter fosters a sense of dynamic interaction. The interior spatial diversity accommodates an extended family, ensuring an interactive living environment.
Over time, the house becomes a repository of collective memories, shaped by the evolving relationship between the owners and the dwelling.
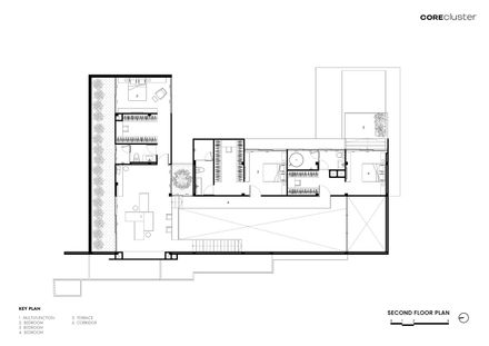
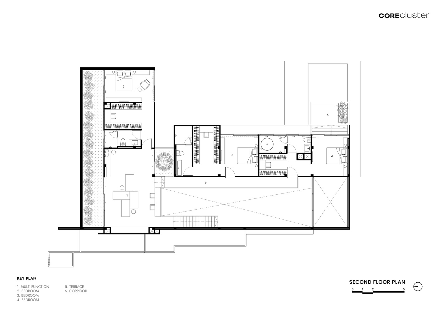
The interior design of the house is structured around a central question: "How can the family members maintain continuous communication throughout the day?"
This premise drives the placement of a large common area at the center of the house. The living and dining spaces are defined by a split-level floor, establishing distinct boundaries without the need for physical partitions.
The spaces are intentionally designed to be connected spatially. An alternative connection is provided by a double-height volume within the central space, offering a visual link to the corridor on the second floor. This interrelation emphasizes the concept of a "common" space, while also providing a spatial transition from an enclosed to a disclosed area, from private to public.
Given a limited budget, the concept of "minimum necessary" is applied to the expression of materials and decorative elements. Plain walls serve as an economical and functional choice, reducing the reliance on artificial lighting by providing natural illumination during the day.
The building's orientation, deep eaves, and strategic placement of windows on the façade contribute to the overall concept of comfortable living. Cohesive design of building decorations, orientation, and space is achieved through a complex challenge involving visualization, functionality, and economic considerations.
























