
The Culture Shift
ARCHITECTS
Superimpose Architecture
LEAD ARCHITECT
Ruben Bergambagt, Carolyn Leung, Ben de Lange
LANDSCAPE ARCHITECTURE
Landau Landscape Planning And Design Co.ltd.
GENERAL CONTRACTOR
Shenzhen Ruiwei Engineering Co.ltd.
LDI
Capol International & Associates Group
DESIGN TEAM
Ruben Bergambagt, Carolyn Leung, Ben De Lange, Ana Raluca Timisescu, Xiaoyu Xu, Dave Chan, Qu Haibo
FACADE CONSULTANT
Pag Façade Design Co.ltd.
PHOTOGRAPHS
CreatAR Images
AREA
19369 m²
YEAR
2025
LOCATION
Dongguan, China
CATEGORY
Mixed Use Architecture
English description provided by the architects.
The Culture Shift by Superimpose Architecture is a new civic landmark in Dongguan, China, a city at the heart of the Greater Bay Area known for its rapid urban transformation.
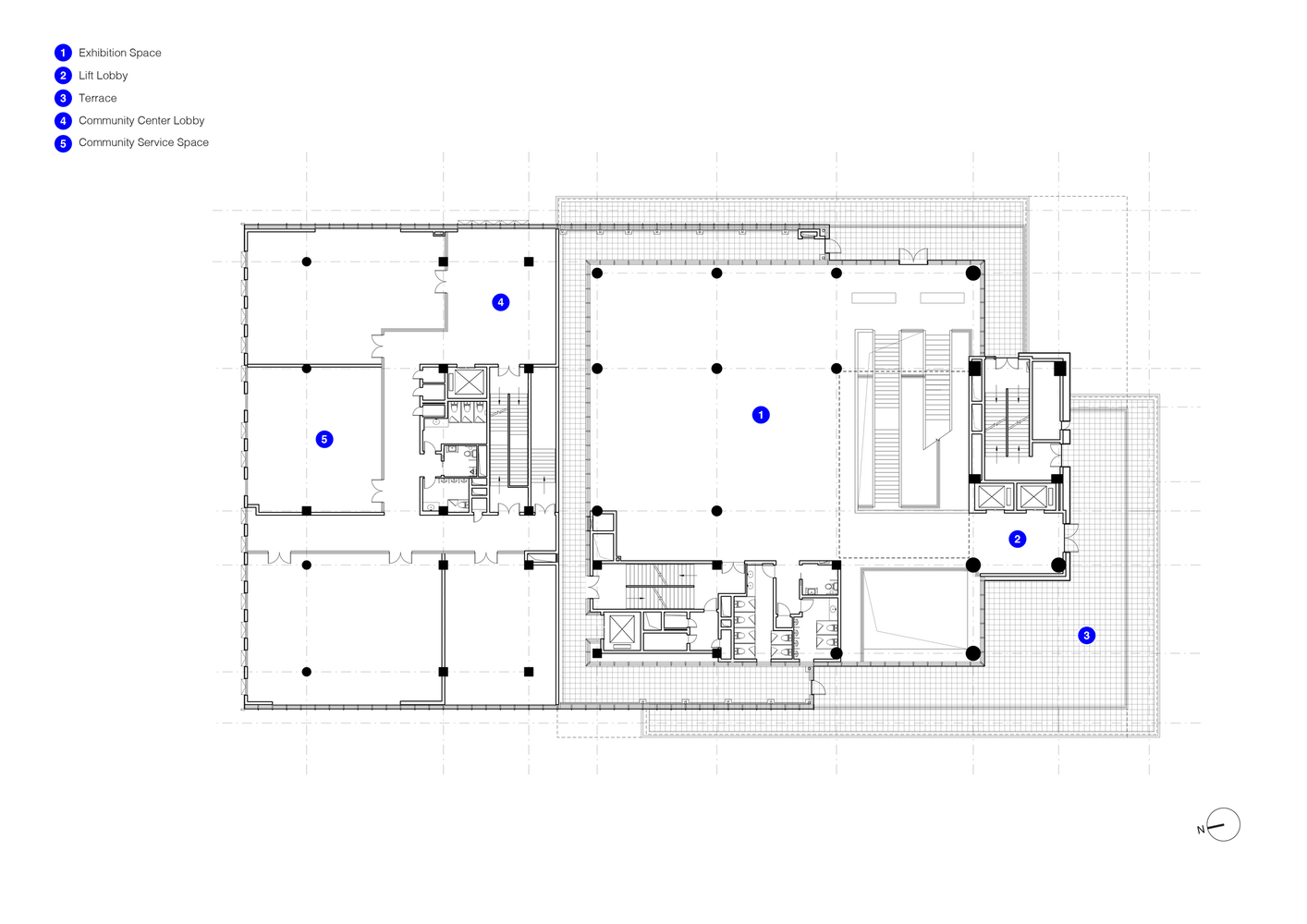
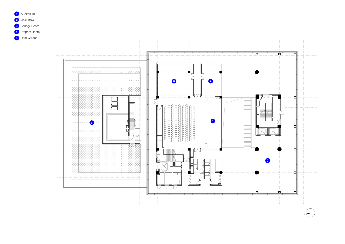
Conceived as a "terraced landscape for culture, work, and community," the project integrates a municipality house, cultural center, theater, community spaces, and offices into an interconnected ensemble.
Set amidst Dongguan's dense skyline of high-rise towers, The Culture Shift redefines what a civic center can be.
Instead of a monolithic complex, it unfolds as a sequence of ascending terraces that echo the surrounding mountains while creating a bold yet inviting gesture in the urban fabric.
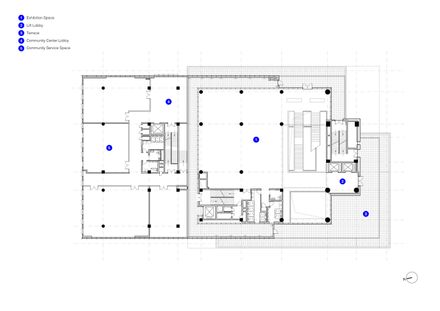
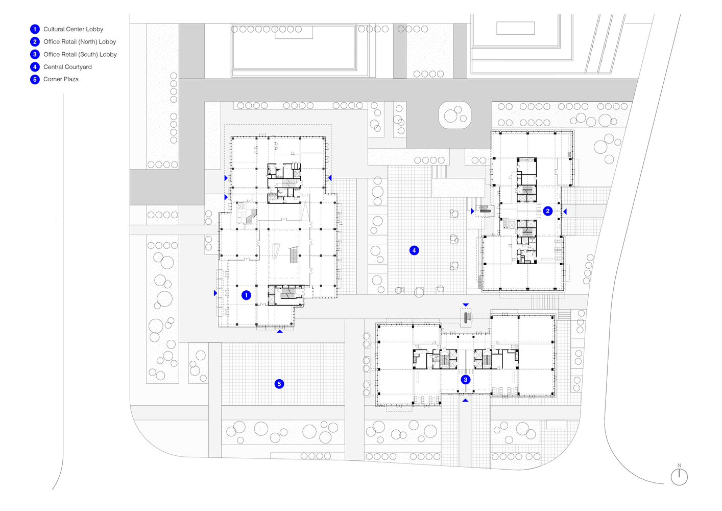
Three buildings frame a generous central courtyard; a calm, green "living room" that anchors the ensemble and offers an open, social heart for the community.
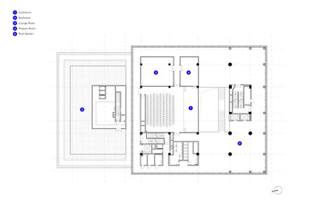
The western building forms the cultural centerpiece of the development. Here, public life is concentrated: the municipality house, community spaces, retail, and theater are stacked and shifted to create a dynamic architectural composition.
Each horizontal shift reflects a different program and forms terraces for outdoor gathering. Inside, a tall atrium with cascading staircases connects all levels, filled with daylight and movement.
The façade design translates this diversity into a coherent whole: vertical frames, articulated horizontal slabs, and translucent glass respond to the interior programs, balancing openness and privacy.
The transparent ground floor invites the public in; the floating middle volume, wrapped in frosted glass, accommodates community spaces;
and the upper volume, defined by fritted glass panels, houses the theater and public lobby. Warm wooden finishes on terraces and soffit bring a tactile, human quality to the structure.
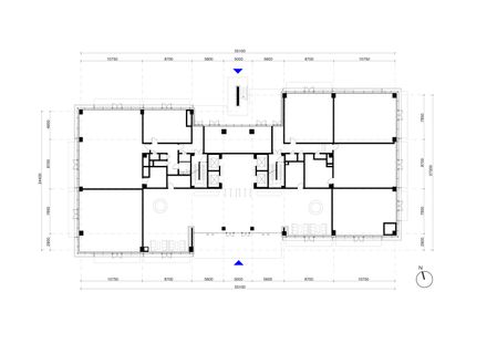
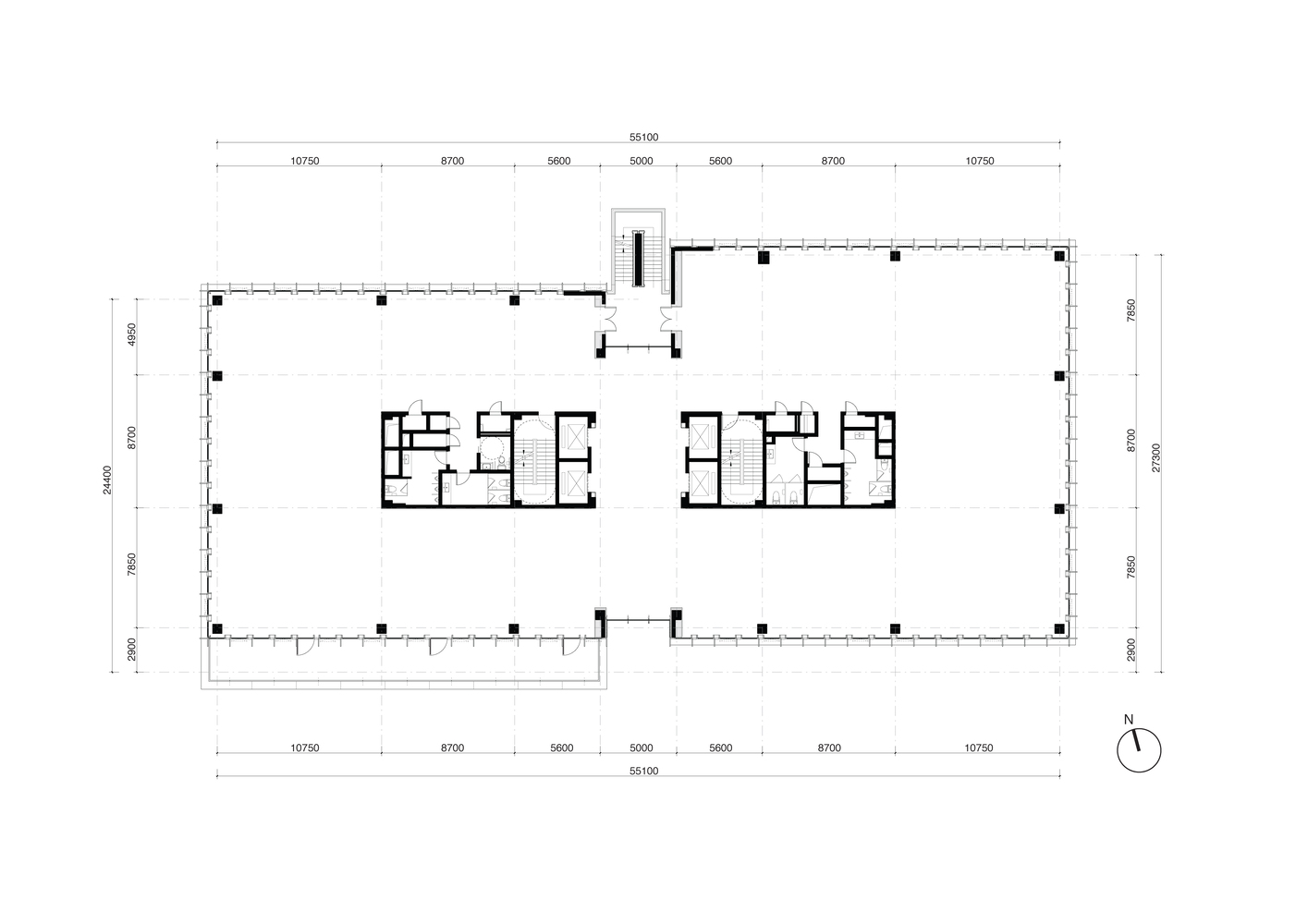
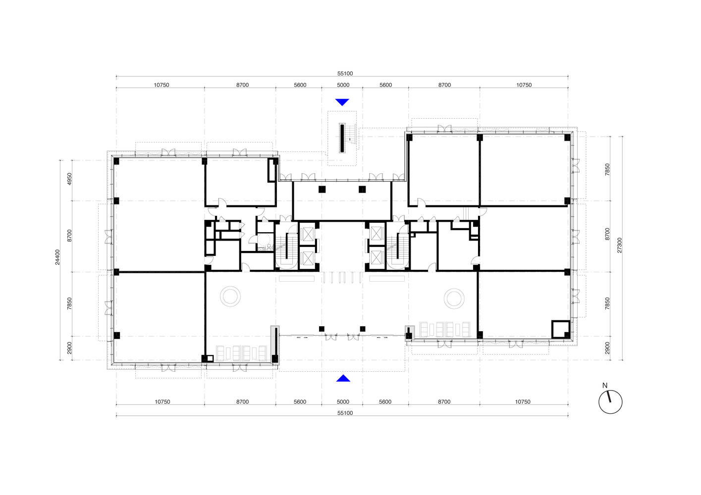
To the south and east, two office buildings extend the architectural language of shifting volumes and terraces.
From the earliest design stages, Superimpose Architecture worked closely with the client to align architectural expression with a flexible and future-proof leasing strategy.
The result is a pair of adaptable buildings, each vertically divided to accommodate two independent tenants with dedicated entrances and lobbies.
This approach not only maximizes the project's commercial potential but also reflects a clear understanding of the client's needs and the evolving demands of the workplace.
Abundant natural light enters deep into the interior through vertical voids and transparent circulation zones, creating bright, healthy, and welcoming environments.
The white aluminum façades with slender vertical fins filter sunlight and ensure thermal comfort in the subtropical climate.
Together, these buildings show how thoughtful architectural design can respond to client ambitions while creating adaptable, efficient, and people-centered workplaces for a new generation of professionals.
Beyond its physical form, The Culture Shift embodies a changing mindset about how civic architecture should serve cities today. In a post-COVID era, public buildings must be flexible, multifunctional, and socially inclusive.
Instead of creating isolated, single-use structures, The Culture Shift overlaps cultural, civic, and commercial programs to ensure continuous activation throughout the day.
This layered approach reduces underused space, limits the environmental footprint of new construction, and strengthens social and ecological sustainability.
By uniting diverse urban functions under one terraced landscape, The Culture Shift offers more than a building; it presents a new model for the contemporary civic center: open, adaptable, and deeply connected to its community.


































