Zayed National Museum
ARCHITECTS
Foster + Partners
ENABLING WORKS
Swissboring
CIVIL ENGINEERS
Philip Habib + Associates
STRUCTURAL ENGINEERS
Akt Ii
STRUCTURAL ENGINEERS
Wsp Norge, Wsp
MAIN CONTRACTOR
Arabtec, Six Construct-trojan Jv
PILING CONTRACTOR
Nscc
MEP ENGINEER
Bdsp, Wsp Norge, Wsp
LANDSCAPE CONSULTANT
Atelier Dreiseitl
LANDSCAPE CONSULTANTS
Watg
PEOPLE MOVEMENT
Intelligent Space
COST CONSULTANT
Rlb
LIGHTING CONSULTANT
Lerch Bates
ENVIRONMENTAL ENGINEER
Transsolar
AUDITORIUM
Shen Milsom & Wilke
SPECIFICATION
Schumann Smith, Foster + Partners
CLIENT
Department Of Culture And Tourism
FOSTER + PARTNERS TEAM
Norman Foster, Gerard Evenden, David Nelson, Ross Palmer, Marilu Sicoli, Toby Blunt, Adam Newburn, Irene Gallou, Martin Castle, Martha Tsigkari, Andrew King, Wolfgang Muller, Dara Towhidi, Enrico Anelli-monti, Nicholas Arthurell, Cristine Castilhos Balarine, Jefferson Barnes, Giovanni Betti, Barrie Cheng, Ho Ling Cheung, Harvey Cullis, Miriam Dall'igna, Marta Diego, Alejandra Florez-estrada Diaz, Hamza Farooq, Oscar Gil, Alexandra Kogia, Joliette Lange, Won Suk Lee, Richard Maddock, Elizabeth Miller, Alessandro Milazzo, Josef Musil, Hossein Naser Vafai, Irina Nazarova, Eleonora Neri, Mouzo Ntagkala, Chan Ik Park, Jose Pedro Santiago Da Silva, Ezmira Peraj, Javier Perez Torrejon, Laura Podda, Luca Poian, Sladjana Putnik, Merino Ranallo, Alfie Recarte Olaran, Emanuele Renzi, Florian Rieger, Ramit Saksena, Laura Suico, Chris Storie, Takashi Tsurumaki, Karsten Vollmer, Dominic Williams, Simon Wing, Xiaoming Yang, Munehiko Yokomatsu, Bo Yoon
MANUFACTURERS
Goppion
PHOTOGRAPHS
Nigel Young
AREA
88870 m²
YEAR
2025
LOCATION
Abu Dhabi, United Arab Emirates
CATEGORY
Museum, Sustainability
English description provided by the architects.
The Zayed National Museum has opened its doors to the public.
Located at the heart of the Saadiyat Cultural District in Abu Dhabi, the new national museum of the United Arab Emirates (UAE) traces the history of the Emirates, from the earliest evidence of human habitation to the civilisations that shaped its culture and identity, rooted in the values of the UAE's Founding Father, the late Sheikh Zayed bin Sultan Al Nahyan.
The building's form addresses the challenge of sustaining life in a desert environment and the strong cultural traditions of the UAE.
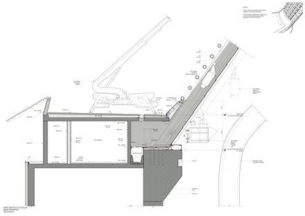
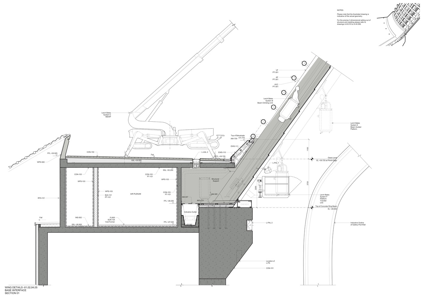
The museum's five lightweight steel wings are part of the system of natural ventilation.
Air vents open at the top of the towers, taking advantage of the negative pressure on the lee-side of the profile to draw hot air out from the atrium, assisted by the thermal effect of the heat build-up on the tips of the wings.
Air that has been naturally cooled through pipes buried deep below the desert floor then flows into the atrium through a low-level ventilation system. The wings are glazed to channel natural light into the galleries below, and each one is individually tunable.
The museum spaces are located within a mound, which has textured, faceted panels that are an abstraction of the UAE's topography.
The mound insulates the interior spaces from solar gain, forming a protective shield that prevents heat from entering the building.
When visitors step inside the museum, they enter the light-filled atrium, or Al Liwan, which serves as both a meeting and orientation space, hosting performances such as traditional dance and poetry.
Of the six permanent galleries, four pod-shaped galleries are suspended above Al Liwan and provide controlled environments to protect the sensitive artefacts on display.
The towers' triple-laminated glazing moderates the amount of daylight entering the lobby and the gallery spaces.
The glazing includes a dense mesh interlayer, and each pod has a rooflight made of electrochromic glass that changes its transparency in response to outside light levels.
"Zayed National Museum tells the story of Sheikh Zayed's creation of the Emirates and the many facets of his legacy, including his vision of greening the desert.
The building itself is an expression of sustainability, with five aerodynamic wings that are an integral part of the environmental system, acting as thermal chimneys and drawing cool air through the public spaces.
They are also symbolic of Sheikh Zayed's love of the traditional sport of falconry and have become markers on the city skyline." Norman Foster | Founder and Executive Chairman, Foster + Partners
Each of the pod-shaped galleries is curated to reflect a specific theme, while the connecting nodal spaces provide contextual information that ties them together.
Visitors can choose their own route through the different galleries and make their way to the upper level via a sculptural spiral staircase or lifts.
At ground level, there are also two more permanent gallery spaces that are near the museum's entrances, as well as a temporary exhibition space, a fine dining restaurant, and a cafe.
Outside the museum building, Sheikh Zayed's love of nature is represented by the Al Masar Garden, which links the building to the coast.
Integrating landscape and heritage, the garden is intended as a new community asset, with spaces for socialising, play, and reflection.
Visitors are also invited to take a shaded route from ground level to a viewing platform at the top of the mound, at the base of the steel towers, which offers panoramic views of the surrounding area.
Materials have been carefully selected to resonate with the local surroundings and mirror historic buildings across the seven Emirates, which reflect the changing colour of the sand in different locations.
Building on this tradition, both the museum's exterior and its interior spaces mirror the distinctive warm-white shade of sand that is found on Saadiyat Island.
The project has been delivered in close collaboration with the Department of Culture and Tourism in Abu Dhabi.
"Zayed National Museum gives our nation's story a permanent home. Our national museum serves to preserve and share our past while connecting generations.
It is where our children and grandchildren will discover the values that built this country: unity, humility, openness, and respect for heritage.
These are lived principles that continue to guide us, and when visitors from around the world walk through these galleries, they will gain a deeper understanding of the United Arab Emirates – past, present, and future."
- His Excellency Mohamed Khalifa Al Mubarak|Chairman of the Department of Culture and Tourism Abu Dhabi
"This project has allowed us to realize – on a grand scale – many of the issues relating to architecture and sustainable design that have been central to the practice's work for decades.
It has been a pleasure to collaborate with such visionary stakeholders, whose extensive knowledge of the region grounded our work." Gerard Evenden | Head of Studio, Foster + Partners

























































