Forest Edge House
ARCHITECTS
Marc Thorpe Design
LEAD TEAM
Claire Pijoulat
DESIGN TEAM
Marc Thorpe Design
MANUFACTURERS
Ligne Roset
PHOTOGRAPHS
Clay Banks
AREA
1500 ft²
YEAR
2025
LOCATION
Roscoe, United States
CATEGORY
Residential Architecture, Houses
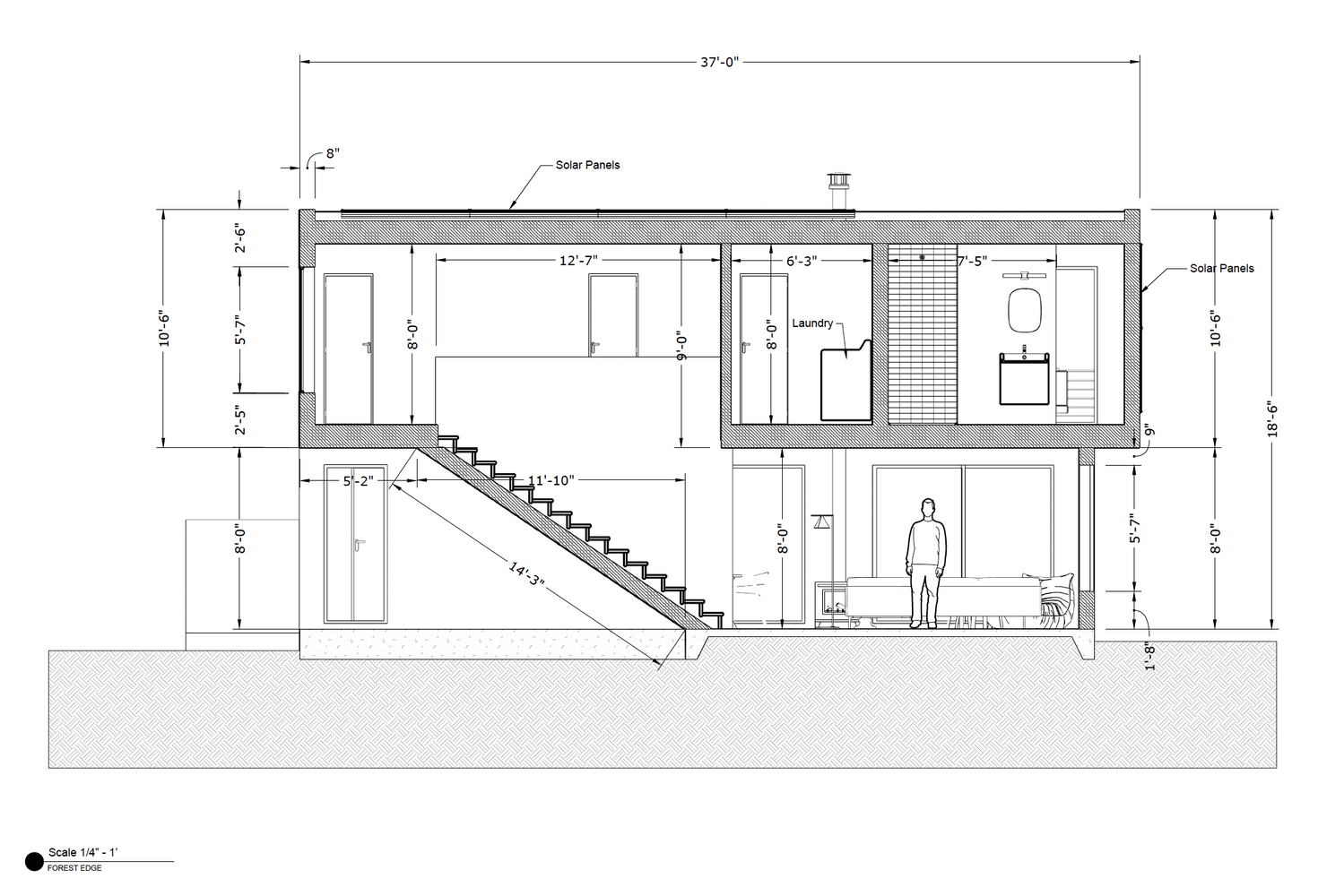
The Forest Edge house is the fifth solar-powered house built by Edifice Upstate in the West Catskills of New York State.
The house is designed by award-winning architect and designer Marc Thorpe. The house is a 1500 sqft two-story, 3 bedrooms, 2 full baths, powered completely by solar energy.
Nested on a 3-acre parcel of forest, the house is clad in FSC-certified natural pine, boasts full floor radiant heating, an open living, kitchen, and dining plan, and a 25' cantilevered steel deck reaching into the canopy of the surrounding tree line.
The house is powered by 24 Monocrystalline solar panels on a 15K Sol-Ark inverter and Lithium Ion LifePo battery bank generating 38kwh of daily electricity.
Situated on a soft slope within the forested mountains of the western Catskills, the Forest Edge reflects a belief in individuality and self-reliance.
Formally, the architecture is an exercise in descriptive function, taking inspiration from the surrounding rural agrarian vernacular of the Catskills. Forest Edge is not just a house; it is an opportunity to take back our autonomy.
The architecture is an internalized place defined by the harmony of our existence with nature. In this sense, architecture becomes timeless. The work transcends the physical realm to become part of us, holistic, balanced, and eternal.
This architecture is systemically connected to the environment through ecologically sustainable technology and infrastructure, self-sustaining and independent.
Forest Edge is an architecture of responsibility and respect for our environment and ourselves.
























