
Residential Buildings In Xueshan Village
ARCHITECTS
Dl Atelier
LEAD ARCHITECT
Liu Yang, Cai Zhuoqun
STRUCTURE
Gao Xuemei
HVAC
Guo Haifeng
LANDSCAPE & RAINWATER ENERGY CONSERVATION DESIGN
Beijing Yuren Runke Ecological Technology Co., Ltd.
MANUFACTURERS
Parklex Prodema
PHOTOGRAPHS
Yumeng Zhu
AREA
350 m²
YEAR
2022
LOCATION
Beijing, China
CATEGORY
Houses
English description provided by the architects.
The project is situated in Xueshan Village, Changping District, Beijing, at the junction between urban and rural areas.
It only takes about 30 minutes to drive to the city's Second Ring Road from here. This location is considered conveniently accessible in Beijing, a megacity. The homeowner is a fellow alumni of mine. His building plot in the suburban area of Beijing had been left unused for many years.
In 2022, he conceived the idea of utilizing it, though the specific manner of how to do so remained uncertain. I remember during our first discussion, he mentioned three possibilities:
-1 using it as a second residence for himself, with the possibility of his parents occasionally staying there; -2 converting it into his company's office space after three years;
or -3 renting it out if no concrete plans were finalized. Therefore, our design process began by systematically analyzing the corresponding relationships between these three different functional requirements and the spatial layout.
As the design progressed, we found it increasingly reminiscent of a piece of Chinese furniture from the 1980s: the handcrafted combination cabinet.
This building is a joint experiment between us and the homeowner. It explores the compatibility of urban and rural life, as well as the integration of work and living.
EXPERIMENT 1: INTEGRATING MULTIPLE FUNCTIONS IN ONE BUILDING
The building's first experiment is architectural:
how to integrate three seemingly unrelated functions into the same architectural space, allowing the owner to seamlessly transition between residential, office, exhibition, and commercial uses.
-1 RESIDENTIAL
The project is situated at the northeastern corner of the village, sharing the same plot with several other residential buildings.
The plot adjoins the urban road on the eastern side of the village. With a rectangular boundary, the site faces internal village roads to the north and west, while its eastern and southern sides are immediately adjacent to the neighboring courtyard walls.
The homeowner's spatial requirements are similar to a traditional three-bedroom, two-living-room layout, with some difference:
he hopes that every room will have direct access to the courtyard, making it convenient for gardening while maintaining privacy from the neighboring yards.
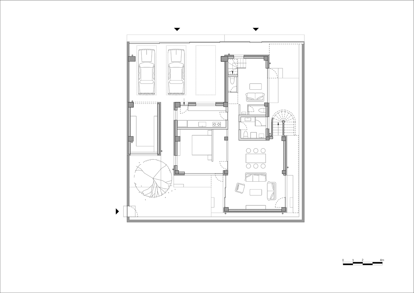
First, we reversed the conventional spatial relationship of rural housing, in which "the building surrounds the courtyard."
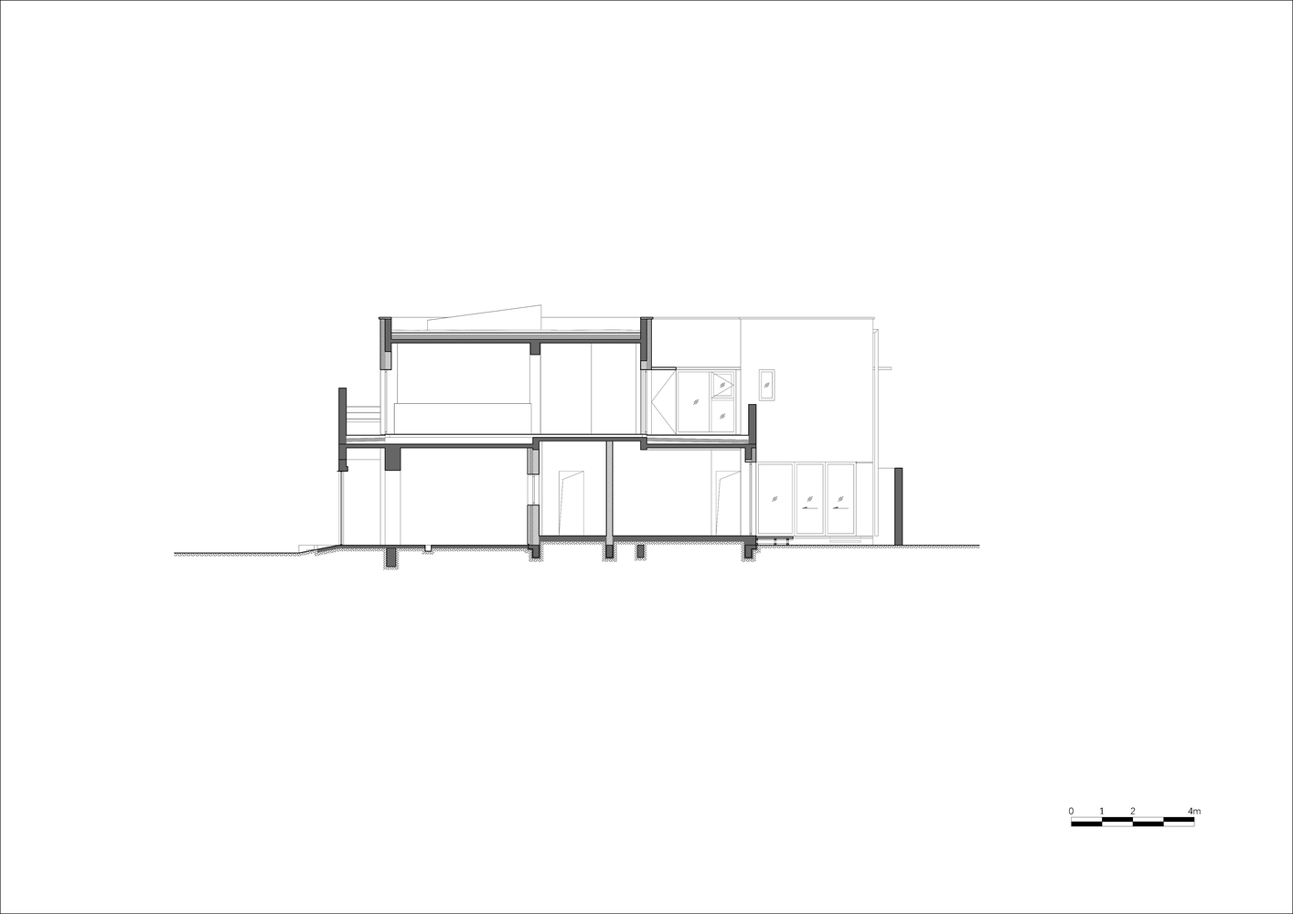
Instead, we concentrated the structure in the center of the site, allowing courtyards of varying scales to surround the building on all sides. This arrangement also enables more adaptable use of the interior spaces.
Meanwhile, to ensure residential privacy, we designed the building in a stepped form, providing terraces for the second-floor bedrooms, and raised the perimeter walls to 1.6 meters to avoid visual interference with neighbors.
The pedestrian entrance for residential functions is located on the west side of the site, adjacent to the village road and close to the main gate of the relative's home to the south, facilitating easy visits.
Outside of his professional life, homeowner has an interest in automotive mechanics which created a requirement for a garage with at least three parking spaces.
This requirement essentially predetermined that the side of the plot facing the main road had to be allocated for the garage function.
Consequently, the three-car garage, featuring a sliding door, opens towards the northern village road. The sliding door can be fully opened, not only providing access for outward-facing functions like the office but also opening up the enclosed rural streetscape with a welcoming gesture.
Simultaneously, the street-facing space is interconnected with the interior courtyard in two directions. Combined with the strategic opening and closing of courtyard walls, the spatial attributes of the courtyard can be modulated between enclosed and open.
Through courtyards, terraces, and rooftop platforms, the building is maximally integrated with the natural environment.
Every room has direct access to the outdoors, and the spatial perception differences caused by varying functional uses are dissolved in the pursuit of landscape permeability.
In addition, both the homeowner and his father enjoy manual craftsmanship, so a workshop was also required.
We integrated the workshop with the garage, doubling as a 3D printing space for woodworking and the design and production of rainwater energy-saving components.
This approach not only shortens operational workflows but also keeps the workshop separate from the main living quarters, ensuring that dust and noise generated during operations do not contaminate the living areas and are only exchanged with the outdoors.
Upon the completion of the house, this workshop was among the first rooms to be put into use.
Here, the homeowner produced custom drainage fittings, and his father handcrafted the solid wood nameplate, even designing a logo for the house.
-2 WORK-RELATED
The homeowner is engaged in the design and development of landscape water systems. His primary office was previously located in the central urban area within the Second Ring Road.
However, as his colleagues were spread across different regions working remotely, the office space was underutilized.
Therefore, considering the relatively convenient transportation conditions of Xueshan Village, he conceived the idea of using this project as his primary office for handling daily work tasks. Although this was initially just a concept, the design needed to fully incorporate this possibility.
The interior is primarily designed as a fluid, open space to facilitate the flexible definition of usage scenarios based on functional needs.
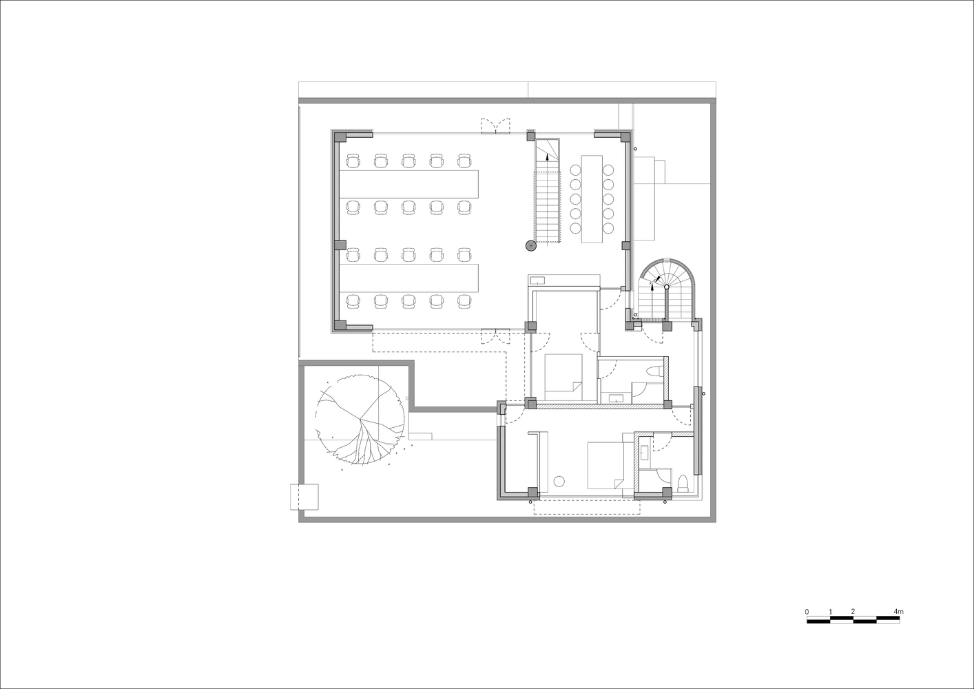
The public space on the first floor is combined with the courtyard, allowing spatial fluidity to extend seamlessly from outdoors to indoors. The flexible, open space currently serves as an exhibition space but can also be adapted into office space or a living room.
The southeast corner of the second floor retains residential functions, while the remaining open area functions as a workspace for over ten people. The north side, facing the street, is equipped with an independent office entrance, a courtyard foyer, a separate staircase, and a restroom.
This configuration ensures no interference with the residential functions while maintaining the option to either separate or connect the office and living areas through a door.
After over a year of design and construction, the homeowner has decided to retain only one office in the central urban area for client meetings and receptions, while relocating all other office functions to this building.
In addition to its office function, the building also incorporates exhibition capabilities to showcase research and design achievements. Accordingly, the original residential living room has been transformed into a display area.
Moreover, the house itself serves as an "exhibit," showcasing its rainwater harvesting and recycling technology. The gardens on the ground and roof also function as experimental grounds for the homeowner's landscape planting research.
-3 INCOME-GENERATING
Initially, the homeowner conducted a feasibility analysis based on investment returns and surrounding area demands, concluding that the project held long-term leasing potential for various uses such as street-level commerce, office space, and residential purposes.
This assessment proved accurate: when the building was first completed, the owner experimentally posted temporary rental listings, and the positive market response confirmed a genuine demand for these diverse options.
During the design process, as the homeowner grew more familiar with the environment, his perspective gradually shifted—from leasing the entire property to others toward self-operation.
As a result, the focus of the design evolved. We envision this building as a prototype for rural residences—one that adds public cultural and commercial spaces to the village and establishes a replicable template for self-developed construction at the urban-rural fringe.
By using this project as a catalyst, we aim to transform standalone construction into systematic, large-scale development, thereby generating lasting value for the countryside and securing long-term profitability.
Correspondingly, the design also intentionally reduced personalized formal expressions, favoring solutions that are economical and effective in terms of materials, construction, and building form, among other considerations.
According to future village planning, the municipal road on the east side of the village will be widened, which will make the building's east elevation directly face the street.
Therefore, the area of glazed openings on the east facade was increased to accommodate potential street-facing commercial activities.
Meanwhile, in its current use, the original ground-floor bedroom has been repurposed into a community library, open to both neighbors and the street.
EXPERIMENT 2
Controlling Energy-Saving Applicability — Based on the aforementioned operational vision, we aimed to create a building with a neutral architectural character, high contextual adaptability, ease of replication, and low demands for both cost and energy consumption.
According to the final professional energy consumption assessment, the building has largely achieved the expectations for passive energy conservation. The building features an understated appearance and a utilitarian form, employing construction methods that prioritize reliability and broad applicability.
We made a conscious effort to move away from the aesthetic conventions and personal narratives that frequently characterized our past work. We aimed to design this project through the lens of systemic critical consideration. This represented a new foray for us.
The building employs a passive energy-saving strategy. In addition to the fundamental considerations of the building's form factor and the insulation of its walls, floor, and roof, we also conducted an in-depth evaluation of other factors:
for instance, the micro-environmental shifts created by the opening and closing of doors and windows, the thermal insulation performance of the green roof, and the form, size, and orientation of external windows in various spaces.
Furthermore, the strategy incorporates courtyard walls of varying heights. This configuration promotes cross-ventilation during summer while providing protection from cold northwesterly winds in winter.
The design scheme incorporates the homeowner's professional expertise in rainwater energy conservation, therefore, the landscape design was completed collaboratively by us and the homeowner. Planting plots are situated within the courtyard and along the base of the walls.
The stone paving is divided into permeable zones and rapid impermeable drainage zones based on the rainwater flow path. Additionally, half of the roof is covered with soil to serve as an experimental green roof area, exploring the subtle relationship between soil and rainwater.
The courtyard landscape and green roof function as integrated rainwater recycling and treatment facilities, accomplishing a series of effective stormwater management processes including collection, infiltration, and reuse.
EXPERIMENT 3
Lifestyle Prototype — Office and residential, exhibition and workshop, commerce and rental—all coexist within this small house. This building is a spatial medium that allows the homeowner to simultaneously embrace both work and life.
The creation of a living paradigm through a single, independent architectural project has given us the courage to pursue our bold vision: building a replicable, adaptable, self-developed residential prototype in Xueshan Village. This very aspiration constitutes the origin of the third experiment.
Xueshan Village, situated in the urban fringe, enjoys high accessibility transportation and more affordable housing, granting it a unique locational advantage.
The convenience of urban amenities combined with the low rental costs of the rural setting creates a sustained appeal for professionals seeking flexible career development. This dynamic also acts as a new engine of vitality for the village. Our goal is twofold: to retain those who have already arrived in Xueshan Village, and to attract more freelancers to settle here.
On the village scale, construction flexibility and feasible planning formalities procedures have simplified the processes for house leasing and renovation, thereby paving the way for small-scale, self-initiated development. Since the adjacent plots mostly belong to relatives or neighbors who share similar construction aspirations, a phased development approach will see the gradual dissolution of dividing walls.
Consequently, the residences will evolve from individual houses into an organically growing, small-scale community.
During the construction process, the homeowner and we began planning to introduce more supporting industries to Xueshan Village. For instance, since the train route from Xizhimen to Changping North Station has been inaugurated, we plan to operate a commuter shuttle between the station and the village to facilitate train commuting.
Additionally, we aim to integrate amenities such as a local market and a café-bar that can be used by both original residents and new arrivals, thereby aligning the living experience with urban standards. These initiatives are currently under planning and development, laying the groundwork for the organic growth of the village.
AN EXPERIMENT FOR THE FUTURE SOCIETY
As outlined, this building is simultaneously a private home, a design office, and a community space in the countryside. As an experiment that transcends conventional lifestyles and visions for the future, this project operates within the realm of architecture while simultaneously entering that of sociological discourse. We hope this building will offer a new model for living, enabling more people to transition into new phases of their lives there. Therefore, we regard this building not as a definitive solution, but as a form of critical proposition; not as an aesthetic nostalgia for a romanticized countryside, but as a contemporary act of art; and not as an imagination rooted in collective memory, but as a tangible experiment concerning future society.





































