Tent Cabin In Omori
ARCHITECTS
Hune Architects
LEAD ARCHITECT
Kota Tamaki, Julia Li, Sei Hayashi, Koh Inami
ENGINEERING & CONSULTING > STRUCTURAL
Graph Studio
ENGINEERING & CONSULTING > OTHER
Haruka Shoji (Textile Design)
ENGINEERING & CONSULTING > ENVIRONMENTAL SUSTAINABILITY
Studio Nora
GENERAL CONTRACTOR
Akashoshin Kaihatsu Ltd
PHOTOGRAPHS
Yurika Kono
AREA
72 m²
YEAR
2025
LOCATION
Tokyo, Japan
CATEGORY
Houses
English description provided by the architects.
This is a two-storey timber house designed for a young couple and their two children.
Each family member has their own passions and rhythms, they wished for a home with a variety of places to retreat into and yet remain connected- so that their days could flow together without crowding into one another.
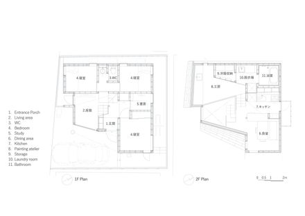
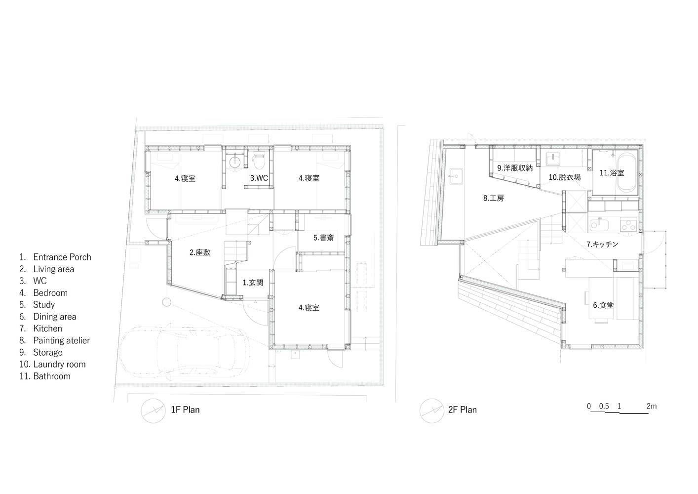
The site lies along a small lane branching from a narrow road that faces the railway tracks. The bedrooms are set in an L-shape in plan, staggered by half a level to follow the natural gradient between the front road and the rear of the plot.
Above the bedrooms, along the gentle climb of the staircase, a series of common spaces unfolds: a warm and cozy living corner, a dining area, a small painting atelier and a loft. These are gathered beneath four interlinked roofs, their forms draping softly over like a loose white cloth.
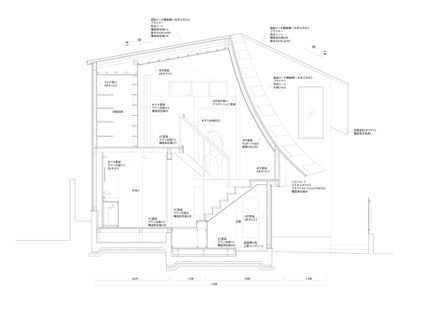
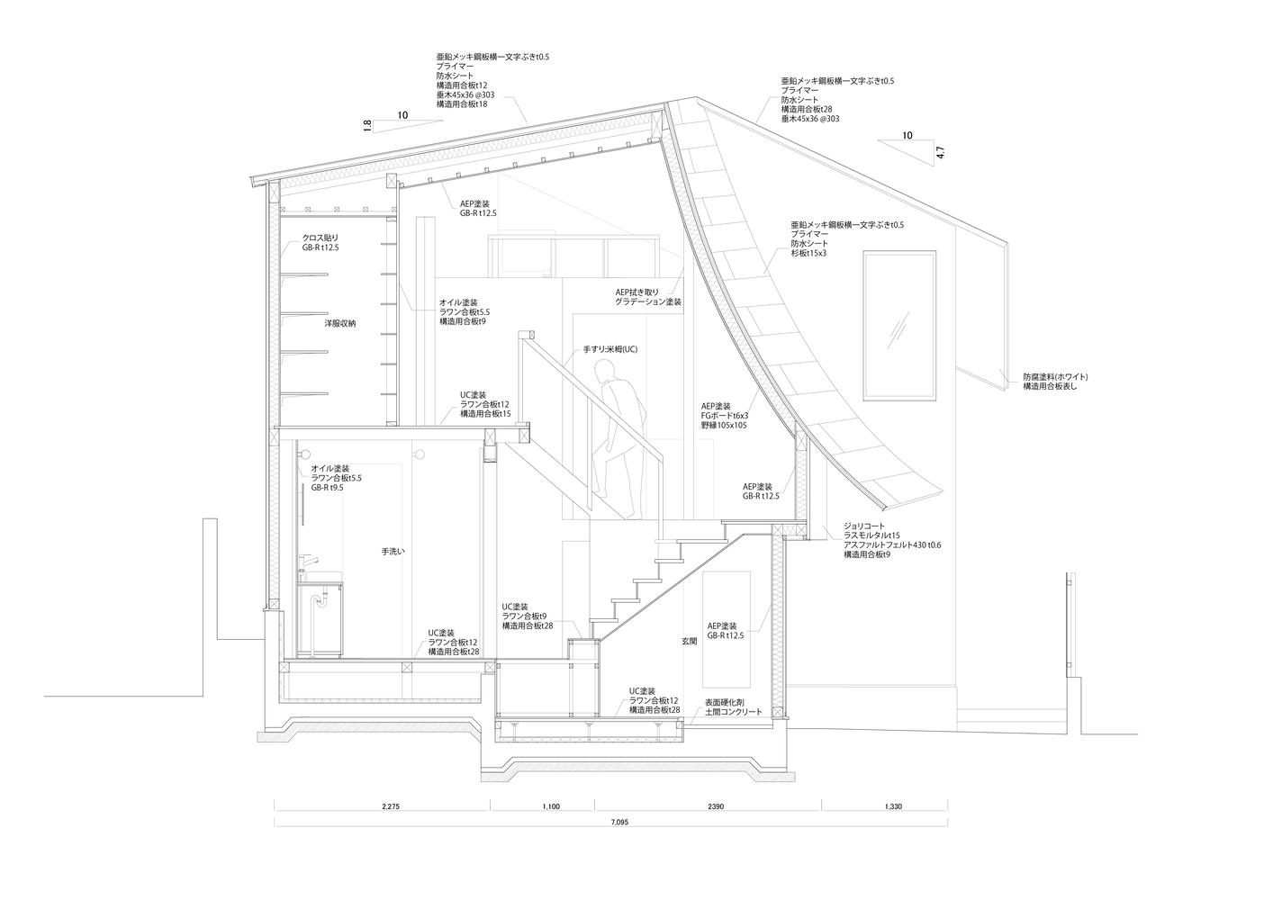
A central pillar lifts the roof to form a ridge, from which the four roofs, one of them curved, fold down towards the edges, letting the relationship between the roof and floor shift as you move through the building.
Climbing up the stairs from the entrance, the interior gradually opens, each step offering a new way of perceiving the roof line and the space beyond. Daylight slips through the cut edges of the roofs, grazing the curved roof form from the side, scattering colors that shift with the hour.
We imagine this house as a shared fabric draped lightly embracing this family, where each person can find a corner to call their own, yet all remain under the same gentle shelter, under the same roof.
To evoke the image of a tent-like, pliant roof in timber construction, we proposed forming a curved surface by laminating thin, bendable boards to a total thickness of about 40–50 mm.
After discussions with the contractor and testing through mock-ups, the system was finalized as three layers of cedar boards, each 300 mm wide and 15 mm thick.
Offsite, each board was carefully watered daily to soften the fibers, then bent over a curvature mould to follow the roof's designed geometry.
These pre-bent plies were transported to the site, staggered at the joints, and bonded together with screws and adhesive to form a unified 45 mm-thick curved laminated roof.
Measurements with MEMS acceleration sensors, conducted both in the factory and on site, showed that compared to a single 15 mm board, the 45 mm laminate achieved approximately 2.5 times higher natural vibration frequency.
This confirmed that the assembly provided out-of-plane bending stiffness equivalent to that of a solid 40 mm board, while still preserving the lightness and pliant impression of fabric gently stretched into form.



















