
House In Hayama
ARCHITECTS
FujiwaraMuro Architects
PHOTOGRAPHS
Katsuya Taira(studioREM)
AREA
63 m²
YEAR
2025
LOCATION
Hayama, Japan
CATEGORY
Houses
English description provided by the architects.
The project began with the client's request for an "open-air feeling like a resort" and an "outdoor space where they could enjoy time with their beloved dog undisturbed."
While the site is situated in an area dotted with vacation homes, its location within a residential neighborhood with narrow, winding roads presented a critical challenge: maintaining privacy while also blocking views from neighboring houses and the front road.
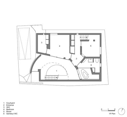
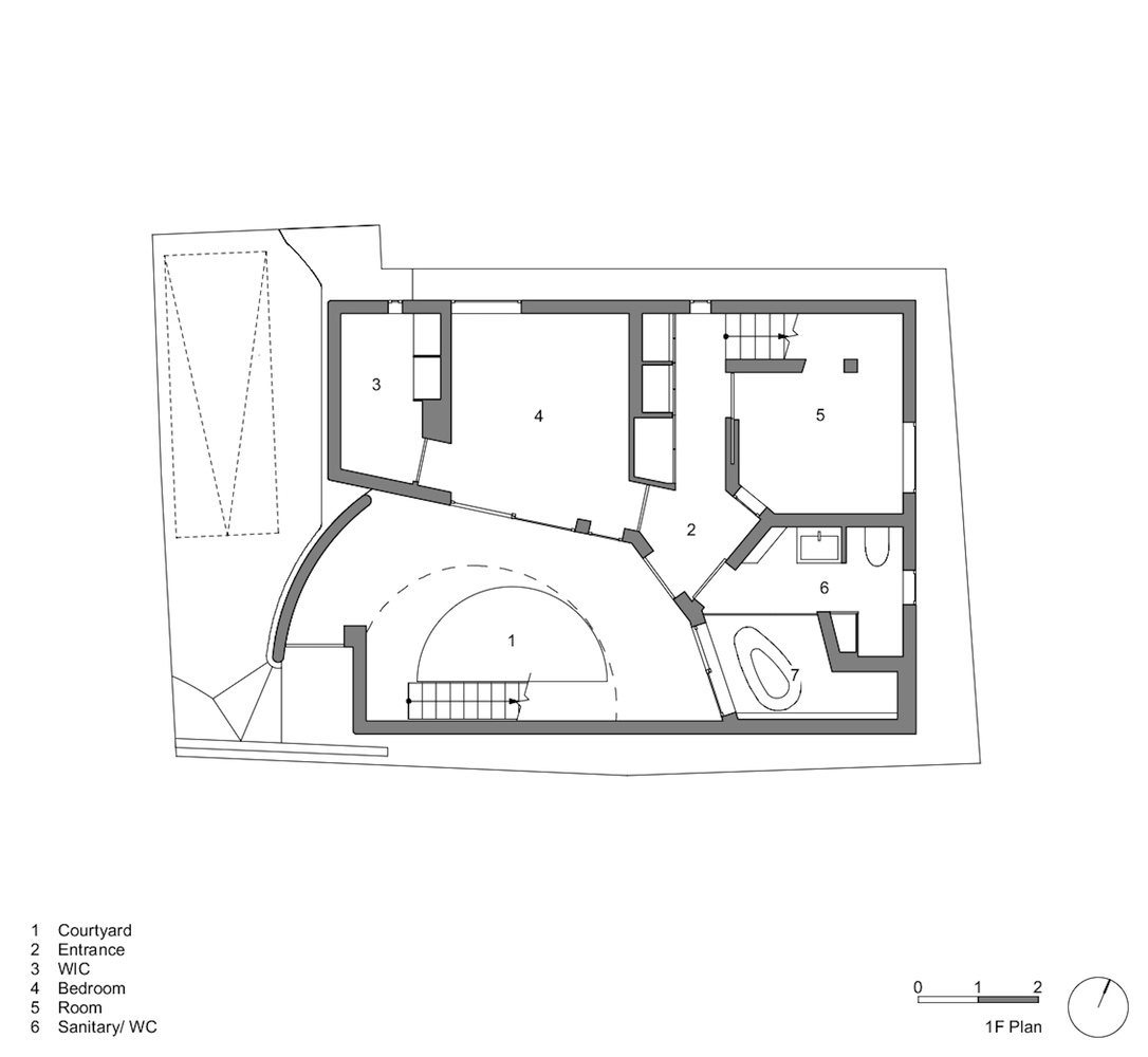
To block out views from the surrounding area while connecting the inside and outside, the house was naturally designed around a central courtyard.
To ensure that residents can comfortably spend time by the windows or in the courtyard, the design features large overhanging eaves that soften the intense summer sunlight.
The exterior, finished in white plaster reminiscent of Santorini, Greece, embodies the client's image of the resort.
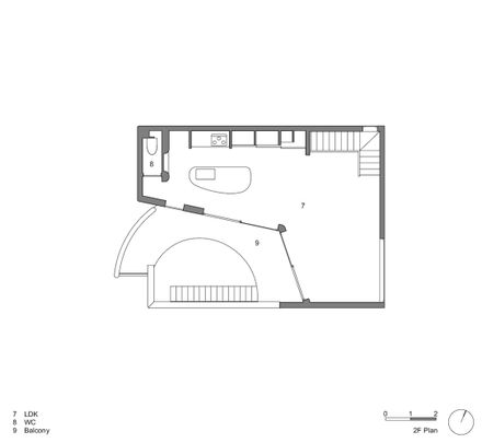
The kitchen was finished with plaster to match the ambience of the exterior, designed in a rounded shape to connect with the overall atmosphere.
The bedroom and bathroom face the courtyard. Light reflecting off the white walls softly envelops the space, creating an atmosphere reminiscent of an open-air hot spring in the bathroom.
A shower is installed in the courtyard, where the clients can wash off sweat and sand after enjoying surfing, their favorite hobby.
Additionally, we have installed stairs leading directly from the courtyard to the second-floor deck, providing a direct access route for their dog and guests to reach the second-floor living room without passing through the first-floor entrance.
This house connects the interior and exterior, as well as the upper and lower floors, in a three-dimensional way around the central courtyard.
































