Infinity Edge Residence
ARCHITECTS
Tropical Tones
LEAD ARCHITECT
Ar.Sruthi, Ar.Jasim
INTERIOR DESIGNER
Hanna
STRUCTURAL CONSULTANT
Diseno Structurals
LIGHTING CONSULTANT
Kiara Lighting
MANUFACTURERS
JAQUAR, ACE, Art legends, Blum, FNICHE, Hafele, KUDKYS, Kajaria, Mitsubishi, Norisys, STONE SMITH, Saint Gobain Glass
CONTENT WRITER
Kajol Joan Williams
PHOTOGRAPHS
Syam Sreesylam
AREA
3300 m²
YEAR
2024
LOCATION
Kerala, India
CATEGORY
Houses
English description provided by the architects.
How often are irregularly shaped plots dismissed when buying land?
In many towns, the land is subdivided into perfect rectangles for construction, leaving plots with unconventional shapes—sharp angles and awkward dimensions—undesirable and in low demand.
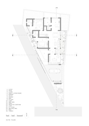
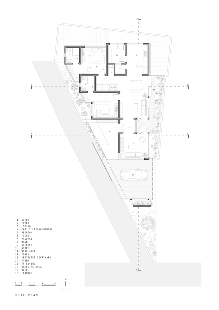
The architecture studio Tropical Tones, however, has set an example by tackling this challenge. This Tropical Modern residence in Azhiyur Village in Kozhikode, Kerala, is built on an 8-cent trapezoidal plot within the Coastal Regulations Zone, just 100 metres from the National Highway.
The proximity to the sea and the narrow corner of the site are typically considered non-negotiable constraints for homeowners. Yet, this family of a young couple and four kids took a leap of faith.
For an informed and thoughtful design practice, taking advantage of disadvantages is the way forward. The irregularity of the site dimensions determined the unique plan of this house.
The access is cut through one of the narrowing edges, giving primary importance to the acute angle. It acts as a focal point from which the plan was developed to occupy the shape of the site.
The triangular patch is the only stand-alone landscaped area. The house is, however, connected to nature by borrowing side yards as part of the landscape, showing that space constraints in urban dwellings are no excuse to eliminate nature from the design.
Here, the shared spaces are zoned to the east for optimal thermal comfort. The formal living and the family living areas are separated by a buffer space that opens into a sheltered side yard, sharing the compound wall.
Wooden folding sliding windows offer flexibility, balancing visibility and privacy as needed. In the buffer space, tropical plants take over the architectural void, making it a space for reflection.
The double-height volume of the living and dining areas, with its glass walls, creates a minimal yet naturally lit space with open sightlines that connect the entire house.
The interiors were designed to be durable and capable of withstanding rough use.
The natural limestone flooring and polished concrete roof reflect the studio's affinity for raw and natural textures, while a colour palette of greys and warm wooden tones extends seamlessly to the kitchen and bedrooms.
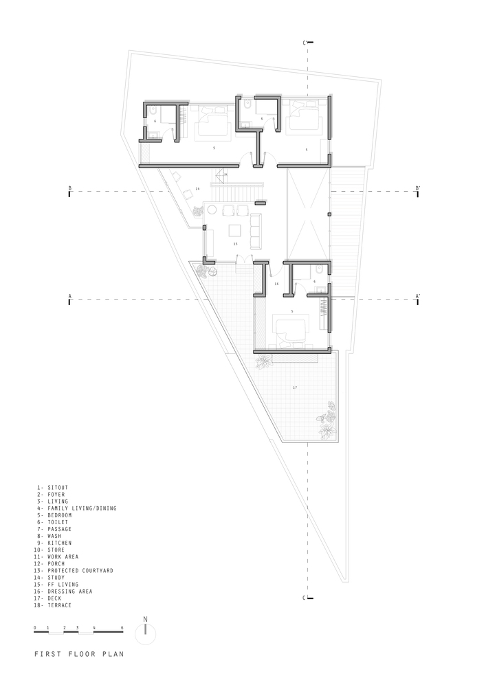
This 3,300-square-foot house accommodates five bedrooms—two on the ground floor and three on the first floor—mainly zoned on the west to let in the sea breeze.
The layout of the bedrooms aligns with the site, allowing for distinct seating spaces concealed by plants on the outside.
A sleek metal-and-wood staircase spans both floors, culminating in the utility terrace. The stair landing doubles as a study area overlooking a neighbouring empty plot.
Strategically placed windows in the glass walls allow the sea breeze to flow inside, enhancing ventilation. The upper-level living area opens onto an expansive deck that extends to the site's edge, sheltered by a truss roof with shingles.
This deck serves as a secondary outdoor space, compensating for the lack of ground area where children can play safely.
Infinity Edge is a residence reflecting "Form follows function" in every aspect of its design. It shows how the site, far from being a constraint, became an inspiration.


































