A Reborn Scenic Field Above Waves
ARCHITECTS
Tjad Original Design Studio
LEAD ARCHITECT
Zhang Ming, Zhang Zi, Ding Chun, Chen Kaiyang
DESIGN TEAM
Ding Kuo, Wang Xunan, Cai Han, Wu Zhenghao, Lin Yuyang
STRUCTURAL DESIGN TEAM
Wang Rui, Sang Haigang, Chen Wenhao
CLIENT REPRESENTATIVE
Ye Suqin, Zeng Lingguo
MEP DESIGN TEAM
Jiao Xueyuan, Guo Changzhao, Yu Chao, Liang Weipeng, Jiang Hui, Zhu Yuanbin, Cao Yang, Yang Jiapeng, Yang Xiu, Cai Rong, Bian Chen, Wei Yanmeng
CLIENTS
Taizhou Jiaojiang District Social Development Group Co., Ltd.
PHOTOGRAPHS
ZY Architectural Photography, Original Design Studio
AREA
7485 m²
YEAR
2024
LOCATION
Taizhou, China
CATEGORY
Public Space, Infrastructure, Renovation
Situated in the urban core section, the project is located along the southern bank of the Jiaojiang River, to the west of the Taizhou Bay estuary. It is adjacent to the Jiaojiang Bridge, the Submarine Sightseeing Base, and Hehe Avenue.
Jiaojiang's riverfront development coincides with the phase-out of industrial activities on both banks. Brownfield waterfront areas are undergoing comprehensive greening and transformation into livable spaces.
English description provided by the architects.
Taking advantage of the opportunity to upgrade the seawall, the design transforms existing structures and spaces to foster a symbiotic relationship between public areas and the seawall.
The design imbues the previously detached hydraulic infrastructure with multiple functions, integrating it into the city's everyday life.
"REOPEN" SEAWALL TO THE CITY
The existing seawall is enclosed and elongated, with towering, isolated breakwaters. The narrow crest area results in poor connectivity between interior and exterior spaces.
Two abandoned, four-story structures spanning 270 meters in width remain atop the seawall, severely obstructing the connection between the city and the riverfront.
In response to the need to raise and widen flood walls when upgrading the seawall, the design reorganizes the site's spatial configuration.
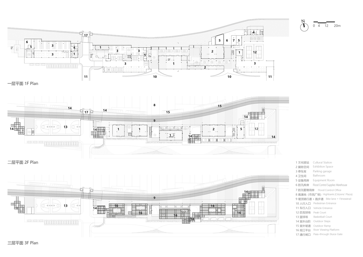
The crest space was expanded to over 12 meters and multiple connectivity options were incorporated to transform the linear barrier into a circulation zone with multiple pathways.
Parking functions outside the embankment were relocated to the southern end of the building, which is covered by a gently sloping roof that integrates seamlessly with the traffic flow on Hehe Avenue. Sports facilities were positioned at both ends of the site.
The seawall space outside the embankment was repurposed as a public plaza. To maximize preservation of the existing structure's historical and material value, the design incorporates partial retention by placing courtyards and platforms within it.
By integrating it with the seawall, a riverside public space is created that combines infrastructure, public greenery, and community amenities.
"RECONNECT" SEAWALL WITH THE TIME
Based on a structural assessment and an analysis of the Jiangcheng Link sightline, the design involves horizontally slicing the existing four-storey building down to two storeys.
Six vertical river passageways are created and the remaining structure is partially cut to form seven courtyard spaces.
The interior spaces are organised in a logical way to accommodate functions including water conservancy, cultural exhibitions, a public rest area, sports facilities, water management offices and parking.
During the partial demolition of the concrete structure, sections of the old walls and beam ends were deliberately preserved.
These remnants connect to the new additions and allow the original structure to frame the light and shadow of the courtyard's greenery, expressing its own character in the process.
The historical value of the building is brought into the present in multiple dimensions. The new steel structural elements are layered alongside the existing concrete framework.
The interplay of new and old, light and heavy, delicate and rough elements creates an atmosphere layered with the passage of time. The multi-tiered platform is integrated within the preserved structural framework and guided by the landscape.
It brings in light, nature and vitality, creating a three-dimensional, cyclical wandering system for moving around the landscape alongside the embankment road.
"RE-LAYER"SEAWALL VIA THE SCENERY
The roof's graceful and lightweight form is created using suspended ribbed steel sheets as the primary structural element.
With a section height of 170 millimetres, it can span distances of between 8 and 24 metres. The main framework uses cross-shaped I-columns integrated with double-channel steel truss beams. Together with the gentle roof, these elements create a long pavilion along the riverbank that embraces the surrounding scenery.
The steel pavilion has been superimposed upon the preserved concrete framework and features newly added platforms and staircases with elevated steel grating. Grass has been planted in the spaces between the steel structure's lightness and the concrete's heaviness, adding a soft vitality that reflects the ecological transition from brown to green along the riverbank.
"RELIGHT" SEAWALL FOR THE PUBLIC
The design draws on and reinterprets the cultural heritage of fishing communities. The undulating roof is inspired by the everyday sight of fishing nets drying along the Jiaojiang riverbank. The green slope on the south side takes the form of a fishing shuttle and seamlessly integrates the garage entrance.
The connecting steps on the northern side and the eastern court fence mirror the ripples on the river's surface, blending with the main structure to create a relaxed and light-hearted atmosphere.
The design aims to create a warm and inviting space that serves as a vibrant city living room, where residents willingly linger, connect and engage, and which acts as a beacon guiding people home.
The public space outside the embankment hosts the national intangible cultural heritage ceremony, 'Sending the Great Heat Boat', during the Great Heat solar term.
Daily activities include large-scale public events such as square dance gatherings. The multi-level promenade space along the riverfront connects the areas inside and outside the embankment seamlessly, and has become a renowned destination for riverside sightseeing and leisurely strolls.
THE WIND BLOWS, THE LIGHTS GLOW, WITH FALLEN STARS ON THE WAVES
As the design team revisited the site at dusk, the lights of the fishing village gradually came to life.
Amidst the bustling crowd, local residents spontaneously introduced visitors to the connection between the architecture and fishing culture, vividly describing scenes of people feeling the river breeze, savouring seafood, admiring river views, playing basketball and dancing in the square. The project has become an everyday sight, as if they had always belonged there.





















