Parc Des Loges - Childhood And Sports Center
ARCHITECTS
Hemaa
LANDSCAPE PROJECT
Wald
BIODIVERSITY
Wald
STRUCTURAL WORK
Donato
CIVIL ENGINEERING
Terre Et Pierre
EARTHWORKS
Terre Et Pierre
ROOFING
Sarmates
WALL FINISHES
Sertac
PAINTING
Les Peintures Parisiennes
WALL COVERING
Les Peintures Parisiennes
HEATING
Lgc / Be Marolle
VENTILATION
Lgc / Be Marolle
ELECTRICAL
Tardy
LANDSCAPING
Idverde
CLIENT
City Of Evry-courcouronnes
PARKING SPACES
50 Underground
PROJECT COORDINATION
Jdm Ingénierie
RAMMED EARTH
Donato
TIMBER STRUCTURE
Cunin
WATERPROOFING
Sarmates
EXTERNAL JOINERY
Diter
SHUTTERS
Diter
METALWORK
Environnement Services
KITCHENS
Froid77
PLASTER
Bathelec
CEILINGS
Bathelec
INTERIOR JOINERY
Pescia Menuiserie Et Bâtiment
FLOOR FINISHES
Sertac
PLUMBING
Lgc / Be Marolle
KITCHEN EQUIPMENT
Froid 77
COST CONSULTANT
Ana Ingénierie
RAMMED EARTH CONSULTANT
Beterre
PHOTOGRAPHS
Charles Bouchaid, Sergio Grazia
OUTDOOR SPACES
3.854 M²
AREA
2444 m²
YEAR
2025
LOCATION
Évry-Courcouronnes, France
CATEGORY
Recreation & Training, Elementary & Middle School
English description provided by the architects.
Founded in 2018 by Charles Hesters and Pierre Martin-Saint-Etienne, HEMAA is an architecture firm that embraces a contextual, sobriety-based approach rooted in the living world.
Each project emerges from a careful reading of its surroundings, seeking a balance between nature, use, and material.
In Evry-Courcouronnes (Greater Paris – France), the Parc des Loges Childhood and Sports Center fully embodies this philosophy: a gentle, landscape-based composition built from bio- and geo-sourced materials, serving a public facility that is open, generous, and sustainable.
AN ARCHITECTURE WITH DEEP ROOTS
Perfectly integrated into the site's natural topography, the project follows the slope without artificial alteration.
Five entities—nursery, elementary school, childminders' hub, cafeteria, and sports stand—are arranged around a central garden courtyard, sheltered from the street yet open to the landscape.
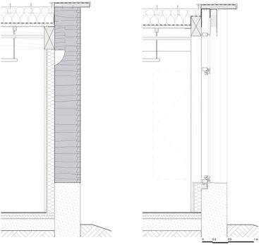
Connected by delicate glazed walkways, these autonomous volumes encourage natural light, visual connections, and a relationship with the living environment. An allegory of the constituent materials of the lodge park, the facades are made of load-bearing rammed earth, and the interior framework is entirely wooden.
Pathways meander between newly planted trees, extending the school naturally into the park. The children's garden becomes a tamed forest, planted with oaks, ashes, maples, and elms, and punctuated by a clearing inviting free play.
Inspired by the Waldkindergarten philosophy, the project offers a playful and immersive vision of learning—one that is deeply anchored in nature and the living world.
SOBRIETY-ORIENTED MATERIALS
The entire project follows a demanding environmental approach. The 665 m³ of load-bearing earth used for the façades—equivalent to 1,330 m² of 50-cm-thick walls—were sourced from the Grand Paris metro tunnel excavations.
Insulated with hemp wool, these walls retain the natural breathability of rammed earth. The green roofs (15–20 cm of substrate) enhance thermal comfort and support natural water management.
Adjustable sunshades and deep roof overhangs regulate sunlight naturally. The building orientation captures winter light and promotes natural summer ventilation. Abundant, diverse vegetation limits urban heat island effects and strengthens local biodiversity.
Wood and rammed earth create a soft, rooted architecture with simple geometric shapes. In this working-class community, where many children do not leave the city during school breaks, the childhood center is meant to be both a place of learning and a space for escape.
Rammed earth —a living, breathable material—invites touch and provides a unique setting for children growing up in a city largely built from concrete.
Wood, warm and tactile, defines the interiors and the structure. At the base, low-carbon textured concrete, punctuated with glazed panels at child height (60 cm), combines sturdiness, natural light, and intimacy.
A SHARED FACILITY
The sports complex naturally extends this architectural language. Its 300-seat grandstand, perfectly oriented, ensures optimal viewing comfort.
Its gently sloping roof lowers toward the leisure area, preserving light and views within the courtyards. Integrated into the whole, it reinforces the idea of a shared, intergenerational, and open public space at the heart of the city.




























