Zero-Carbon Eco Home
ARCHITECTS
Bindloss Dawes
STRUCTURAL ENGINEERS
Splinter Structure
CONTRACTOR
Sbconstruction
CLIENT
Bindloss Dawes
PHOTOGRAPHS
Dave Watts
YEAR
2025
LOCATION
Compton Bishop, United Kingdom
CATEGORY
Houses, Adaptive Reuse, Sustainability
Bindloss Dawes Architects has completed a unique zero-carbon eco house created from the adaptive reuse of a former tractor shed on the edge of the idyllic village of Nether Compton in Somerset.
The project embodies qualities central to Bindloss Dawes' approach: agricultural architecture, contemporary design, and exemplary environmental performance. The result is a home that feels both spacious and intimate.
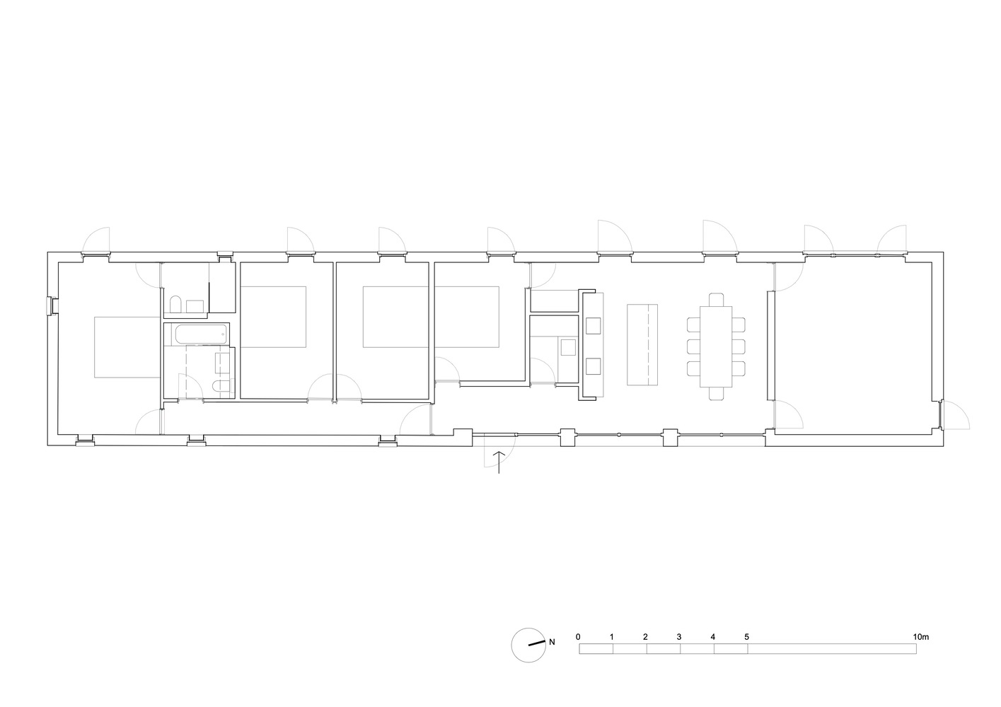
Set in the heart of Nether Compton village, the new building is a long mono-pitched structure that retains the distinctive volume of the original building, creating light and generous spaces inside.
The east end of the plan features a living room, an open plan kitchen, and dining space. In the centre of the home is a versatile space that can be used as a snug, home office, or fourth bedroom.
The west side of the home features bedrooms and bathrooms, with all spaces connected by a long hallway. The bedrooms, kitchen, and living spaces open onto the garden plot, making for easy indoor-outdoor living.
Steel beams and a metal composite roof structure are left visible, balanced by a muted palette of interior material to create spaces that are calm yet honest in character.
This clarity is elevated with accents of Douglas fir timber and quality details, including handcrafted ironmongery and light fittings, reflecting the studio's continued advocacy of craftsmanship, permanence, and quality.
Designed and delivered as a one-off development project by Bindloss Dawes Architects director, George Dawes, the house distils many of the lessons learned from the practice's wider body of rural projects in Somerset and the South West.
The result is a home that marries the pragmatism of agricultural construction with a heightened level of design precision rarely seen in such conversions.
Environmental performance is central to the project. The walls, roof, and floor are highly insulated, and windows and doors are triple-glazed.
All energy used within the house is generated on site: a renewable air-source heat pump delivers heating and hot water, while roof-mounted photovoltaic panels supply clean electricity.
Together, these systems enable the home to be zero-carbon in use, setting a benchmark for sustainable rural living.
George Dawes, Director, Bindloss Dawes said: "This project has been a rare opportunity to bring together many of the ideas of our architecture studio: to create a high-quality, sustainable home on a manageable budget.
It demonstrates how an unassuming agricultural structure can be elevated into something that feels crafted and generous, combining the practical and the poetic."





















