House In Vinhedo
ARCHITECTS
Apiacás Arquitetos
LEAD ARCHITECT
Acácia Furuya, Anderson Freitas e Pedro Barros
CONSTRUCTION MANAGEMENT UNIT
Aimberê Construção
ENGINEERING & CONSULTING > LIGHTING
Cia Da Iluminação E Reka
ENGINEERING & CONSULTING > CIVIL
Lourenço
ENGINEERING & CONSULTING > ELECTRICAL
Odair
ENGINEERING & CONSULTING > INSTALLATIONS
Rda
PROJECT TEAM
Artur Lacerda, Felipe Santos, Igor Grasser, Karina Rebello, Victor Rosa
ENGINEERING & CONSULTING > OTHERS
Edu Aquecedores, Enok Construções, Marmoraria Futura, Gf Esquadrias
LANDSCAPE DESIGN
Marina Schmidt
PHOTOGRAPHS
Alessandro Kusuki
AREA
333 m²
YEAR
2022
LOCATION
Vinhedo, Brazil
CATEGORY
Residential Architecture, Houses
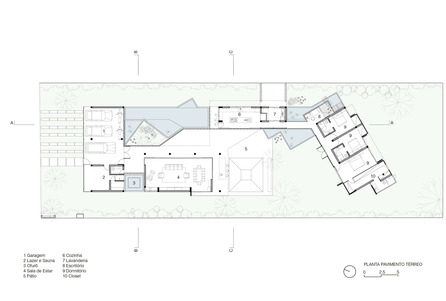
The flat terrain with generous dimensions, intended for a residence with a maximum area of 250 m², motivated us to position it in a way to maximize the interface between the covered program and the external areas.
The resulting distribution follows a logic already tested in other residential projects by the office, where the circulation between the rooms is configured as covered passages, yet open laterally — without frames or masonry — to extend the experience between the interior and exterior.
Viewed from above, the house can be interpreted as a large slab that traverses the land like a canopy of irregular geometry, shaped by the arrangement of the spaces.
This continuous covering organizes the ensemble, alternating between closed and open spaces — pool, patio, and external living areas — to favor a fluid transition between the parts.
In the center of the patio, a circular cutout houses the fire pit, a gathering and permanence element.
The independent volumes, connected by the circulation balconies generated by the design of this canopy, possess regular geometry and define small patios and cloisters.
The block containing the bedrooms, however, has been subtly angled in relation to the others, seeking the most favorable solar orientation.
The arrangement of the spaces follows a hierarchical logic of uses. Facing the street, the first volume contains the access hall, garage, and sauna.
This space is surrounded by slatted wooden panels with different opening mechanisms: tilting gates for the garage, a pedestrian door, and pivoting panels facing the pool.
When closed, the panels become coplanar, forming a single continuous and neutral plane. This solution reinforces the intention of flexibility of the space, whose amplitude allows for multiple modes of use.
Perpendicular to this first volume is the living area, whose main facade opens entirely to the pool. At the opposite end, the kitchen volume connects to the intimate sector through a circulation protected by frames, ensuring comfort and visual integration.
The construction relies essentially on three materials: concrete, glass, and wood. It is expected, however, that a fourth element — vegetation — will fully integrate into the architecture.
Over time, it should traverse and soften the transitions between the environments, reinforcing a recurring intention in our investigations:
to provoke the meeting between the inside and outside, accentuating the natural vocation of the place.
This condition, inherent to the Brazilian climate, does away with the need for every space to be hermetic and conditioned, proposing a dwelling that gives equal weight to the importance of constructed spaces as well as unbuilt ones.























