
Brooklands Workplace Campus
ARCHITECTS
Allies And Morrison
MEP
Couch Perry Wilkes
SUSTAINABILITY
Couch Perry Wilkes
STRUCTURE
Ramboll Studio Dreiseitl, Ramboll
LANDSCAPE DESGIN
Barton Willmore
QUANTITY SURVEYOR
Stace
ECOLOGY
Mka Ecology
TRANSPORT
Slr Consulting
CLIENT
M&g, Wrenbridge
DESIGN PLANNING
Barton Willmore
FIRE CONSULTING
Hoare Lea
MAIN CONTRACTOR
Sdc
ENVIRONMENTAL
Epc A+, Breeam Excellent, Activescore Platinum, *net Zero Carbon: Operational Net Zero Carbon Through On-site Renewable Energy Generation
PHOTOGRAPHS
Jack Hobhouse
SITE AREA
3,700 M2
B1 AREA
1,058 M2
B2 AREA
8,718 M2
LOCATION
Cambridge, United Kingdom
CATEGORY
Office Buildings, Sustainability
English description provided by the architects.
Brooklands is a new workplace campus in central Cambridge, containing the city's first major Net Zero Carbon* office building.
It fills a gap in the Cambridge workspace market, meeting tenant expectations for high-quality space while at the same time offering sustainable, characterful buildings that contribute to the city.
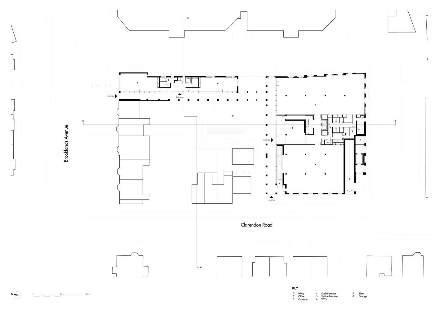
6,000 sqm of flexible workspace is arranged across two buildings (B1 and B2) around a courtyard garden, linked by a colonnade. Brooklands aligns closely with the government's strategic growth agenda for Cambridge and its ambition to boost the knowledge economy.
Growth in Cambridge is not limited to expanding the city's fringes; it also involves optimizing existing urban areas and bringing underused sites to life in a sustainable and sensitive way.
The Brooklands site occupies a dual context, straddling both the leafy residential Brooklands Avenue Conservation Area and the CB1 business district around Cambridge station.
This required a nuanced design response, which evolved to include a layering of building scales, an articulated silhouette, and a carefully composed roofscape.
The design has been widely praised by Cambridge planning officers and delivers the required quantum of space, including large floorplates to satisfy the commercial brief.
Two buildings take their place on the site. Adjoining the end of the existing Victorian terrace on Brooklands Avenue, B1 has a composition of large north-facing windows overlooking the street.
A double-height dormer provides an eye-catching sense of arrival whilst the building's overall 3-story massing remains sympathetic to its Victorian neighbors.
Passing through an opening under the feature window brings the visitor into the courtyard via a colonnaded pedestrian route.
B1's domestic proportions and shallow floorplate permitted a partial CLT structural solution with exposed timber soffits on the upper floor. Interior spaces have excellent levels of daylight and views across the courtyard.
Adjacent to a substantial office block on Clarendon Road, B2 is a considerably larger structure standing 5 stories tall, providing generous commercial floorplates over five floors.
The top floor has a loft-like character, with exposed CLT soffits and north-facing roof lights under the sawtooth roof. Floors two, three, and four all have roof terraces integrated into a series of cut-outs on the north and west-facing facades, which step down in scale as they meet Clarendon Road.
The two buildings' palette of locally characteristic materials – predominantly light colored brick, reconstituted stone, and metalwork elements – provides a warm backdrop to the generous courtyard garden at the heart of the site.
Achieving an EPC rating of A+ and meeting the RIBA Challenge 2030 new building office energy targets, both buildings are designed to high fabric performance standards, employing air source heat pumps, variable refrigerant flow units, and maximizing solar collection with 870 sqm of predominantly south-facing PVs on the carefully oriented roofs.
The basement houses end-of-trip facilities with secure storage for 300 bicycles accessed via a 1:4 stepped cycle ramp. Brooklands achieved Active Score Platinum. Future flexibility for tenants has been built in.
A 'soft spot' within B2's second floor provides the potential for a future open-plan staircase that could link floors one and two. The development's future-proofed digital infrastructure has earned it a WiredScore Platinum.
This commitment to longevity is further reinforced by the tenant design guide we were commissioned to produce, supporting future fit-outs that work best for the tenant and building.
The high-quality workspace interiors are complemented by Brooklands' wide variety of external amenity spaces, including terraces and planted areas.
The landscaped courtyard fulfills multiple functions: it's a biodiverse, calm amenity space for tenants, a buffer zone between Brooklands and its neighbors, and provides a pedestrian route across a 'garden campus' unique within the Cambridge workplace market.
Paul Eaton, Partner, Allies and Morrison, said, "With its locally inspired forms, rhythm and materials, Brooklands stitches into its sensitive context, while providing a significant amount of high-quality new workspace to support Cambridge's ongoing success as a centre for global innovation.
The project's two buildings frame a shared garden court, edged by a colonnade that forms a new publicly accessible route through the site.
Inside both buildings, high-quality workspaces have character and ample natural daylight, while the sustainable all-electric approach to design makes a meaningful contribution to Net Zero aspirations for our clients, future tenants, and the City of Cambridge.
The project was developed in a highly collaborative way, with the design team and client working closely with local planning officers."
Jamie Garrett, Director, Wrenbridge, said, "Allies and Morrison have been exceptional partners on the Brooklands project, combining creativity, professionalism, and a deep understanding of our ambitions.
They skillfully navigated the Brooklands Avenue Conservation Area, delivered large, tenant-friendly floorplates, and crafted a design that respects the site's heritage while engaging neighbors.
From the linking colonnade to the distinctive sawtooth roof, their attention to detail and coordination created a calm, elegant backdrop that prioritizes tenant wellbeing.
When we raised our sustainability goals late in Stage 4 to target net zero operational carbon and a fossil fuel-free building – a first for Cambridge's workplace market – they adapted the design with agility and focus, working closely with contractors SDC to achieve this ambitious milestone without compromising quality.























