
Tammela Hybrid Stadium
ARCHITECTS
Jkmm Architects
INTERIOR ARCHITECT, SCALE MODEL
Tatu Laakso
ARCHITECT
Sini Coker, Reetta Aarnio, Riikka Heldan, Kimmo Kirvesmäki, Edgars Racins, Tuomas Raikamo, Johanna Raukko, Hannu Rytky, Kaisa Laiho
PRINCIPAL DESIGN AND ARCHITECTURE
Jkmm Architects
PROPERTY MANAGER
Virpi Ekholm, Mikko Nurminen, Antti Lakka
GEOTECHNICAL ENGINEERING
A-insinöörit, Sami Punkari, Jari Kolkka
CONTRACTORS
Alliance Contract, Pohjola Rakennus Oy Suomi
ELECTRICAL DESIGN
Ramboll Finland Oy
ACOUSTICS
A-insinöörit, Timo Huhtala
MAIN USER
City Of Tampere
OPERATOR
Fc Ilves Tampere
CLIENT
City Of Tampere
CONTRACTOR
Pohjola Rakennus Oy Suomi
SPORTS MANAGER
Mikko Heinonen
STADIUM MANAGER
Toni Hevonkorpi
CEO
Risto Niklas-salminen
PROJECT ARCHITECT (2021–2024), ARCHITECT
Alli Bur
PROJECT ARCHITECT (2019–2021), ARCHITECT
Harri Koski
PROJECT ARCHITECT (2015–2019), ARCHITECT
Kristian Forsberg
ARCHITECT SAFA, FOUNDING PARTNER
Asmo Jaaksi, Teemu Kurkela, Juha Mäki-jyllilä
ARCHITECT STUDENT
Helmi Häkkinen, Jaana Miettinen
ARCHITECT SAFA, VISUALISATIONS
Lars-erik Mattila
INTERIOR ARCHITECT SIO
Elina Niemi, Jarno Vesa
ARCHITECT, VISUALISATIONS
Marko Pulli
DESIGN ASSISTANT
Katariina Takala
ELECTRICAL AND AUDIOVISUAL DESIGN
Erkki Hakanen, Juuso Korpela, Anssi Soikkeli
FIRE CONSULTANT
Ramboll Finland Oy, Marko Hämäläinen
LANDSCAPE DESIGN
Outi Palosaari, Saara Oilinki, Emilia Hiltunen
LIGHT INSTALLATION
Tommi Grönlund And Petteri Nisunen
PRINCIPAL DESIGNER, ARCHITECT SAFA, FOUNDING PARTNER
Samuli Miettinen
DESIGNER
Sami Laine
CONTRACTORS (HOUSING, LOWER SPACE)
Satu Vasaramäki, Juha-matti Haapanen Yit Suomi Oy / Sami Viitanen, Pasi Rintamäki, Kimmo Louhivaara, Arto Pitkänen, Harri O Järvinen, Janne Salonen, Karri Halminen
SPECIALISTS FOOTBALL
Football Association Of Finland / Tero Auvinen, Timo Korsumäki, Jarmo Tuomiranta
ARCHITECT SAFA
Henri Olsbo, Tristan Hughes, Katariina Knuuti, Katariina Kosonen,kirsi Meloni, Helka Saarinen, Jaakko Saraste, Anne Viisteensaari, Miina Vuorinen
PROJECT ARCHITECT, HOUSING, ARCHITECT SAFA
Hannele Eriksson-anttilainen, Salla Oikkonen, Tuomo Toivola, Joonas Väkiparta
INTERIOR ARCHITECT SIO, HOUSING
Veera Luostarinen
PROJECT ARCHITECT, LOWER SPACE, ARCHITECT SAFA
Tommi Varis
HVAC ENGINEERING
Granlund Tampere, Ossi Parviainen, Dino Hämäläinen, Erno Haapio
STRUCTURAL DESIGN
Ramboll Finland Oy, Ilkka Mikkola, Simon De Neuman, Juha Rantanen
TRAFFIC AND PARKING
Jouni Ikäheimo
IT & BIM CONSULTING
Minna Salonsaari
AUDIOVISUAL DESIGN
Ramboll Finland Oy
LANDSCAPE DESGIN
Vsu Maisema-arkkitehdit Oy
TRAFFIC
Wsp Finland Oy
STEEL FACADE STRUCTURE
Teräselementti Oy
MAIN CONTRACTOR
Pohjola Rakennus Oy Suomi
STEEL STRUCTURE
Teräselementti Oy
BIM
Gravicon Oy
CONCRETE FLOORS
Betoniukko Oy
CURTAIN WALLS
Inlook Group Oy
STADIUM SEATS
Halwest Oy
DOORS
Avekmet Oy, Jeld- Wen Suomi Oy
FIXED FURNITURE
Royal Kalusteet Oy
MAIN CONTRACTOR (STADIUM)
Erkki Ikonen, Lauri Piiroinen, Tuomas Nieminen
AREA SALHOJANKATU RESIDENTIAL BUILDINGS
9.688 M2
AREA LOWER SPACE (WITH COMMERCIAL CENTRE AND PARKING FACILITIES)
12.421 M2
AREA STADIUM (WITHOUT THE FOOTBALL PITCH)
13.436 M2
AREA KALEVAN PUISTOTIE RESIDENTIAL BUILDINGS
12.208 M2
PHOTOGRAPHS
Tuomas Uusheimo, Hannu Rytky
AREA
47753 m²
YEAR
2024
LOCATION
Tampere, Finland
CATEGORY
Mixed Use Architecture, Stadiums, Houses
English description provided by the architects.
Finland's first hybrid football stadium was completed in spring 2024 in the Tammela district of Tampere.
The new stadium has been eagerly anticipated in the city. The project, which is a collaborative effort between the City of Tampere, Pohjola Rakennus, and JKMM Architects as part of an alliance, was in design and construction for over a decade.
The stadium project covers 13,500 square meters and provides high-quality facilities for both residents' sports activities and top-level football experiences for 8,000 spectators. The stadium meets the main UEFA category 4 requirements, which means it can also be used for example UEFA Europa League and national team matches.
Every seating position in the stadium offers an unobstructed view of the entire field. The stadium also accommodates 15,000 people for concerts and other larger events.
The stadium is part of a nearly 50,000 square meter hybrid block, complementing the urban structure, which consists of eight interconnected plots, including the football stadium, five residential buildings, a commercial centre, and parking facilities.
HYBRID CONCEPT ON FOOTBALL'S TERMS
The old Tammela stadium has been serving as a football pitch since the early 1930s and is one of Finland's first sports venues built specifically for football.
The City of Tampere wanted to preserve the stadium in its traditional location despite the need to densify the area. A solution was sought through an invited competition held in 2014.
JKMM's proposal, "Hattutemppu" (Eng. hat trick), won the competition by creatively addressing urban design, architectural, structural, and traffic challenges within the tight block structure while respecting the area's character and scale.
In the hybrid building, typologies and structures intertwine. The brick-clad residential buildings open to an active street space facing the long sides of the stadium.
Their courtyards are elevated to the roof levels between the masses. In the compact football pitch, the stands rise immediately from the edges of the pitch.
The stadium's glass entrances shield the field from the wind while maintaining spatial connectivity with the surroundings.
The roof arching over the block from east to west is the most distinctive feature of the landmark.
The stadium's shape echoes the structure of the suspended steel canopies, extending onto the roofs of the residential buildings, blending the block with its environment, and indicating the nature of the public building.
The lowest point of the arch is placed along the lengthwise axis of the field, ensuring that the canopy does not cast a shadow on the field or the northern schoolyard.
STRATEGY FOR A MORE SUSTAINABLE CITY
Tampere is Finland's most attractive urban area. Sustainable and high-quality densification of the city centre further strengthens the city's vitality and service structure.
No buildings were demolished at the stadium site; instead, old stands, lighting, and field structures were reused at other city fields. The stadium's central location relies on existing infrastructure and is accessible by public transport.
The local football club Ilves Tampere is responsible for the operation of the Tammela Stadium. The stadium's versatility shortens its usage times, offering services to a broad range of users. The block is connected to an efficient district heating and cooling network.
Optimisation of the structures was a key starting point in their design. The light-coloured roof surface cleans urban air pollutants and reflects light, cooling the spaces below. The hybrid stadium brings vibrant football culture to the heart of the city, with spectators arriving from different directions.
The stadium complements the Tammela grid plan area. Ground-level commercial spaces add to the area's services. The entire development awaits the city's residents to embrace it.
MINIATURE CITY FUNCTIONS AND ARCHITECTURE
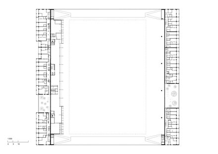
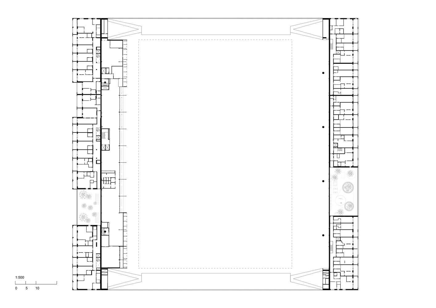
Tammela Stadium resembles a miniature city, containing many different functions. It seamlessly connects to the city's block network.
Residential buildings face park streets and the stadium's southern and northern plazas, through which spectators enter the block's corners. Visiting team supporters have their own entrance at the northeast corner of the block.
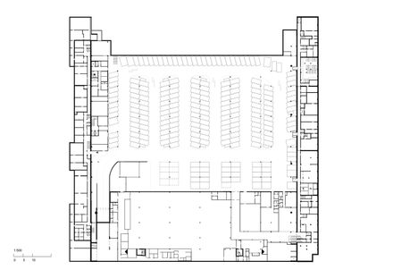
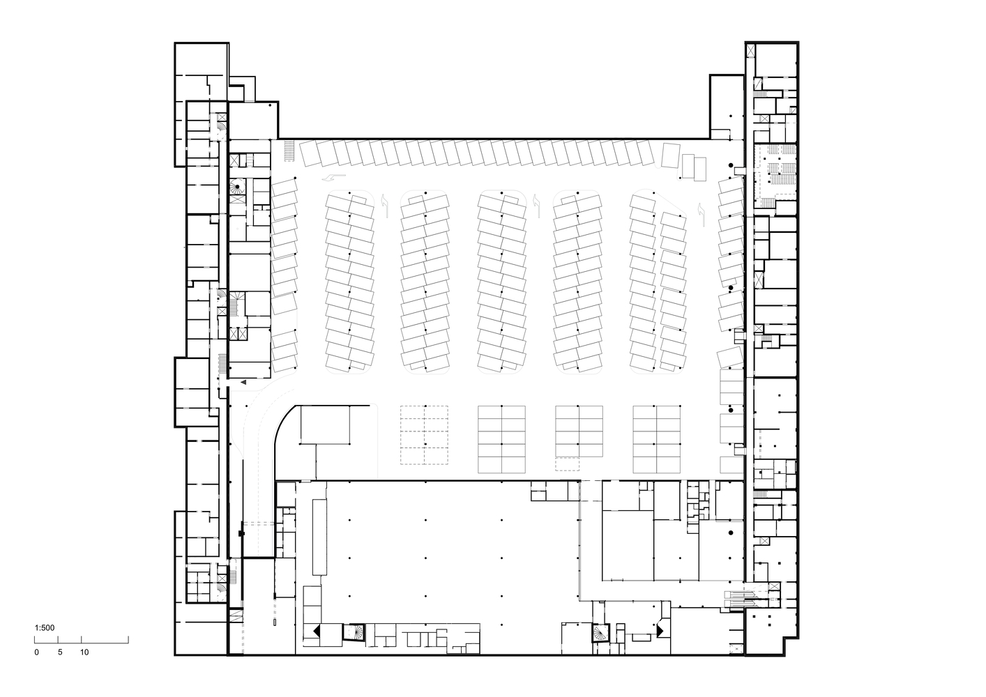
Entrances for players, VIP spectators, referees, and the press are located on the west side of the block. Parking, the commercial centre, its maintenance, and residential support facilities are in the basement, accessed from the south side.
The massing of residential buildings offers a diverse selection of apartments. The upper floors provide views in all directions, with the largest apartments even overlooking the field.
The stadium entrances are located beneath the end stands, and pitch maintenance is at the northwest corner of the block. At street level, the stadium's public spaces surround the pitch on three sides, with additional spaces on all sides in the second level.
The main stand is situated on the eastern edge of the pitch, and the restaurant, VIP, and press stands are on the western edge. During the design phase, an additional spectator seats were added above the main stand, allowing the stadium to meet the UEFA category 4 requirements.
The building's lighting supports the drama of the stadium events. The design aims to create experiences.
Artists Tommi Grönlund and Petteri Nisunen have created a light art installation called "Puolenvaihto" (Eng. half-time break) on the underside of the canopies. The graphic form of the moving light refers to the energy and movement of football.
STRUCTURES AND MATERIALS
Tectonics - The architecture of the project is tectonic in nature, marked by structural form and joint articulation. Architecture imparts meaning to the structure, and the structure gives form to the architecture, articulating its details.
The structure is purposeful and serves its function. The stands are free of columns, and the end canopies' joints allow for movement. Up close, the details of the structure are massive, even rough.
From a distance, they form light, almost poetic lines. The collaboration between the structural engineer, architect, and builder has been crucial in resolving challenges from the start of the project.
PILLARS
The pillars are primarily steel composite columns, cast-in-situ reinforced concrete walls, and slab structures. Each corner of the stadium has a sloped pillar with a reinforced concrete base and a prefabricated steel branch pillar in two sections at the top.
The top is surrounded by a steel collar welded to the steel branch pillar installed on site. The steel branch pillars support the end canopies' compressive loads and transfer them through the basement to the foundations.
This setup prevents load stress on the residential buildings, ensuring their renovation and lifespan are independent of the stadium.
Beams - The beams include WQ beams on the restaurant stand side, reinforced concrete beams in the lower stand of the main stand, and welded I-beams in the balcony stand.
End stands are supported by cast-in-situ reinforced concrete wall and slab structures. Floors - The floors are primarily hollow-core slabs and, in some cases, cast-in-situ structures.
The supporting structures for the end stands are cast-in-situ reinforced concrete slab structures. The stand floor structures are L-shaped reinforced concrete elements.




















































