La Seigneurie Funeral Home
ARCHITECTS
Ultralocal Architectes
LEAD TEAM
Dominique Gagnon, Alexis Ruelland
INTERIOR DESIGN
Perron
DESIGN TEAM
Veronique Barras-fugere
TECHNICAL TEAM
Benoit Ruelland, Emile Brochu
ENGINEERING & CONSULTING > MECHANICAL
Pageau Morel
ENGINEERING & CONSULTING > STRUCTURAL
Bdco
MANUFACTURERS
Arriscraft, Artbeton, Béton Johnstone, Journault Jourplex , Juste Du Pin
PHOTOGRAPHS
Paul Dussault
AREA
450 m²
YEAR
2024
LOCATION
Québec, Canada
CATEGORY
Religious Architecture, Burial, Refurbishment
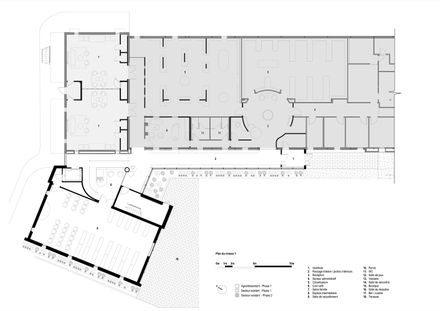
In late 2020, La Seigneurie Funeral Home approached ultralocal architects to undertake a major renovation and expansion of their building in the Beauport neighborhood of Québec City.
However, early in the design process, our team proposed a different, more meaningful approach: to expand horizontally rather than vertically.
This lateral expansion offered more than just additional space. It provided the opportunity to completely rethink the user experience and reorganize the building's program.
The new configuration allowed for a clearer, more intuitive flow, while carefully choreographing transitions between spaces designed to support a wide range of emotions—from mourning and solitude to reunion and comfort.
The architecture establishes a distinct language rooted in softness and warmth, whether through the presence of natural light, tactile materials, or the integration of greenery.
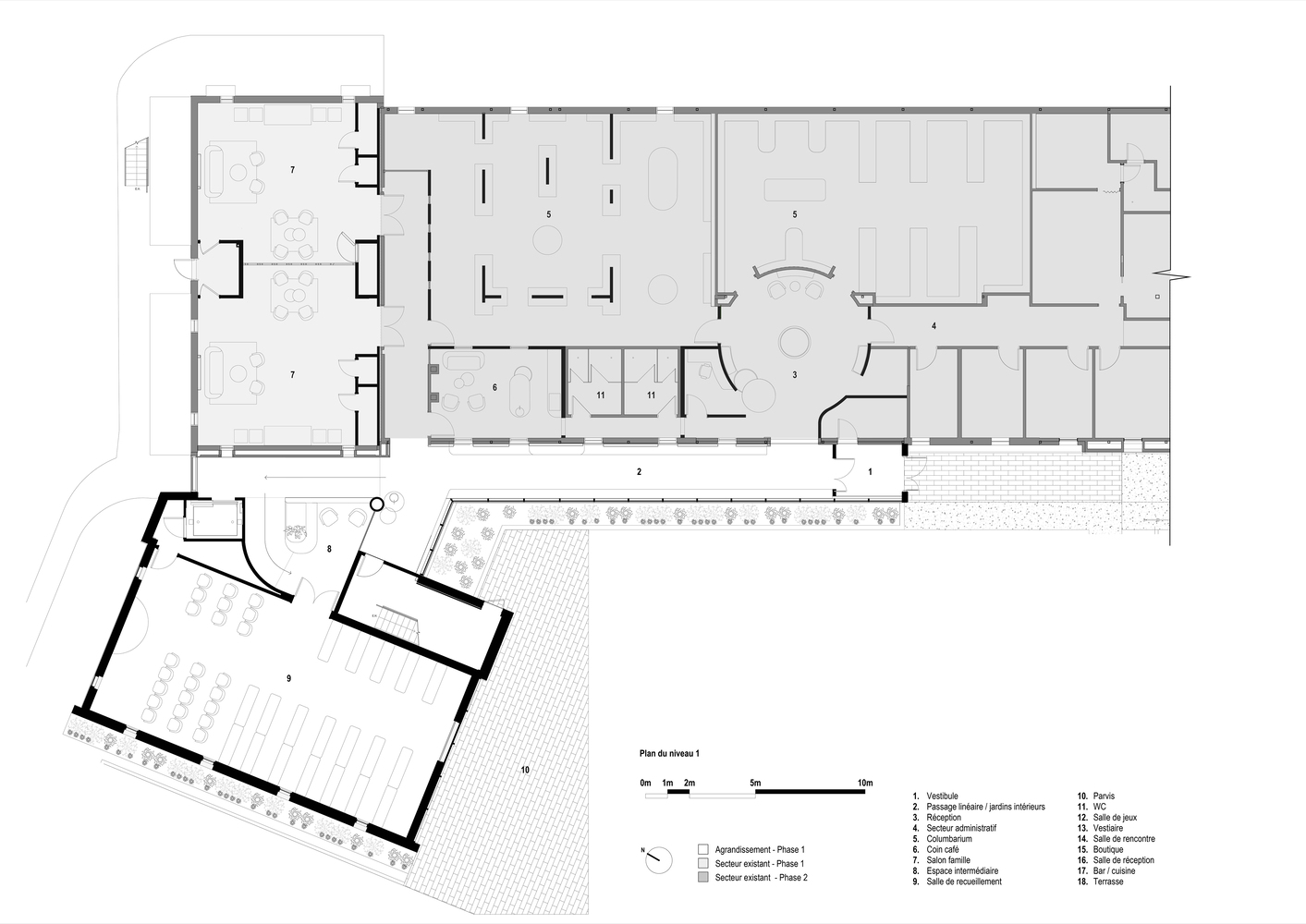
A linear interior passage now runs along the main façade of the existing building, connecting the new spaces on both floors.
Lined with full-height windows and punctuated by interior gardens, this luminous corridor becomes the backbone of the project, subtly guiding visitors toward the heart of the extension.
Each transition has been thoughtfully designed to offer moments of peace, allowing visitors the choice to pause, reflect, or simply move through the space at their own pace.
Natural light plays a central role throughout. Direct and indirect sunlight animates raw textures and architectural details, bringing softness and depth to the interior atmosphere.
The result is a space that feels warm, grounded, and alive. In collaboration with Perron Design, the interior architecture embraces curves as a means of continuity and calm.
These gestures, both subtle and expressive, imbue the space with a sense of meaning and emotional resonance.
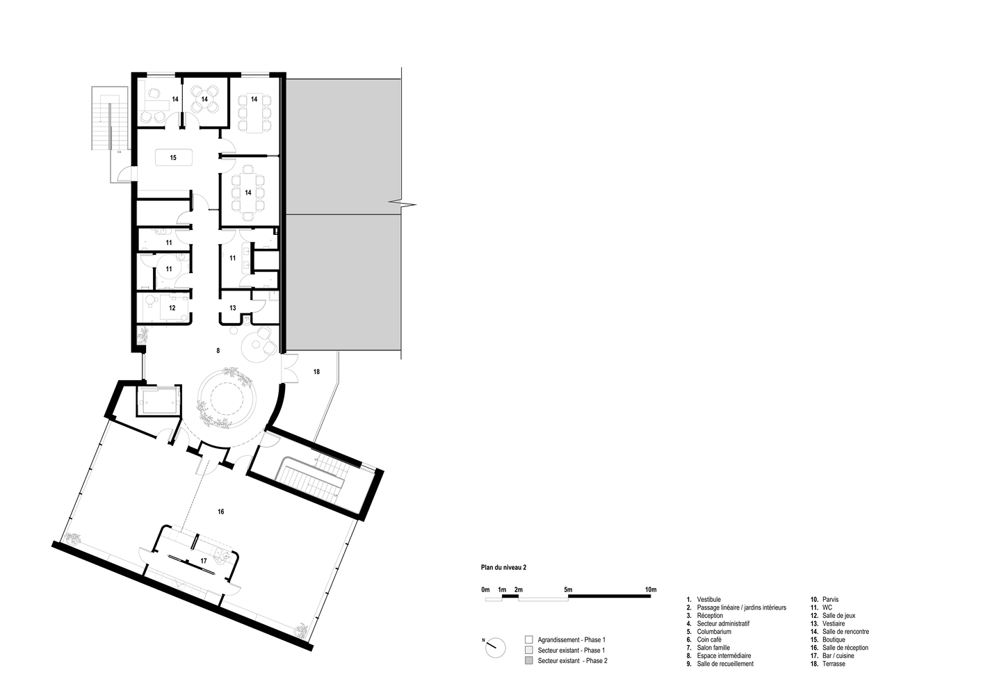
At the heart of the plan, a generous circular opening carved into the floor and crowned by a skylight creates a strong spatial and visual connection between levels.
This central void becomes a transitional zone between functions, allowing diverse uses to coexist while remaining distinct.
On the second floor, it opens onto a furnished outdoor terrace—a space to enjoy fresh air and natural light, or to extend social functions from the reception room during warmer months.
The programmatic expansion includes a meditation room with a skyward view designed for ceremonies, a large meeting room that can be subdivided according to need, family lounges, private consultation rooms, a play area for children, and a new columbarium that doubles the existing capacity.
While the ground floor remains quiet and contemplative, ideal for reflection and remembrance, the upper level offers a warmer and more social ambiance, centered around a reception space designed to bring people together.
Surrounding the building, the landscaping reinforces this sense of care and coherence.
Parking areas have been discreetly integrated and softened with green islands and tree plantings, while new pedestrian paths guide visitors gently from the street to the entrance, framing views and enhancing the approach.
This sensitive and deeply human project was recognized with a Prix d'excellence en architecture by the Ordre des architectes du Québec in May 2025.










































