
Tam Dao Retreat House
ARCHITECTS
Idee Architects
LEAD ARCHITECT
Tran Ngoc Linh
LEAD TEAM
Nguyen Huy Hai
MANUFACTURERS
Eurowindows, Unios Lighting, Vietceramics
DESIGN TEAM
Nguyen Dac Nguyen
PHOTOGRAPHS
Trieu Chien
AREA
2000 m²
YEAR
2023
LOCATION
Tam Dao, Vietnam
CATEGORY
Houses
The house is set on a 2,000m² hillside plot in Tam Dao, where a cool mountain microclimate and a mature pine forest form a defining natural backdrop.
All 52 existing trees were preserved, becoming a living structural framework that guided the project's spatial organization.
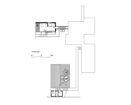
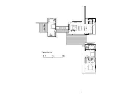
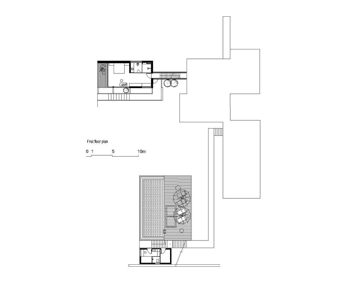
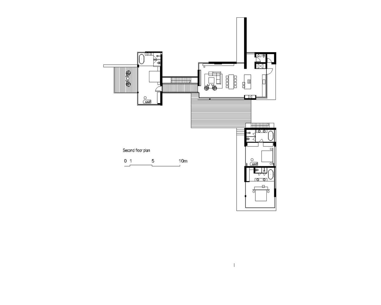
The retreat is composed of three detached volumes positioned within the openings of the tree canopy and aligned along the slope.
One two-storey block is paired with two single-storey blocks, linked by lightweight steel-and-glass bridges that maintain a continuous relationship between interior spaces and the surrounding forest.
The design embraces clarity and restraint, allowing the architecture to recede and blend into the landscape.
Solid corners are replaced with two-sided glazing, creating "cornerless" spaces that extend views and soften the boundary between inside and out.
Large glazed surfaces operate effectively thanks to natural shade from the pine canopy and careful solar orientation, while raw concrete and locally sourced grey stone anchor the building to the terrain.
Terraces, balconies, and open transitional zones act as points of direct contact with the landscape, reinforcing the experience of living within the mid-canopy layer.
A 50m² infinity pool occupies the lower part of the site, serving as both a landscape element and an immersive forest-bathing experience.
Functionally, the main living cluster—comprising the living room, kitchen, and four bedrooms—is positioned at the higher elevation to capture optimal views.
Auxiliary and landscape components are placed lower on the slope to minimize impact on the natural topography.
Tam Dao Retreat reflects a context-driven approach in which the site's ecosystem shapes the architectural form, allowing the structure to settle quietly into the natural terrain.






















