Staal-Kade Office Building Transformation
ARCHITECTS
Office Winhov
QUANTITY SURVEYING
Bbn
CLIENT
Flow Development
STRUCTURAL ENGINEER
Van Rossum Raadgevende Ingenieurs B.v.
ORIGINAL DESIGN
Architect Arthur Staal
DESIGN TEAM
Jan Peter Wingender, Caroline Versteden, Carlo Van Steen, Alice Dicker
FIRE SAFETY
Dgmr
BUILDING SERVICES
Bosman Bedrijven
SUSTAINABILITY RATING
Breeam Outstanding A++++
MAIN CONTRACTOR
G&s Bouw B.v.
LANDSCAPE ARCHITECTURE
Deltavormgroep Bv
BUILDING PHYSICS
Dgmr
SUSTAINABILITY MEASURES
Sustainable Landscaping, Enhancing Biodiversity, Pv Panels, Water Absorption And Water Infiltration, Demountable Façade Cladding, Insulation Of Existing Building, Interior
PHOTOGRAPHS
Stefan Müller, Tom de Kort, Beeldenbank Amsterdam
GROSS FLOOR AREA NEW BASE (INCL ROOF HOUSES)
3,883.90 M²
NET FLOOR AREA NEW BASE (INCL ROOF HOUSES)
3,632.80 M²
NET FLOOR AREA EXISTING OFFICE TOWER
5,103.80 M²
NET FLOOR AREA NEW CROWN
1,195.50 M²
GROSS FLOOR AREA NEW CROWN
1,369.70 M²
AREA
6011 m²
YEAR
2024
LOCATION
Amsterdam, The Netherlands
CATEGORY
Office Buildings, Renovation, Sustainability
English description provided by the architects.
STAAL-KADE
A New Future for a Modernist Icon.
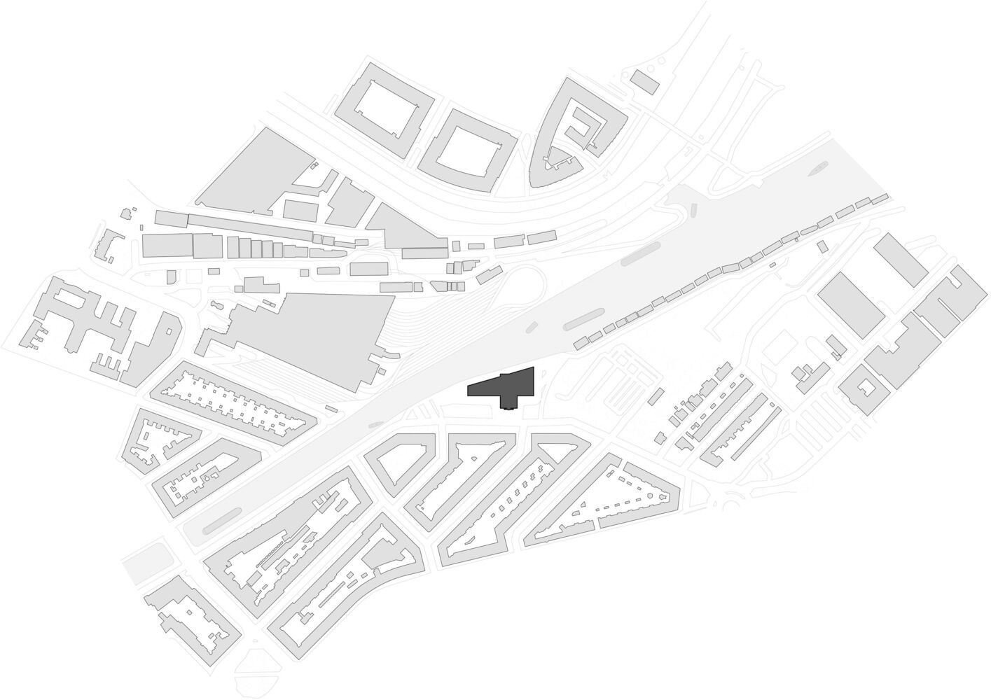
On the southern bank of the river Schinkel in Amsterdam stands a thoroughly renovated office building that bridges the past and future.
Since its transformation in 2024, the structure – originally designed by Arthur Staal in 1962 – has gained renewed significance through a revitalisation and extension by Office Winhov, commissioned by Flow Development. Among Staal's most iconic works is the Shell Tower, now known as the A'DAM Tower.
The Staal-Kade project holds meaning for Office Winhov, which has long demonstrated an affinity with Staal's architecture – most notably in its transformation of Frederiksplein 1, another of his designs.
Office Winhov also published a Local Heroes issue dedicated to Staal, compiled by Marcel Lok. The launch event included guided tours of Staal's buildings – such as Frederiksplein 1 and Staal-Kade – attended by his daughter Karin and grandson Arthur.
HERITAGE AND INNOVATION IN HARMONY
Following decades of intensive use, the Staal-Kade building required significant renovation and sustainability upgrades.
Its transformation has not only created a contemporary and resilient workplace but has also helped enhance the surrounding public space along the Schinkel.
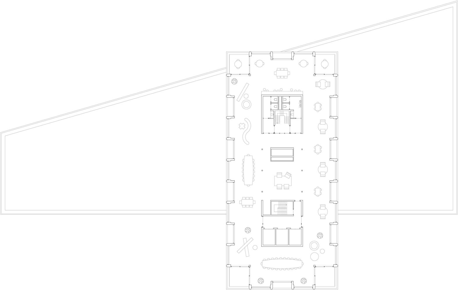
Staal's characteristic architectural approach – a vertical tower atop a horizontal podium – is central to this design and echoes his work on the A'DAM Tower. At Staal-Kade, this composition has been carefully preserved and reinforced.
The original concrete elements have been cleaned and restored, preserving their characteristic appearance.
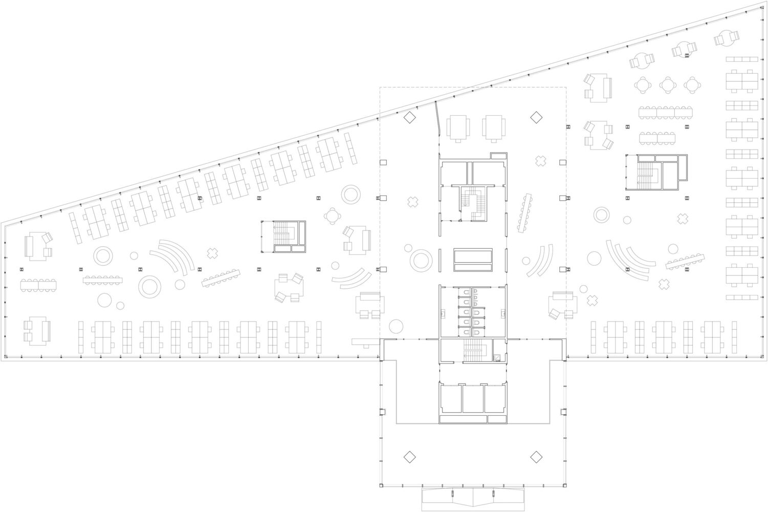
Two new storeys have been added that follow the rhythm of the existing façade but are distinguished by contemporary materials and proportions.
The transparent entrance hall has been fully renewed, based on Staal's original design, and now includes the distinctive canopy that was never previously realised.
The redesigned podium façade further emphasises horizontality and opens views across the greenery and river. The result is a thoughtfully layered building in which historic and modern elements coexist.
INTERIOR AND SUSTAINABILITY TO A++++
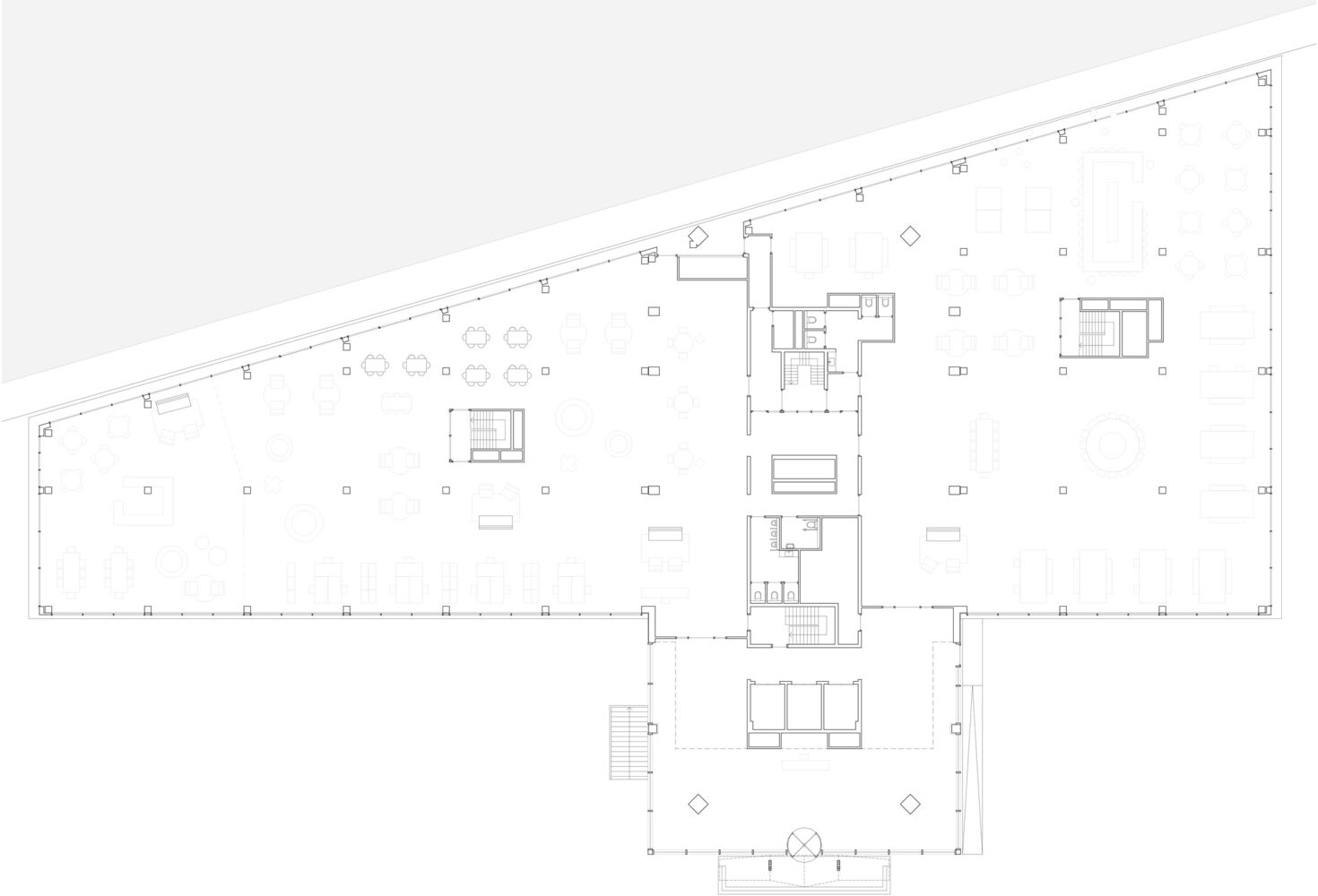
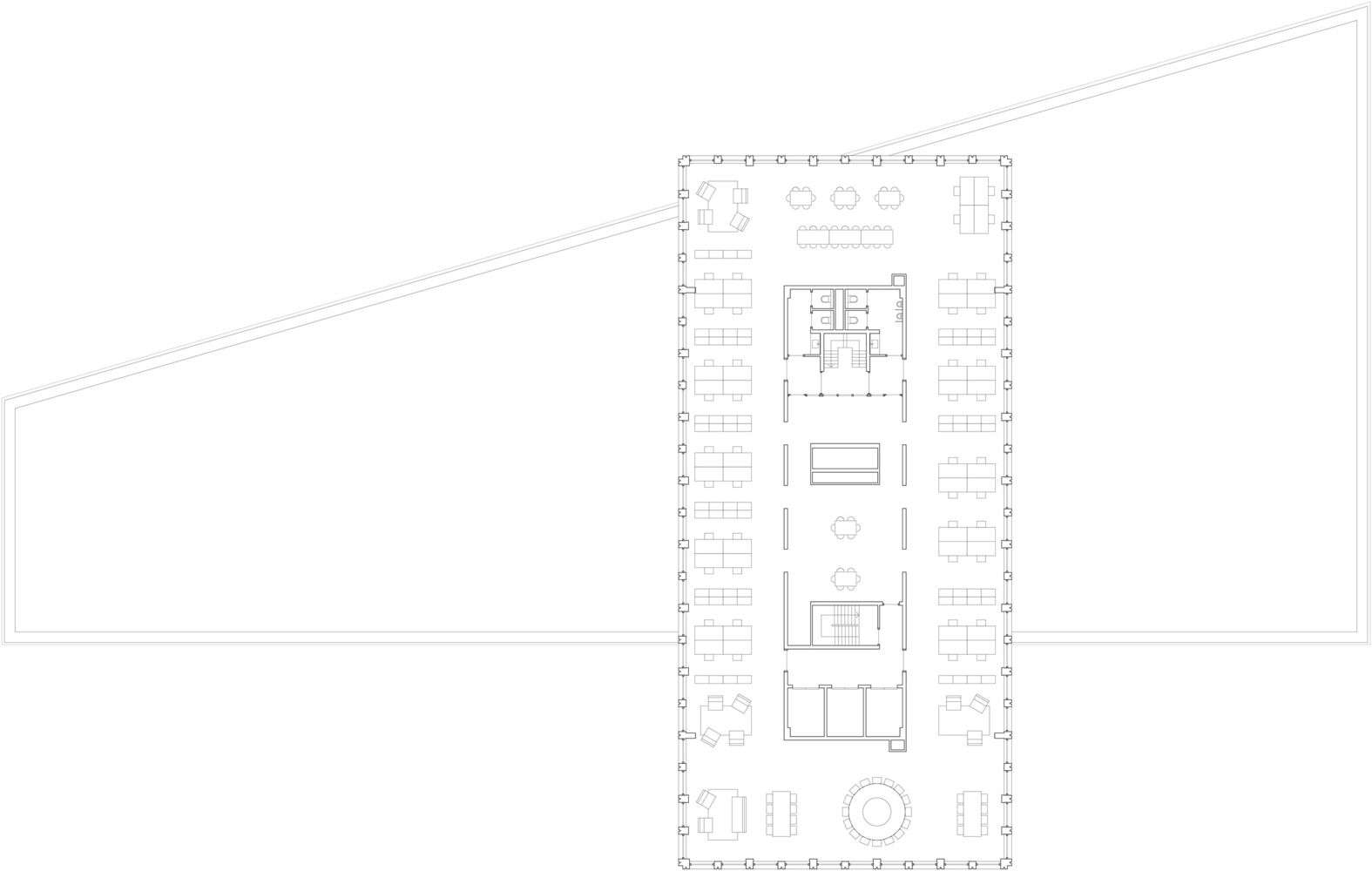
While the structural concrete shell has been retained, the interior has been completely reimagined.
The spatial layout finishes and building systems have all been modernised to provide comfort, flexibility, and sustainability.
A key challenge was to incorporate new services and technologies within the building's limited floor-to-ceiling height. The renovated office accommodates a variety of working styles, offering a balance between open-plan spaces and enclosed offices.
A major strength of the redevelopment lies in its sustainability strategy. By conserving the existing structure, material reuse was maximised.
The façades have been upgraded with improved insulation, systems have been replaced with energy-efficient alternatives, and the roof has been fitted with green roofs and photovoltaic panels.
The outcome is exceptional: Staal-Kade achieved BREEAM Outstanding certification and an A++++ energy rating – the highest achievable score in the Netherlands.
GREEN URBAN MEETING POINT
Situated on the edge of Amsterdam-Zuid, where the urban landscape transitions into green space, Staal-Kade has become a new anchor point for the area.
Landscape architects Deltavormgroep transformed the previously neglected riverbank into a vibrant public realm. The Jaagpad, once overlooked, now forms a key part of a new walking route linking to the Nieuwe Meer and the Amsterdamse Bos.
A café on the ground floor acts as the starting point of this route. Both the riverside and the building now bear the name Staal-Kade – paying tribute to Arthur Staal.
MEANINGFUL REUSE
Staal-Kade reflects Office Winhov's belief that the reuse of existing buildings should not be seen as a limitation, but as an opportunity to create meaningful and sustainable architecture.
This project shows how the careful transformation of post-war buildings can support a sustainable urban future.
By respectfully combining original architecture with contemporary elements, Staal-Kade delivers a workplace that honours its heritage while embracing innovation.
The building strengthens the identity of its surroundings and offers an inspiring working environment by the water.
For Office Winhov, Staal-Kade represents a meaningful continuation of their long-standing engagement with Arthur Staal's architectural legacy.



































