ARCHITECTS
Leckie Studio Architecture + Design
DESIGN TEAM
James Eidse, Irena Jenei, Andrea Zittlau
ENGINEERING & CONSULTING > STRUCTURAL
Aspect Structural Engineering
PHOTOGRAPHS
Ema Peter
AREA
2650 ft²
YEAR
2022
LOCATION
D'Arcy, Canada
CATEGORY
Houses
English description provided by the architects.
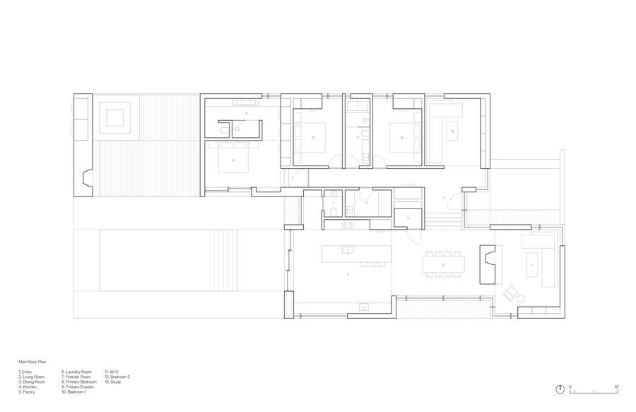
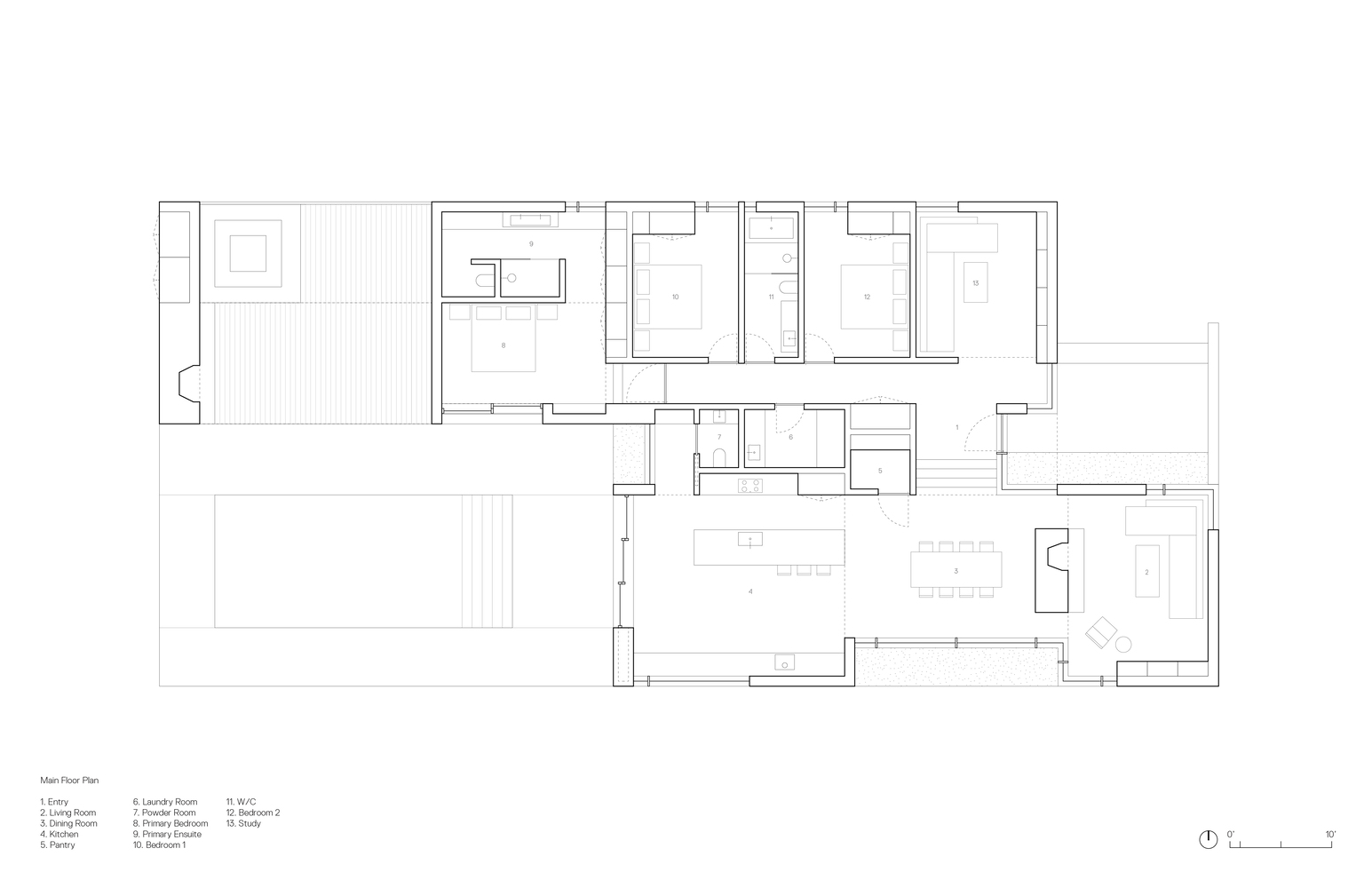
Situated at the foot of the Lillooet Range and bracketed by the Garibaldi Range, Camera House is a two-bedroom residence set on a sloped, five-acre site in the Pemberton Valley.
The home frames a swimming pool, outdoor dining area, and a detached workshop, drawing focus to the rich natural surroundings of the Pacific Northwest.
Inspired by the mechanics of a camera, the house acts as a spatial device that captures and directs light toward carefully chosen surfaces.
The architecture offers a curated experience of the landscape—both its dramatic scale and intimate details—allowing the site to be seen "through a lens."
The design engages with three focal depths: foreground, midground, and background. In the distance to the south, peaks from the Garibaldi Range—Ts'zil (2591m), Hibachi (2603m), and Gravell (2802m)—form the background.
Owl Ridge (Lil'wat, 2073m) rises to the northeast as a defining midground feature.
The foreground is marked by mature trees and moss-covered boulders, some of which have rested on the site for thousands of years.
The house is composed of four interlocking volumes, each topped with a sloped roof and clerestory windows oriented to the north and east.
These openings alternate between specific and abstract view corridors—framing Owl Ridge or offering glimpses of sky and treetops.
Inside, ceilings are sculpted to guide light and view lines through the space, creating interiors that shift in mood with changes in daylight and weather.
In Camera House, architecture becomes a tool of perception—simultaneously sheltering and revealing, directing attention to the ephemeral qualities of light and landscape.
The result is a home deeply attuned to its setting, where experience is shaped moment by moment, like an image coming into focus.
















