
Old Golden House
ARCHITECTS
Mutabile Arquitetura
LEAD ARCHITECT
Gabriel Souza, Isabel Brant
COORDINATION
Gabriel Barbosa
TECHNICAL TEAM
Felipe Mascarenhas
PROJECT TEAM
Nathalia Melo, Victor Hugo Souza
MANUFACTURERS
Bellar, Eternit, Riolax
PHOTOGRAPHS
Sofia Vasconcelos
AREA
320 m²
YEAR
2024
LOCATION
Nova Lima, Brazil
CATEGORY
Residential Architecture, Houses
Located on a steep slope in Nova Lima, Minas Gerais, Casa Ouro Velho folds and opens across multiple levels, establishing a continuous and respectful dialogue with the natural landscape and the exuberance of the Atlantic Forest.
Designed as a direct response to the topography and surrounding forest, the project is organized into levels that embrace the terrain, establishing a continuous dialogue between architecture and nature, with precise cuts that ensure the preservation of the larger native trees on the lot.
The clients sought a refuge with maximum visual integration with the mountains, demanding architecture that maximized the panoramic view.
This premise was reinforced by local legislation, which only allows the removal of vegetation from one-third of the 1,000 square meter lot, making respect for the flora a central condition.
Furthermore, the limited budget made the definition of openings a key point: they were carefully defined and sized to maximize the impact of the investment.
An aesthetic and economical solution was to mark the volumes of the house with colors, eliminating costly cladding.
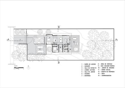
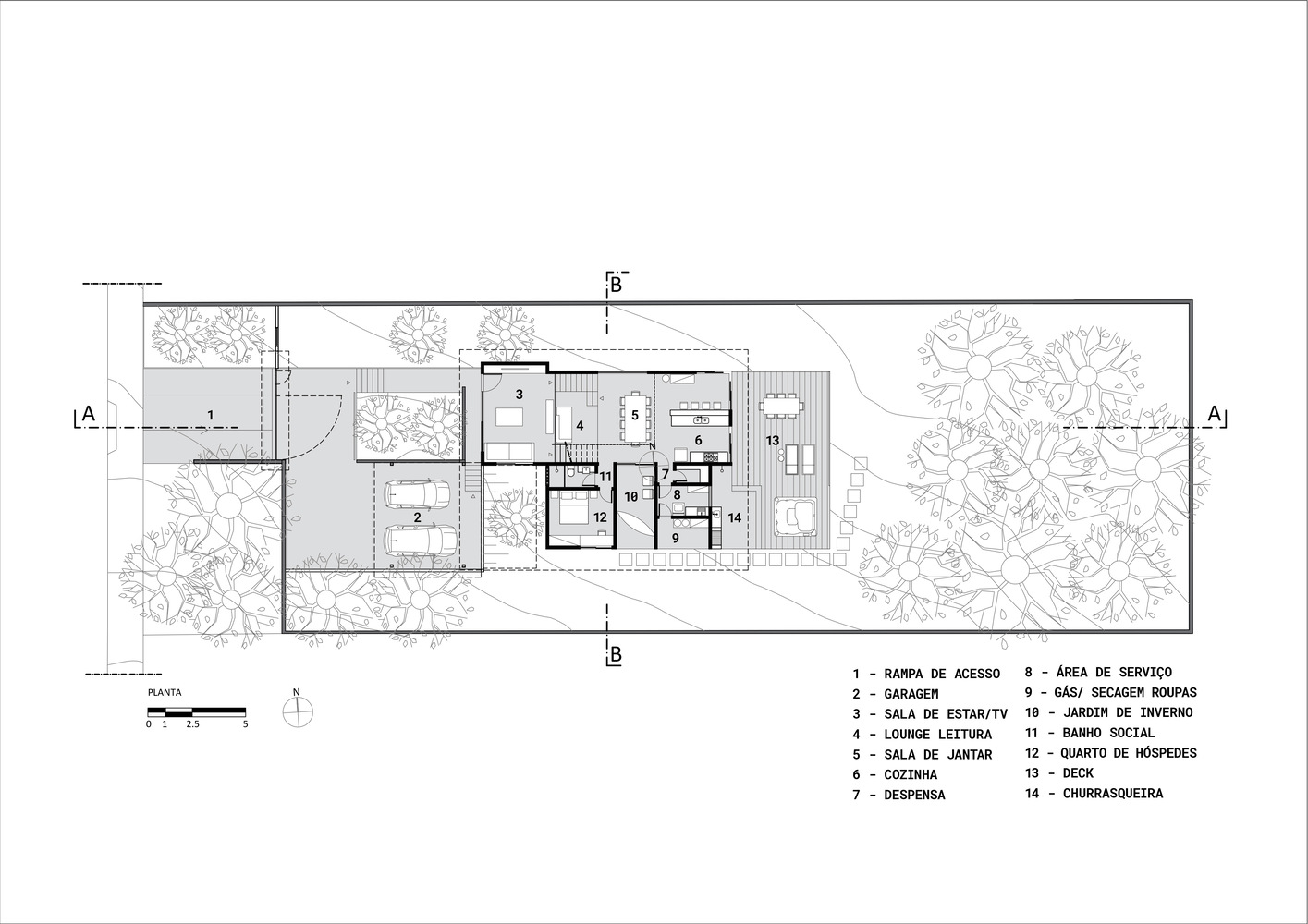
The social areas face north, where the mountain view is. The path from the entrance to the deck at the back of the lot gradually overcomes the elevation changes, minimizing costs and ecological impacts of earth movement.
Pedestrian access occurs through a horizontal axis that, upon reaching the living room, acts as a central pivot in the vertical distribution of the program.
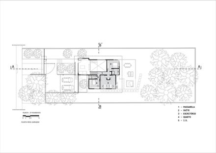
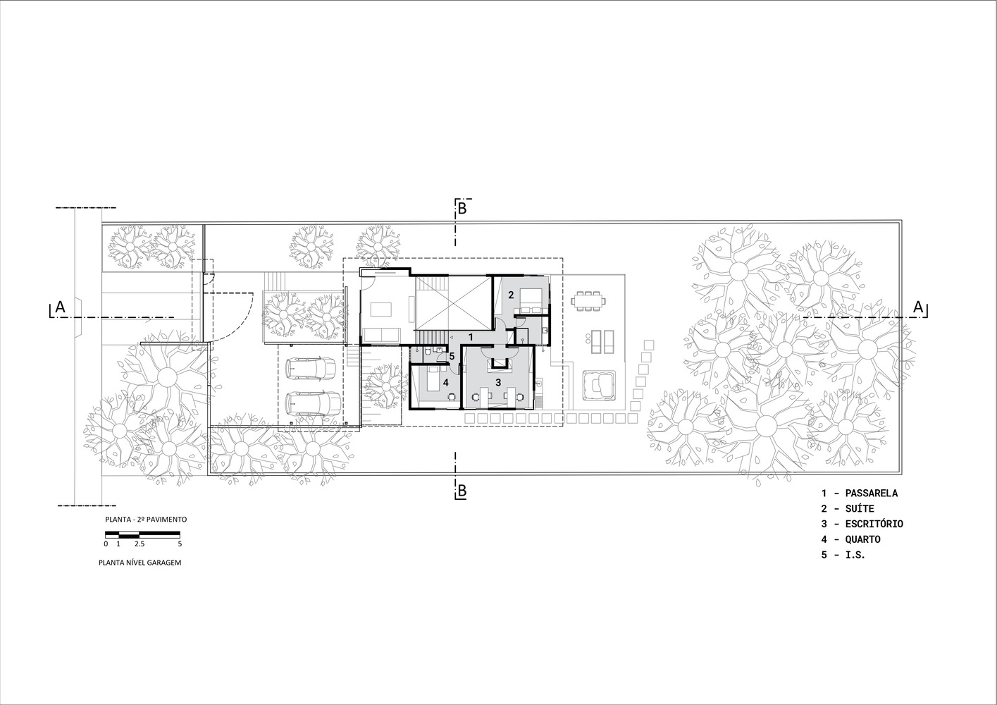
This strategy organizes the intimate area half a level above and the social area half a level below, enhancing the internal volume to create an imposing double-height ceiling and spacious environments.
On the upper floor, the open circulation leading to the bedrooms offers a privileged view of the landscape.
In terms of environmental comfort, solar orientation is planned: the bedrooms face south, ensuring coolness, while the master suite and social area face east and north to optimize lighting and views.
On the street-facing façade (west), painted concrete cobogó panels filter the setting sun, ensuring thermal comfort at the entrance and preventing direct visibility of cars in the garage – an aesthetic and functional solution.
Finally, the butterfly roof in black metal structure, with its wide eaves, protects the façades and reinforces the house's intention of maximum openness to its surroundings.
Casa Ouro Velho is a testament to architecture that actively responds to its site. Through careful implantation and intelligent bioclimatic solutions, the project celebrates the landscape of Minas Gerais, proving that it is possible to reconcile a contemporary residential program and a tight budget with the respectful insertion of the building in the surrounding Atlantic Forest.






















